查看完整案例

收藏

下载

翻译
Architects:buck&simple
Area:320m²
Year:2025
Photographs:Tim Pascoe Photographer
Manufacturers:Fisher & Paykel,Abodo,Autodesk Revit,B-TD,Briggs Veneers,Brightgreen,Brodware,Graham Day Doors,Porters Original Paints,Real Flame,Smeg,TOVO Lighting
Lead Architects:Peter Ahern
Structural Engineer:Acroyali Engineering
Contractor:Prostruct Projects
Landscape Design:Bates Landscape
Town Planner:Balance Planning
Country:Australia
Text description provided by the architects. Little Birch represents a case study in the bespoke detail. Realising a young family's dream to achieve the day-to-day calm of resort living adjacent to the daily grind. Resort vibes, domestic ease. Located on the traditional lands of the Kameygal people, city and district views abound as this private home descends and expands into its built oasis.
The site presented as a compact urban setting with our challenge to conceal, direct, and connect to spaces beyond. The exterior presents to the established streetscape as an intersection of tectonic forms, mass, and planes; the simple geometry provides a counterpoint to the neighbourhood's incoherent mishmash of typologies.
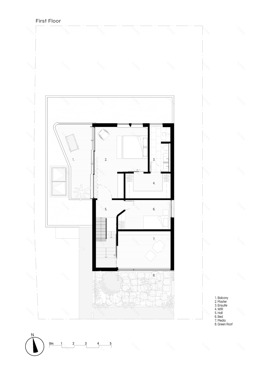
Descending from the street level, you see glimpses of district views recede before you're enveloped in a garden oasis shared across indoor-outdoor entertaining and lower-ground living spaces. Planar joinery conceals service & private areas of the program, while ribbonlike concrete stairs puncture the double-height void connecting & engaging across the home. The interplay of split-level geometries further belies the compact floor plan and encourages the visual borrowing of space as each level employs key vistas borrowing district views, with custom skylights building connection to the sky and a sense of the infinite.
A testament to the consideration of use and celebration of the detail, the home is built for the rigours of family life. Beyond its physicality, Little Birch explores the interplay of light and shadow, structure and stillness, and mass and void. These qualities shape the home's atmosphere, creating a sanctuary of calm within the density of its urban context. The materiality is deliberately restrained, allowing natural textures to guide the experience. Finishes are refined, materials are limited, and form is celebrated through junctions, intersections, and edges that reveal a quiet complexity. Subtle variations in texture catch the light throughout the day, while a restrained palette ensures a rhythmic continuity from one space to the next.
Every surface has been considered for its haptic quality, engaging the senses through warmth and weight, smoothness and grain. The stairs, a sculptural moment within the void, hover above the floor below, the seemingly missing anchor point in contrast to the home's grounded solidity. Throughout, architectural devices create a measured slowness—a deliberate flow of movement, a quiet rhythm of compression and release. Key viewpoints frame borrowed landscapes, drawing the eye beyond the immediate, connecting the inhabitant to sky, horizon, and distant greenery.
Beneath its refined elegance lies a structure designed for longevity, performance, and comfort. Cross ventilation and passive thermal strategies allow for effortless temperature regulation while controlled apertures guide the transition of light through the spaces. The landscape is interwoven throughout, a mediator between architecture and environment, softening thresholds and extending the experience of living into the natural realm. The result is a home that feels effortless yet is deeply considered. A place of balance, where design elevates the everyday, where stillness and movement, light and shade, weight and air find their resolution in a seamless whole.
Project gallery
客服
消息
收藏
下载
最近














































