查看完整案例

收藏

下载
在社区周围,等待每个归家的你,灯光通明延续着社区的温暖和煦。独栋的食堂跟能专注自身的体验,小小的,很温馨。
Around the neighborhood, the well-lit surroundings continue to radiate the warmth of home for every returning resident. The standalone cafeteria building offers a self-contained spatial experience – compact in scale yet intimate in atmosphere.
©冉丽菁
幸子食堂位于胜利街与沈阳路交叉口,这周围还保留着租界的建筑。我们希望能够保持与老街区历史脉络的一致性,以一种 “不显新”的方式呈现。
▼项目区位,project location©向生设计事务所
Xing zi Canteen is situated at the intersection of Shengli Street and Shenyang Road, surrounded by preserved concession-era architecture. Our design consciously integrates with the historical fabric of the old district through “non-intrusive” interventions that avoid overt modernity.
▼项目实景,indoor space©周梓怡
▼项目实景,indoor space©周梓怡
在融合与保持自我之间,做到和谐共处。我们通过设计将空无一物的房子转化为不同的精神传递场域。避免过于刻意的手法,运用自然的材料,与简单的结构塑造,保持随性的状态,让幸子食堂融入这条历史久远的街道。利落的线条将店勾勒出来,通过不同的大小的矩形块状态展示不同的功能区域。
The architecture achieves harmonious coexistence between contextual assimilation and preservation of individuality. We transformed vacant structures into vessels for spiritual communication through spatial reprogramming. Employing natural materials and unpretentious structural forms, the design maintains an effortless aesthetic that resonates organically with the historic streetscape. Precisely articulated lines delineate the building’s form, while varying rectangular volumes functionally organize the spatial program.
▼门头,Storefront ©周梓怡
我们将空间“自然呈现”给顾客。入户门的上方呈阶梯状,与楼梯相呼应,玻璃镜面而延伸至顶面,将空间无限扩展,通过空间自带的视线引导。
The architecture reveals itself to visitors through intuitive spatial sequencing.The stepped canopy above the entrance echoes the interior staircase configuration. Mirrored glass surfaces vertically amplify spatial perception, creating infinite visual extensions through deliberate sightline orchestration.
▼一层室内空间,ground floor space©周梓怡
设计初心为了契合食堂、社区小店的调性,从整体的空间到氛围的呈现都希望能融人到这个街道中来,不去做过多的设计堆砌。通过点、线、面的灯光与花艺来体现用餐的温暖氛围。
▼轴测图,axonometric©向生设计事务所
True to its identity as a neighborhood eatery, the design intentionally avoids excessive formalism, prioritizing contextual harmony over stylistic embellishment. Strategic lighting compositions (point-line-plane configurations) and floral arrangements collaboratively cultivate a convivial dining ambiance.
▼被酒水包裹的双向吧台,At the heart of the space emerges a dual-directional bar counter enveloped by drinks displays©周梓怡
▼延伸空间的镜面,mirror extends the space©周梓怡
▼一层楼梯,staircase©周梓怡
▼从一层楼梯仰视上方,look up from the staircase©周梓怡
▼楼梯空间,the staircase©周梓怡
▼二层用餐区,Second floor dining area©周梓怡
用餐时,望向窗外,社区里茂盛的树木随风飘动。
Diners enjoy framed views of lush community greenery swaying beyond the windows through carefully positioned apertures.
▼二层用餐空间,second floor dining area©周梓怡
▼窗景,window scenery©周梓怡
星星点点的灯光悬挂于斜顶,不是那么的强烈,用细微的光亮将用餐的仪式温存。
Subtle celestial lighting arrays suspended beneath the sloped ceiling create ceremonial dining experiences through restrained luminous interventions.
▼夜间用餐氛围,evening dining atmosphere©周梓怡
▼夜间用餐氛围,evening dining atmosphere©周梓怡
▼细部,detail©周梓怡
设计,就是要看清事物的本质。很喜欢主理人希子的一段话:“作为一家社区小店,我们跟独立或者精品扯不上什么尖系。非要说有什么理想,无非是在社区生长,服务好社区。”幸子食堂的设计是一种对老街区历史脉络的尊重和继承,同时也是一种对现代生活方式的探索和实践。我们希望通过这样的设计,让人们在享受美食的同时,也能感受到设计带来的温暖和关怀。
Design, at its core, demands clarity in discerning the essence of things. As Principal Designer Xizi profoundly states: “As a community-driven eatery, we consciously avoid associations with avant-garde or boutique concepts. Our fundamental aspiration is simply to grow symbiotically with the neighborhood and serve it authentically.” Xing zi Canteen embodies both reverence for historical urban layers and progressive exploration of contemporary living paradigms.Through this architectural mediation, we aspire to create dining experiences that nourish both body and soul with design-infused warmth.
▼室外夜景,exteriors at night©周梓怡
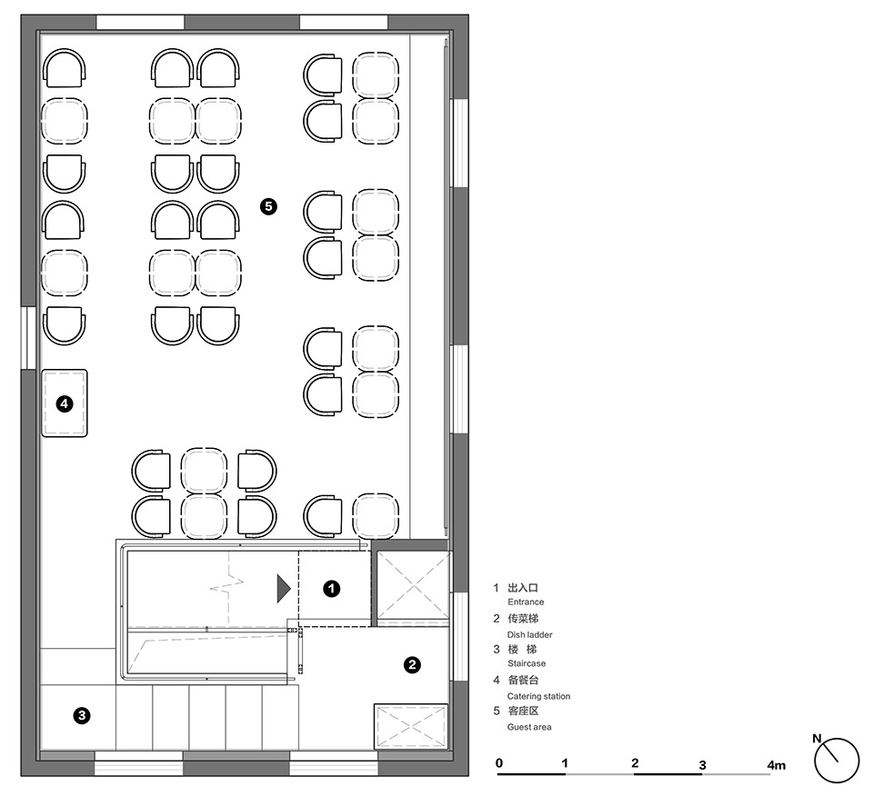
▼一层平面,ground floor plan©向生设计事务所
▼二层平面,first floor plan©向生设计事务所
▼立面,elevation©向生设计事务所
▼剖面,section©向生设计事务所
项目名称:幸子食堂
项目类型:餐饮空间
设计公司:向生设计事务所
主创设计:赵龙
设计团队:梅朕银
灯光设计:光河照明设计
完成年份:2024.07
项目地址:中国 · 湖北省武汉市江岸区胜利街339-5号
建筑面积:101㎡
主要材料:木作、艺术涂料、混凝土、杜邦纸、水泥预制板
设计图纸版权所有:©向生设计事务所
Project Name:Xing zi Canteen
Project Type:Catering Space
Design Company:Reborn Design
Leader Design:Zhao long
Design Team:Mei zhenying
Lighting Design:Glowho
Year Finished:2024.07
Project Address:339-5 Shengli Street, Jiangan District, Wuhan City, Hubei Province, China
Project Area:101㎡
Main Material:Wood、Art paint、Concrete、DuPont paper、cement prefabricated board
Photo&Video Copyright:©Zhou Ziyi (Photo) | ©Ran Lijing (Video)
Design Drawings Copyright:©Reborn Design
Company Website:
客服
消息
收藏
下载
最近

































