查看完整案例

收藏

下载

翻译
Architects:Menhir Arquitectura
Area:168m²
Year:2024
Lead Architects:Roger Giralt, Ernest Planes
Technical Team:Nuria Ferrando
City:Vilafranca del Penedès
Country:Spain
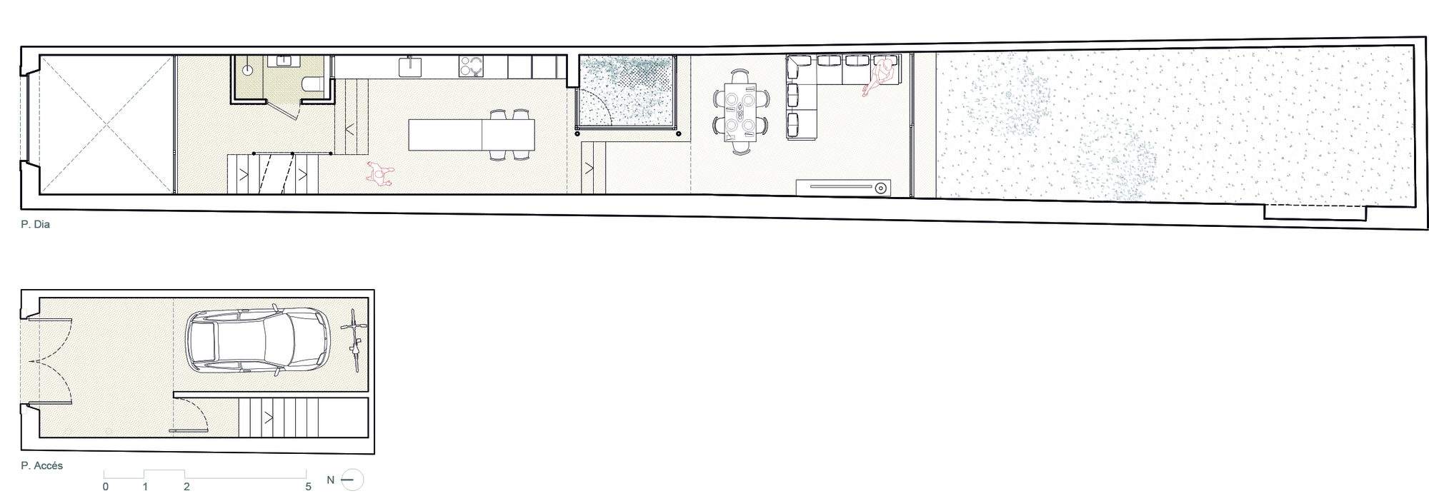
Text description provided by the architects. This is a plot between party walls, 3.5 meters wide and 35 meters long, with a buildable depth of 22 meters, a generous depth that becomes an opportunity for the project. From the existing construction, which consists of a ground floor, mezzanine, first floor, and attic, we retain only the street facade, some strategic slabs, and the load-bearing party walls. We dismantle and restore the elements we keep to highlight the quality and texture of their materials, which will help give identity to the home.
The heights of the existing floors are very low, and the level of the backyard garden is situated between the floors, which compels us to design the new home with a sectional approach where each room is placed at a specific height. The different platforms define the program. The house is experienced as a succession of spaces that transition from less to more private, intertwined through both horizontal and vertical pathways.
The walled patio with its high party walls captivates us from the start. A garden sheltered by three slender mulberry trees reaching for the sun. We decided to place the living room within this garden.
We will cover this new space with a one-way reinforced concrete slab, made on-site. A new heavy element that will rest on the thick stone walls. The space is enclosed with a large glass wall open to the garden, and we separate it from the existing building with a patio where we transplant one of the mulberry trees.
The roof of the new pavilion will be finished with a green roof, with private access from the main bedroom on the upper floor. The lightweight staircase vertically connects the entire home. To enhance this journey, we leave the party wall stone exposed, accompanying us from the foyer to the attic.
The interior facade faces southeast, and we design it predominantly with glass to enhance direct solar gain in winter, while protecting from the summer sun with Alicante shutters and the estate's own walls. The house is climate-controlled with underfloor heating using aerothermics, and the entire envelope—floor, facade, and roof—is carefully worked on, avoiding thermal bridges and paying special attention to air tightness.
Project gallery
客服
消息
收藏
下载
最近
























