查看完整案例

收藏

下载
The Diff Coffee Roasters坐落于泰国北部,是一家充满活力的新兴本地咖啡馆,旨在营造社区归属感。其引人注目的建筑由两个立方体结构组成——一个较大的灰色立方体和一个较小的黑色立方体——两者通过一个视觉上颇具张力的三角形连桥优雅相连。整个建筑环抱着一棵高大的树木,自然形成的树荫为户外区域提供了舒适的休憩空间,吸引访客驻足放松。
Nestled in the northern region of Thailand, The Diff Coffee Roasters is a vibrant new local establishment designed to foster a sense of community. The café’s striking architecture consists of two cubic structures—one larger gray cube and a smaller black cube—elegantly connected by a visually captivating triangular flyover. This striking design embraces a majestic, towering tree with a natural canopy, inviting visitors to relax in the shaded outdoor area.
▼项目外观,exterior of the project ©Soopakorn Srisakul
▼项目外观,exterior of the project ©Soopakorn Srisakul
▼围绕景观展开的中庭,the courtyard centered at the landscape ©Soopakorn Srisakul
咖啡馆总面积约800平方米,布局巧妙,营造出舒适而富有创意的氛围。位于前方的灰色立方体体量较大,其立面设计有多个三角形的开口与空洞,让光影在空间中交错变化,增强整体的动态感。所选用的材料——光滑的混凝土、温润的木材与通透的玻璃——共同呈现出设计的简洁与纯粹。
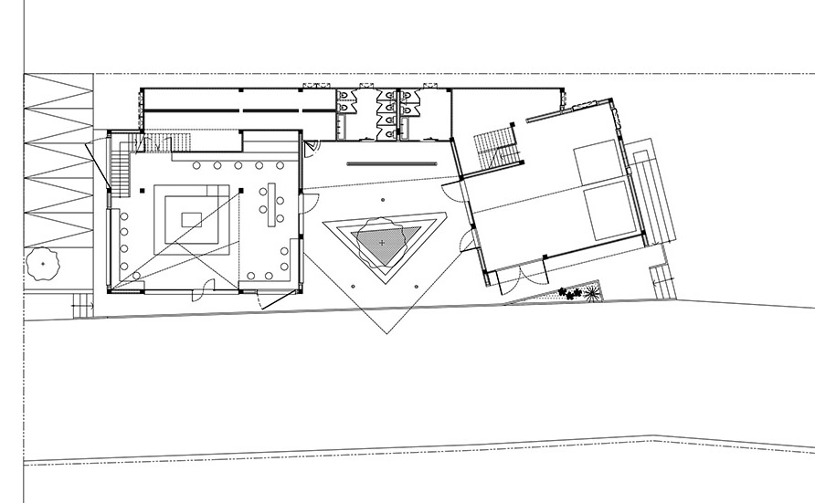
▼一层平面,ground floor plan ©ASWA
Spanning approximately 800 square meters, the café’s layout is thoughtfully designed to immerse patrons in an atmosphere of comfort and creativity. The larger gray cube, prominently positioned at the forefront, features an array of triangular openings and voids that cast intricate patterns of light and shadow throughout the space, enhancing its dynamic ambiance. The materials—smooth concrete, warm wood, and expansive glass—are meticulously chosen to celebrate the simplicity and purity of the design.
▼空中连廊,sky corridor ©Soopakorn Srisakul
▼从空中连廊向下俯瞰,overlook from the sky corridor ©Soopakorn Srisakul
▼连廊下空间,space under the sky corridor ©Soopakorn Srisakul
步入室内,映入眼帘的是一个开阔的中庭空间,高挑的天花与三角形天窗带来强烈的通透感。九米高的挑空空间,与低调克制的外观形成鲜明对比,营造出令人惊喜且振奋的氛围。较小的黑色立方体则作为咖啡吧台区,以方形开口与精心设计的空隙,营造出区别于主空间的独特氛围。两个体量在对比与平衡中共同构成一个既和谐又富有层次的空间,欢迎每一位来访者在此连接、思考、享受。
As guests step inside, they are welcomed into a spacious atrium, where the high ceiling and triangular skylights amplify the feeling of openness. The soaring nine-meter height creates an awe-inspiring contrast to the subdued exterior, enveloping visitors in a surprising and uplifting atmosphere. Meanwhile, the smaller black cube, dedicated to the bar, presents a captivating contrast with its square openings and deliberate voids, offering a unique ambiance that sets it apart from the main café. Together, these elements create a harmonious space that invites connection, reflection, and enjoyment for all who enter.
▼开阔的中庭空间,a spacious atrium ©Soopakorn Srisaku
▼营造出令人惊喜且振奋的氛围,creating a surprising and uplifting atmosphere ©Soopakorn Srisakul
▼裸露的混凝土梁架,exposed concrete columns and beams ©Soopakorn Srisakul
▼上层空间的三角形开窗及天窗,triangle windows and skylights in the upper floor ©Soopakorn Srisakul
▼三角形开窗及天窗,triangle windows and skylights ©Soopakorn Srisakul
▼从二层俯瞰一层,overlook the lower level from the upper level ©Soopakorn Srisakul
▼高挑的天花与三角形天窗带来强烈的通透感,the high ceiling and triangular skylights amplify the feeling of openness ©Soopakorn Srisakul
▼营造开放通透的空间,creates a space with the feeling of openness ©Soopakorn Srisakul
▼可作多种功能适用的空间,multifunctional space ©Soopakorn Srisakul
▼夜晚营业的小酒吧,bar at night ©Soopakorn Srisakul
▼夜景,night view ©Soopakorn Srisakul
▼夜景,night view ©Soopakorn Srisakul
▼二层平面,first floor plan ©ASWA
▼屋顶平面,roof plan ©ASWA
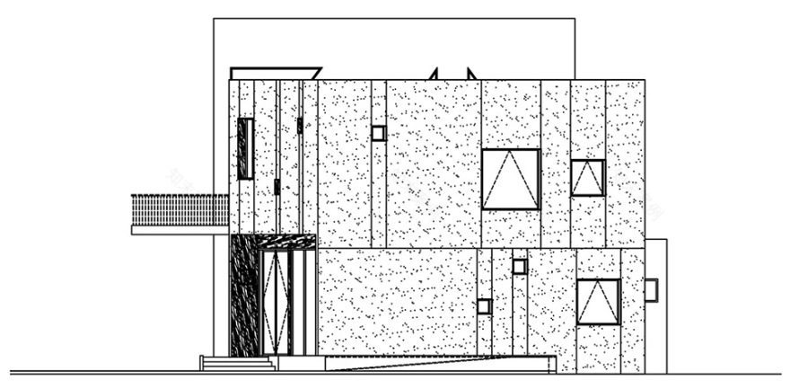
▼立面,elevation ©ASWA
▼剖面,section ©ASWA
DIFF Coffee Roasters
Project info:
Project name: DIFF Coffee Roasters
Architectural Design: ASWA (Architectural Studio of Work – Aholic)
Interior Design: ASWA (Architectural Studio of Work – Aholic)
Location: Phitsaulok, Thailand
Status: Completed
Area: 800 sq.m.
Type: Cafe and Bar
Design Team: Phuttipan Aswakool, Chotiros Techamongklapiwat, Prassapol Sanguanwattanaraksa, Napasorn Luengkiattikhun, Visarut Vongjirasak
Photographers: Soopakorn Srisakul
客服
消息
收藏
下载
最近








































































