查看完整案例

收藏

下载
Muhr别墅的重建项目旨在在尊重其深厚历史底蕴的同时,融合现代建筑理念与生态可持续原则。这座别墅最初由奥地利建筑师Franz Ritte Von Neumann于1902年为Adolf Muhr而建,起初作为狩猎度假地,后来曾用作皇家住所、医院,最终成为一家酒店的附属建筑。随着时间推移,建筑逐渐荒废,并于2014年倒塌,仅留下部分石质地基。该项目植根于博希尼地区的建筑传统,以精致而创新的方式重新诠释阿尔卑斯山区的经典元素。
The reconstruction of Vila Muhr seeks to honor its rich history while embracing modern architectural and ecological principles. Originally built in 1902 by Austrian architect Franz Ritte Von Neumann for Adolf Muhr, the villa served as a hunting retreat and later became a royal residence, a hospital, and eventually a hotel annex. Over time, neglect led to its collapse in 2014, leaving only remnants of its stone foundation. Rooted in the architectural heritage of Bohinj, the project reinterprets traditional Alpine elements in a refined and innovative manner.
▼雪景,snow day view©MIRAN KAMBIC
▼建筑外观,exterior view©MIRAN KAMBIC
▼侧立面,side facade© JANEZ MARTINCIC
▼建筑与远山,architecture and alpine©MIRAN KAMBIC
设计方案尊重原别墅的历史布局,保持其体量感和朝向。重建的体型遵循原建筑的比例和空间组织,延续了与自然环境及邻近的博希尼酒店之间的关系。通过将废墟中回收的石材用于一层立面,项目不仅保留了与历史的有形连接,也增强了建筑的真实性。
▼建筑历史照片。historical photo of the villa
The design respects the historical footprint of the original villa, maintaining its volumetric presence and orientation. The reconstructed form follows the proportions and spatial organization of the former building, preserving the relationship with its natural surroundings and the adjacent Hotel Bohinj. By incorporating salvaged stone from the ruins into the ground floor facade, the project maintains a tangible connection to the past while reinforcing the building’s authenticity.
▼建筑外观,Exterior view©MIRAN KAMBIC
▼外立面木材经过传统炭化工艺处理,
the facade wood is treated by traditional carbonization process © JANEZ MARTINCIC
▼近景,closer views© JANEZ MARTINCIC
▼露台与阳台,terrace and balcony© JANEZ MARTINCIC
▼细部,details© JANEZ MARTINCIC
▼立面近景,closer view of the facade© JANEZ MARTINCIC
▼阳台,balcony© JANEZ MARTINCIC
重建的核心原则之一是使用可持续、就地取材的建筑材料。一层采用再生石材,而上部则包覆斯洛文尼亚本地木材,经过传统炭化工艺处理,以提高耐久性且无需使用化学制剂。这种灵感源自古老工艺的方法,不仅保证了材料的长久使用,也提升了建筑的自然美感。原有木质阳台的重构在细节上体现了传统工艺与现代建造技术的和谐融合。
A key principle of the reconstruction is the use of sustainable, locally sourced materials. The ground floor features reclaimed stone, while the upper levels are clad in Slovenian timber, treated through traditional carbonization techniques for durability without the use of chemicals. This method, inspired by ancient practices, ensures longevity and enhances the building’s natural aesthetics. The reinterpretation of the original wooden balconies fosters a seamless blend of traditional craftsmanship with modern construction techniques.
▼一层采用再生石材,the ground floor features reclaimed stone©MIRAN KAMBIC
▼近景,closer view© JANEZ MARTINCIC
▼建筑外观,exterior view©MIRAN KAMBIC
▼建筑外观细部,details of the exterior view©MIRAN KAMBIC
▼细部,details©MIRAN KAMBIC
▼阳台,balcony©MIRAN KAMBIC
新Muhr别墅在功能布局上结合了待客、文化与历史。地面层为餐厅,其室内设计采用再生木材并融合本地工艺特色;一层设有会议厅,作为灵活的公共活动空间;上部楼层则设有四间特色套房,每间均配有壁炉、桑拿及全景景观。大面积开窗与阳台使室内外景观相互渗透,强化了与自然的联系。
The new Vila Muhr integrates hospitality, culture, and history within its programmatic framework. The ground floor houses a restaurant with an interior that features reclaimed wood and locally inspired craftsmanship. A conference hall on the first floor offers a dynamic space for gatherings, while the upper floors accommodate four exclusive suites, each designed with unique features such as fireplaces, saunas, and panoramic views. Large openings and balconies create a direct visual and spatial connection with the surrounding landscape, reinforcing the indoor-outdoor experience.
▼餐厅,restaurant©MIRAN KAMBIC
▼会议室,conference room©MIRAN KAMBIC
▼客房内的客厅,living room of the guest room©MIRAN KAMBIC
▼客房卧室部分,bedroom of the guest room©MIRAN KAMBIC
▼由浴室看卧室,viewing the bedroom from the bathroom©MIRAN KAMBIC
▼浴室,bathroom©MIRAN KAMBIC
一条原本连接别墅与酒店的地下通道亦被修复并改造为叙述式展览空间,展现Muhr别墅的历史演变及其在博希尼地区的重要地位。走廊内装饰有以风暴倒木手工打造的吊灯,以及受本地干草架装饰图案启发而设计的穿孔装饰,进一步强化场地的文化认同。
A restored underground tunnel, once linking the original villa with the hotel, has been revived as a curated exhibition space. This immersive passageway narrates the historical evolution of Vila Muhr and its significance within the Bohinj region. Elements such as handcrafted chandeliers made from storm-felled wood and perforationmotifs inspired by local hayrack ornamentation further celebrate the cultural identity of the site.
▼餐厅,restaurant© ANDREJ GREGORIC
▼细部,details© ANDREJ GREGORIC
▼走廊,hallway© ANDREJ GREGORIC
▼走廊细部,details of the hallway© ANDREJ GREGORIC
▼接待区,reception area© ANDREJ GREGORIC
▼客房,guest room© ANDREJ GREGORIC
Muhr别墅的重建是一场建筑性的致敬,它将历史精巧地融入当下。通过对材料、工艺与生态原则的敏感处理,该项目不仅复兴了一个历史地标,更在传统与创新之间建立了对话。Muhr别墅在尊重原始精神的同时拥抱可持续设计,堪称遗产导向型建筑更新的典范。
Vila Muhr’s reconstruction is an architectural tribute to the past, seamlessly woven into the present. Through its sensitive approach to materiality, craftsmanship, and ecological integrity, the project not only revitalizes a historical landmark but also establishes a contemporary dialogue between tradition and innovation. By respecting the spirit of the original villa while embracing sustainable design, Vila Muhr stands as a model for heritage-driven architectural renewal.
▼建筑外观夜景,exterior view at night©MIRAN KAMBIC
▼场地平面图,site plan© OFIS ARHITEKTI
▼改造前平面图,plans before renovation© OFIS ARHITEKTI
▼改造后平面图,plans after renovation© OFIS ARHITEKTI
▼改造前立面图,elevations before renovation© OFIS ARHITEKTI
▼改造后立面图,elevations after renovation© OFIS ARHITEKTI
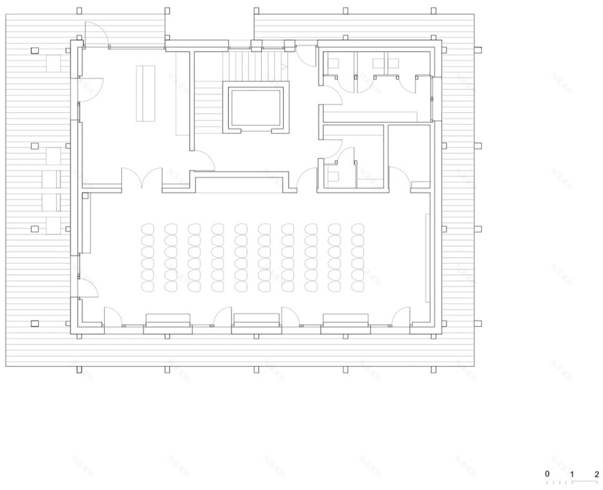
▼一层平面图,ground floor plan© OFIS ARHITEKTI
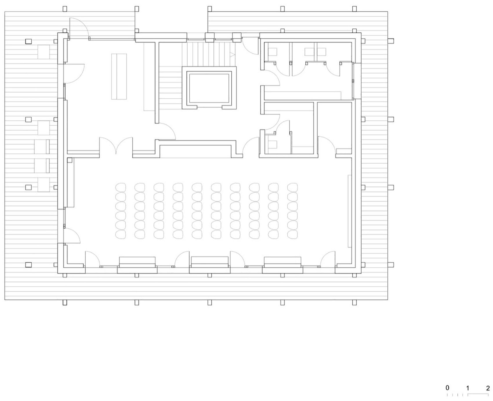
▼二层平面图,first floor plan© OFIS ARHITEKTI
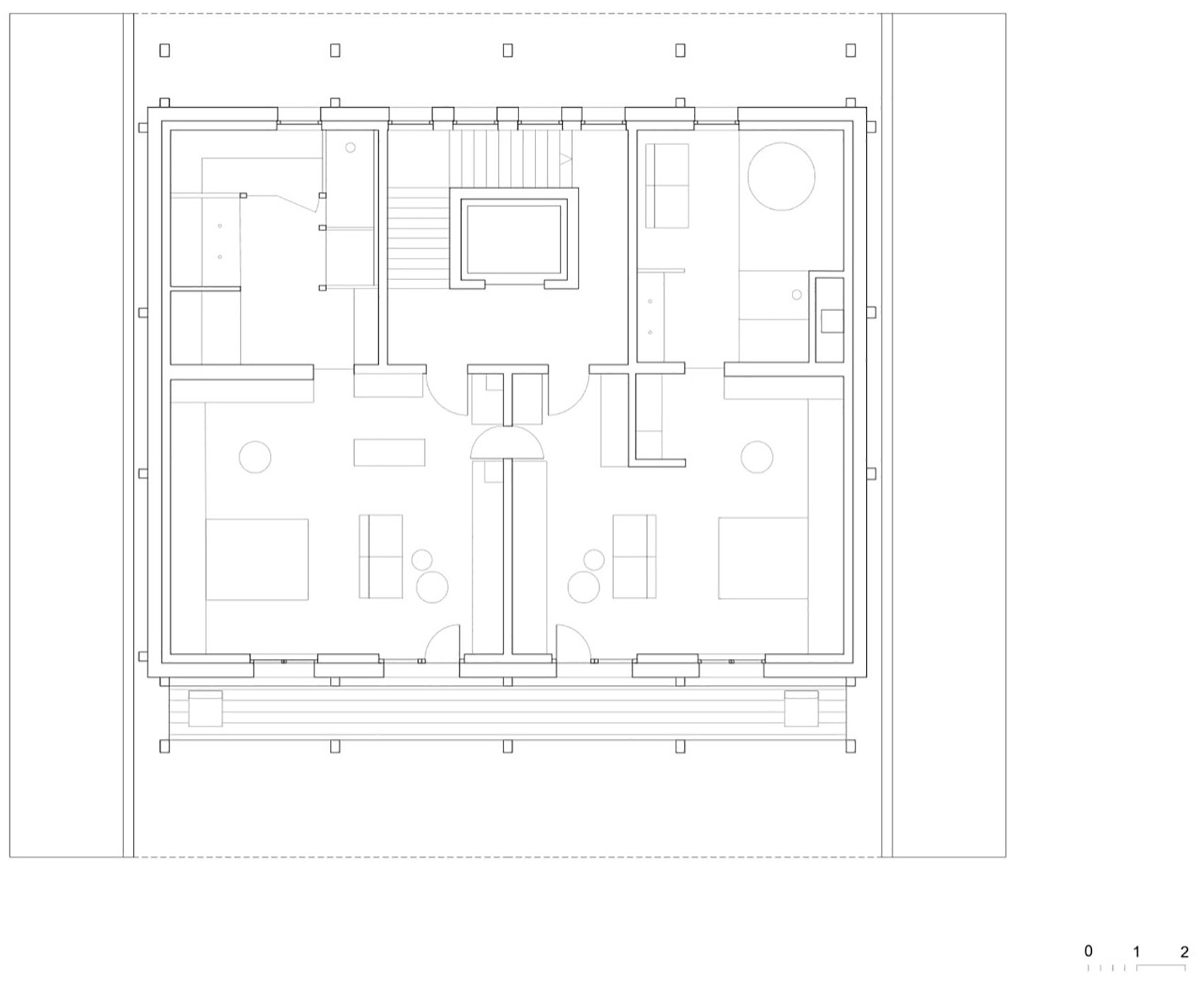
▼二层平面图,second floor plan© OFIS ARHITEKTI
▼四层平面图,third floor plan© OFIS ARHITEKTI
▼立面图,elevations© OFIS ARHITEKTI
▼剖面图,sections© OFIS ARHITEKTI
Location:Bohinj, Slovenia
Status:Project 2022
Construction start 2023
Opening 2025
Site area:1200 m2
Build area:1100 m2
Program: Hotel & Restaurant
Client: Alpinia
project team
OFIS ARHITEKTI
Rok Oman, Špela Videčnik, Janez Martinčič, Andrej Gregorič, Rok Dolinšek, Matej Krajnc, Borut Bernik, Amadej Mravlak, Giulia Sgrò, Nada Kodela, Deniz Itak, Juan Pablo Orbea
Structural engineering: Project PA
Electrical engineering: PRO-elekt
Mechanical engineering: MM-biro
Fire engineering: Lozej
Interior design: OFIS arhitekti with Drugačno pohištvo
Graphic design: Studio Klun
Unique pottery: Pia Mršek
Unique lighting: Tilen Sepič
General lighting: Arcadia
Contractors:
Main contractor: Tosidos
Roof and wooden façade contractors: Tesarstvo Štebe, Mizarstvo Ovsenik
Window contractor: Lesko Žiri
Interior-restaurant contractor: Drugačno pohištvo
Interior suits and congress hall contractor: Svea, Lestor
Stair contractor: Jezeršek
Electrical instalations contractor: Eurolux
HVAC contractor: MM term
Glass contractor: Steklarstvo Osenar
Interior doors contractor: Mizarstvo Kržišnik
Sauna contractor: Savne Štrus
Tiling contractor: Keramika Štupar
Metal work contractor: Juhant
Fireplace contractor: Kamini Hrovat
Curtain contractor: Eroteks
客服
消息
收藏
下载
最近


































































