查看完整案例

收藏

下载
背景-从不确定开始
STARTING FROM UNCERTAINTY
空间的改造开始于2022年初,在很多的不确定中完成,缘起是工作室的成立需要办公地点,个人的线上杂货铺也希望尝试线下经营。但工作室的规模和办公人数在当时是未知、作为办公和店铺双重使用功能的权重难以预估、疫情封控导致的各种人力物料无法保证、租用空间的使用时限也难以确保。大量的不确定性对空间提出了一种新维度的要求:它需要容纳不确定、容纳丰富的可能性。
Renovation of the space started on JAN,2022 with a lot of uncertain conditions. It started due to a working space is demanded following the founding of our studio, with the intention to also combine a ceramic shop that was run online only previously. At that point, quantity of the people working in this space was unpredictable, which leads to the difficulty of dividing the space functionally between office and shop. Manpower and material supply could not be guaranteed with the pandemic going-on, and as a rented space, we were faced the risk of being kicked out of here anytime. All these circumstances raised a challenge to the design: this space has to accommodate uncertainties, or in another word, possibilities.
▼项目概览,overall of the project© Office FUU
现状-空间的叠加态
A SPATIAL OVERLAY
空间位于上海核心商业区富民路上的富民新邨内,建筑先后建成于1911年-1936年。建成之初这里是富贵阶层的居所,经过百年的更迭,最初整栋使用的三层联排别墅已经被大量切分,其中大部分仍作为住所使用,而别墅的一层因采光通风条件有限,不适合居住,多被改造成为工作室或小铺,隐在“巨富长”的闹市氛围中,我们改造的这个空间就是其中之一。
This is a space located in a historical building in the central areas of Shanghai. Built from 1911-1936, this compound used to be a group of joining villas occupied by the upper class. Over the past century, each villa has been divided multiple times. Most of the space remain apartments inhabited by local people or tenants. The ground floor rooms, however, being dark and not ventilated, are mostly renovated into studios or small shops. Hidden in one of the most commercial areas in Shanghai, the space we encountered belongs to one of them.
▼改造前原状,before renovation© Office FUU
这原是一个宽4.15m,深8m,高3.3m的房间,轮廓面积不大,但因为非常规的层高显得开敞。房间深处有一个小阁楼,阁楼下部是卫生间。东侧有一个浅院,院内立着一株枇杷树。远旧和新近的痕迹在这里叠加:围墙上的红砖贴面、老钢窗、壁炉和弧形倒角天花线脚,代表了这里优雅的历史,而一面巨大的镜子、临时支起的淋浴房和仿木地板,暗示出它最近一次被使用是作为一间瑜伽室。
With an outline of 4.15m x 8m, this room feels larger than it actually is due to its usual clear height(3.3m). A small mezzanine space was added at the end of the room above the toilet. To the east side located a small yard occupied by a loquat tree. Traces from different periods are overlayed around here. The red brick attached to the exterior wall; the old single-layered windows made of steel; a fireplace that has been blocked and the curved ceiling are all revealing the elegant history this place once had. On the other hand, the giant mirror; the temporal showering room and the fake wooden floor belongs to the latest occupier who has been using here as a yoga training room.
▼分析图,analysis diagram© Office FUU
策略-剥离与显现
REMOVAL AND REVEAL
空间的改造和设计从拆除开始,原有的淋浴房瓷砖、镜子、墙纸和木地板不再适应新的空间需要,被逐一拆除,剥离后的墙面除了粗糙的抹灰,也有被剥离材料先前安装时的痕迹,不同时间的建造痕迹被并置在一起,显现一种特殊的肌理。在地面上,新近铺置的木地板下是浅黄色、类似自流平的材料,时间的沉淀给它附上一层浅色的磨砂质感,带着微弱的反光,形成一种独特的、介于室内和室外材料的中间状态。被保留下的粗糙墙面、地面和白墙共同形成了空间的基底,空间的质感变得丰富,变迁的过程也得到了显现。
The renovation process, both design and construction, began with the dismantlement of elements that are no longer suitable: tiles, mirror, wallpapers and the fake timber floor. During the removal, the rough surface was exposed as well as the traces of installation of the removed material, thus it was quite interesting for us how these interesting patterns from different construction periods were overlayed on a very thin surface. As for the floor, beneath the fake timber lay some light yellow epoxy material. With the aging process it was coated a mute tone and was somehow showing a very subtle reflection on its natural textures, which to us is very special as it has a distinctivecharacter of both in indoor material as well as an outdoor one. The kept rough wall surface, the original floor and the neutral white painted wall, form the base of the space. It has no only rich expression of the materials, but also hints a unique story of the spatial evolvement.
▼结合拆除痕迹的展示架,Display stand with demolition marks © Office FUU
策略-“小房间”里的“大家具”
“BIG FURNITURE” IN “SMALL ROOM”
因为空间是租用,改造程度有限和成本低都是天然的限制条件,老建筑的元素也需要充分的保留与尊重,同时,这个不到三十平米的空间潜在的功能包括展示、零售、办公、会议、接待、聚会,放映等。繁杂且充满不确定性的设计条件下,我们希望用一个整体性的策略来来完成对空间的塑造和对功能的满足:一个“大家具”。“大家具”的“大”除了本身的尺寸,也因为区别于一般情况下硬装和软装二分方式,它以一个整体的、介于二者之间的姿态介入空间,而“家具”则暗示了它是以满足灵活的使用功能为前提、并且有意与现存建筑元素(门、窗、墙、天花)进行脱离。
Because this space was rented, naturally, what could be changed was restricted, same as the budget that was allowed. In the meantime, elements of the historical building demands protection and respect. Lastly, with the area being under 30 square meters, this space was expected to allow all kinds of programs: exhibition, retail, office, meetings, events, gatherings. We decided to cope with all these complex conditions with one simple gesture: integrating a “big furniture”. “Big” implies not only the size of the furniture, but also a unique way of treating our intervention with the space: an “totality” that combines interior finish with furnishing, instead of following a traditional approach that separates the two. “Furniture”, on the other hand, indicates a strong emphasis on the functionality, as well as the intention to be detached from the historical elements.
▼家具与细部,furniture and details© Office FUU
▼剥离与显现,removal and reveal© Office FUU
“大家具”从一张巨大的桌面板延申出来,向四周的墙体延申。桌面由三张1.2m宽的桌子拼接而成,每张桌子两侧的面板可以分别上翻或下折,形成多种不同的空间尺度和使用场景, 翻起的桌面版在两侧分别用了不同的宽度,一侧为560mm:对应办公的需要,另一侧为320mm:满足展示的场景,中间的实体部分宽570mm,顶部开槽口,插入活动的隔板可以将两侧适当分离。实体部分的内部则用作储藏,延伸到尽头向上交错变换成阶梯状的展台,也兼做步上阁楼的台阶。
“Big furniture” extends from a large table to the surrounding walls. Joining by three 1.2m wide tables, the big table sits in the middle of the space. Each table has to foldable wings that combined could shape all types of scale and scenario possibilities for the space. Width of the wing are defined differently: 560mm for working purposes and 320mm for exhibition. Between the two wings is a 570mm solid piece, which creates sufficient storage space inside. Above it a slot opening was cut to insert a board that could separate parallel programs. By extending the solid piece and raise it into a staggering shape, more exhibition surfaces are created which could also be easily used as steps towards the attic area.
▼巨大的桌面板延申出来,向四周的墙体延申,“Big furniture” extends from a large table to the surrounding walls © Office FUU
由桌面版延申出来的外围部件随着门窗和壁炉的位置或断开、或高低错动,同时容纳包括座凳、展架、门洞、置物台、拦板等功能。木板在遇到粗糙墙面的时候局部退让出开口,显露出背面的骨架和保留下来的粗糙墙面,两种肌理的对比强调出新旧的故事,也形成一组组扁平、错动、富有几何感的“拼贴画”。
The outer components, growing from the central table, are designed to be flexible system. It breaks or turns along existing doors, windows, for fireplace, and creates chairs, shelfs, door openings, railings, etc. When the wooden boards meet the rough surface that was kept, seemingly random gaps are intentionally left to reveal the old wall. It is at these moments that the old and new overlays, adding a new chapter to the evolvement of the space and forms pieces of flat, dynamic and geometrical “collage paintings”.
▼桌面延申出高低错动的围板,the table extends the coaming plate with different height© Office FUU
▼细部,details© Office FUU
策略-单一材料的丰富表现
VARIOUS EXPRESSION OF ONE MATERIAL
复杂的“大家具”选用最为基本的材料制作而成:30x50mm的木枋,和18mm厚的桦木板材,这是降低成本和简化加工工序的考量。木枋作为骨架,锚固在原有墙体之上,调节老房屋墙地面不平整误差的同时,也自然形成面层和原始墙体之间的缝隙,新旧材料得以在建造和外观上轻轻地脱离。18mm厚的桦木板材标准尺寸为1220x2440mm,切割容易,且1220mm可直接作为桌面及装饰墙面宽度的基本单元,省去不少木工师傅的切割工序。板材表面有细腻的木纹理,截面有简洁的几何线条,两相叠加可以形成线面组合的丰富层次。在需要结构强度的区域,两层木板粘合形成36mm厚的面板。单一材料因而借由各种拼接和组合,在满足多样的功能的同时,形成丰富细腻的外观效果。
The complicated “big furniture” systems are made of two most basic materials: 30x50mm wooden pillars and 18mm thick birch planks, which are easy for the carpenter to work with and lower the cost dramatically. As skeletons, wooden pillars are cut on site and mounted to the existing walls. They genteelly adjust the unevenness of the existing walls, and at the same time create a gap between the attached boards and wall, enabling a light detachment of the added elements from the old. Birch planks come with a standard size of 1220x2440mm and can be easily cut. We decided to use 1220mm as the standard module for table width and the surrounding boards, which saves the carpenter loads of cutting work. On the front side of the board there is a subtle wooden texture, while at the section side, layers of the material are shown as a straightforward pattern of light and dark lines. When structural strength is needed, two 18mm thick boards are glued together to serve as table tops or supporting elements. By composing one single material based of structural and functional principles, we aim to create a unified, delicate and rich expression of the “big furniture”.
▼材料的拼接,splicing of materials© Office FUU
▼细部,details© Office FUU
后记
EPILOGUE
空间的设计和使用至今已近两年半,最初的不确定变成了确定:施工周期因为疫情被延长两个月有余;大部分使用方式的预设都转换成了实际的使用经验:从最开始的纯店铺+一人工作室+宠物托儿所+电影放映厅,到后来的半工作室半店铺,到最后几乎纯用作办公和会议。在这个过程中,“大家具”像是一个生命体被不停的切换和调用,现在它正步入新的周期。
Two and a half years has passed since the renovation and occupation of the space, most of the uncertainties eventually become certainties: construction was delayed by over two month due to the lock-down, and most of the anticipations became actual using experiences. Starting by being a retail ceramic shop + one-man studio + pet daycare + weekend movie theater, the room then became half shop + half office + event space, and eventually purely as working space. During this process, “big furniture” was constantly switched and adapted like a living creature, and will now continue to serve in its new life circle.
▼使用场景,daily scenario© Office FUU
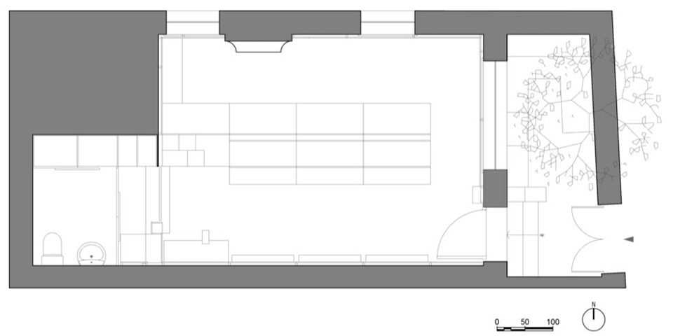
▼平面图,plan© Office FUU
▼立面图,elevations© Office FUU
项目名称:上海富民路一大白&杂碎工作室
项目类型:室内/改造
设计方:Office FUU 一大白设计研究所
项目设计:Office FUU 一大白设计研究所
完成年份:2022
设计团队:王峰、张珏
项目地址:上海市静安区
建筑面积:35㎡
摄影版权:Office FUU 一大白设计研究所、Aha Space Bakery
合作方:施工-上海雅历设计装饰有限公司
客户:ZASUI Space
材料:多层板
Project name: Office FUU + ZASUI Space Renovation
Project type:Retail Interiors/Renovation
Design: Office FUU
Design year: 2021
Completion Year: 2022
Leader designer & Team: WANG Feng, ZHANG Jue
Project location: Jing’an District, Shanghai
Gross built area: 35㎡
Photo credit: Office FUU、Aha Space Bakery
Partner: Construction: Shanghai Yali Design Decoration Co.,Ltd.
Clients: ZASUI Space
Materials: Wooden boards
客服
消息
收藏
下载
最近


































