查看完整案例

收藏

下载
住宅本质应当是舒适松弛的,室内并没有运用大量的形式语言。反而去探索空间结构,使得更加开阔明朗,自然寂静。
探索空间结构,感知自然寂静
空间中设定更多可互动的场景
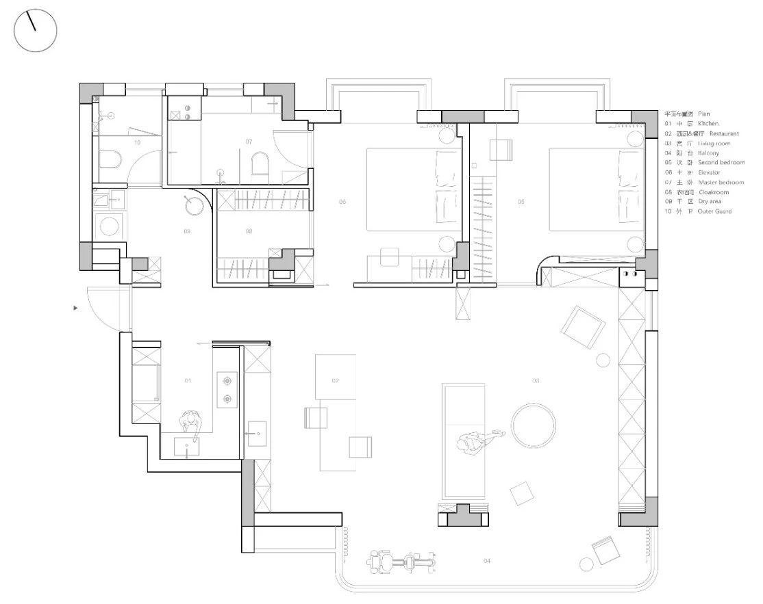
这座130.268560㎡的住宅位于梧桐浓郁,充满历史底蕴的愚园路上,在充分考虑了建筑结构和委托人需求后,对空间进行了更为全面合理的布局规划。通过对整体动线的调整,有效且最大限度的让空间变得通透,解决了空间难点。
以大量的米色塑造纯粹空间,除考虑基本的使用和收纳功能之外,空间中设定更多可互动的场景。提升生活趣味性的同时,也增强了整体的采光与通风。
改造过程中局部的结构承重墙体不可敲除,对处理动线有些许阻碍。用木色墙板包裹装饰不仅让空间结构清晰,也增加温润质感,使得更加温馨。
温润的木饰面与艺术漆塑其空间的质感,呈现出丰富的质感和细腻的层次。
温润的木饰面与艺术漆塑其空间的质感
客厅背景墙的开放格运用洞石材质让空间更有层次感,书架结合电视和多种开合方式的设计将休闲看书与观影模式巧妙结合起来,在这里去感受生活中最真实的状态和生活的不同可能性。
开放格运用洞石材质让空间更有层次感
西厨搭配独立拼接式开放岛台,叠加了用餐、休闲、社交等属性,与家人生活的点滴散落于此,回归生活的本质。
客餐厅连贯的吊顶设计,以梁为界。使得餐厅和客厅既独立又联动,弱化了横梁的存在感。
独立拼接式开放岛台,回归生活本质
空间与空间的对话,模糊边界感,在提升体验感的同时,也增强了整体的采光与通风。
岛台叠加了用餐、休闲、社交等属性
卫生间干湿分离,地面米色大砖铺贴让整个空间更加干净静谧。弧形转角处理打破常规,体现了空间的慵懒舒适,洞石的粗糙质感和不锈钢的光泽创造了完美平衡。
洞石的粗糙质感和不锈钢的光泽创造了完美平衡
摒弃复杂的造型,主卧床背景运用半高墙面配合软包,有造型感的同时保证舒适度。黑色梳妆台满足女主人的日常需求,让空间更加稳重高级。
衣帽间和主卫的隐形门设计让卧室整洁明亮,还贴心在门上设计了猫门,方便猫咪随意进出。晨曦微澜,阳光流转,所处其中感知空间、光影、自然和岁月的美。
主卫大面积以洞石为主调,搭配浅色系瓷砖铺贴和黑色五金配件,营造出一种高级质感。长条形的洗漱台面可以满足日常两人使用,天花下挂的银镜与台面形成空间结构。
下挂的银镜与台面形成空间结构
次卧悬浮床设计视觉上减少了空间的束缚,配合灯带烘托质朴的氛围感。物件陈列在洞石展示层板上,营造温暖安静的空间氛围。
洞石展示层板营造温暖安静的空间氛围
次卧浅色木质地板与深色书桌形成鲜明的对比,整面的柜体满足日常储物需求。简朴为极,寻其义,思即在,复返无穷。
卧室一角
客服
消息
收藏
下载
最近































