查看完整案例

收藏

下载
本项目以「保留空间可能性」为核心概念,致力于创造具有高度适应性的留白场域。家具、装置和设备均被整合于墙体内、地板下及天花上,确保室内空间可随时恢复完全开放状态。
“当空无一物时,一切皆有可能。但当建筑出现时,任何(其他)可能性都被限制。”——雷姆·库哈斯
“ Where there’s nothing, everything is possible. Where there is architecture, nothing (else) is possible. ”——Rem Koolhaas
▼空间概览,Overview of the space©郭哲
时间维度的叙事通过水平基准线展开:线体下方以质朴木饰面呈现澳门户主建筑师世家的传统轮廓,通过视觉重力感传递传统根基的厚重;线体上方空间则以解构手法打造,运用不同的白色与金属塑造抽象未来质感,形成稳定与流动的时空对话。
The project revolves around the central idea of preserving the void of the space, establishing a flexible emptiness capable of accommodating activities of diverse nature while offering ergonomical inspirations. Furniture, fixtures, and utilities are meticulously embedded into the walls, floors, and ceilings, enabling the interior to seamlessly return to an open and uncluttered condition when desired.
▼时间维度的叙事通过水平基准线展开,the project revolves around the central idea of preserving the void of the space©郭哲
▼运用不同的白色与金属塑造抽象未来质感,The use of different whites and metals to create an abstract future texture©郭哲
作为多功能创作实践平台,空间通过多元人体工学设计激发身体活动与思维深度的互动关系。可调节的立体界面系统实现物理空间与使用需求的动态契合,使场所成为承载思维运动与身体位移的跨学科创作工具。
In elevation, the space is articulated through a distinct horizontal datum—a waistline. Below this line, the design manifests a considered homage to the architectural heritage of the owner family’s generational legacy in Macau; classical silhouettes rendered in a rich materiality of wood veneer provide visual gravity and a grounding sense of tradition. Contrasting this stability, the space above the datum line expresses an intentional fragmentation, articulated in tones of luminous whites and silvers. This upper domain is deliberately abstract and futuristic, subtly suggesting the continuous evolution of the family’s legacy and reflecting an openness to future possibilities.
▼实现物理空间与使用需求的动态契合,Achieving a dynamic fit between physical space and usage needs©郭哲
▼茶水间,pantry©郭哲
空间序列始自缓坡入口区:倾斜坡道配以嵌入式转角沙发及组合茶几,形成非正式的交流场域。纵深处的中央开放区由嵌入式座位模块界定,当模块完全收纳时即转换为可变展览空间,配合天花上多组智能灯具系统和声学吸音板,可容纳各种展览模式和演出。
Functionally, the space serves as an apparatus for creative practice, consciously designed to inspire ergonomic interaction and stimulate both physical movement and thoughtful contemplation. It becomes an instrument of creation, fostering multidisciplinary engagement through the harmonious interplay between stillness and activity, thinking and motion, ascent and descent. The interior is customizable, actively adapting to the needs and preferences of its users. Entering the space, one first encounters a gently inclined ramp, furnished with an angled sofa accompanied by a corresponding low tea table—an informal area promoting casual dialogue and reflection. Progressing further inward, one arrives at a central void, defined by recessed seating elements. When these seating modules are fully retracted, the central void transforms into an open exhibition area, capable of accommodating diverse spatial arrangements and curatorial intentions.
▼地板下隐藏空间,hidden space under the floor©郭哲
▼嵌入式家具,built-in furniture©郭哲
▼会议空间,meeting space©郭哲
▼悬浮式长桌,floating table©郭哲
▼可自由移动组装的空间,freely movable assembly space©郭哲
会议区设置具功能性的艺术装置:悬浮灯盘式玻璃长桌于五组叠摞高凳之上。降下桌面、解开高凳即形成十人会议座位设定。侧墙暗藏玻璃分隔板可延展围合成独立单元。
Beyond the central void, a sculptural installation defines the terminus of the space—a suspended, elongated table hovering above five carefully stacked sets of high stools. Upon descending the table and splitting each stool into two chairs, the composition unfolds into a formal conference setting able to comfortably accommodate ten participants. For enhanced privacy and spatial enclosure, partitions integrated unobtrusively into the surrounding walls can be deployed, delineating a contained area conducive to focused discussion and collaborative exchange.
▼悬浮灯盘式玻璃长桌,floating glass table©郭哲
▼悬浮灯盘式玻璃长桌,floating glass table©郭哲
通过空间的灵活机制、动态人体工学与材料叙事的多维整合,该项目最终成为随使用者行为持续重构的活性载体,在时间维度中不断生成新的空间语义。
Through this careful orchestration of spatial flexibility, dynamic ergonomics, and refined material expression, the project becomes a living vessel, continually reshaped by human interaction and creative purpose.
▼家具细部,furniture detail©郭哲
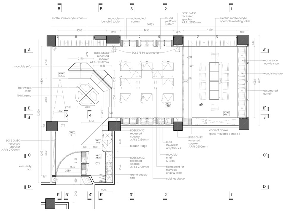
▼平面图,plan©蔡田田建筑师事务所 / 一间建筑 A( )VOID
▼天花平面图,ceiling plan©蔡田田建筑师事务所 / 一间建筑 A( )VOID
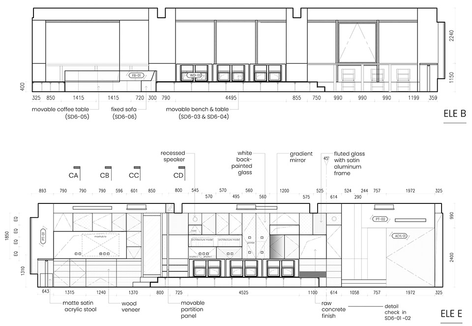
▼立面图,elevation©蔡田田建筑师事务所 / 一间建筑 A( )VOID
▼局部立面图,elevation©蔡田田建筑师事务所 / 一间建筑 A( )VOID
▼家具图纸,furniture drawings©蔡田田建筑师事务所 / 一间建筑 A( )VOID
建筑设计:蔡田田建筑师事务所 / 一间建筑 A( )VOID
办公电邮: /
地址:澳门,中国
项目年份:2024
建筑面积:2300 ft2
主创设计师:黄静仪,韩橼
其他设计师:杨家宝,林欣仪
内装工程:保昌工程有限公司
家具制作:帅文平
摄影师:郭哲
Project Name: 3J Generative Space
Office Name: Joy Choi Arquitecta / A( )VOID
Social Media Accounts: , , /
Firm Location: Macau SAR, China
Completion Year: 2024
Gross Built Area (m2/ ft2): 2300 ft2
Project location: Macau SAR, China
Program: multifunctional space
Lead Designer: Jenny Wong, Yun Hon
Other Designers: Edward Yang, Elsie Lam
Photographer Photo Credits: Guozhe
Photographer’s Instagram: guozhe_07
客服
消息
收藏
下载
最近







































































