查看完整案例

收藏

下载
地址:阅园二区
设计施工单位:久栖设计
面积:72㎡
造价:25万
风格:原木风
说在前面:
本案位于北京海淀区,新婚夫妻希望能打造可弹性延展的居住空间。以后会增加家庭成员,需要在家满足居住,临时办公,最大化储物,以及未来儿童房预留空间。既符合现在居住,也可随着时间变化,可有一定预留的功能。设计风格喜欢以清新的原木为主,让未来的家变得温馨舒适。
浅木色地板与暖白墙面构筑清新基底,原木茶几与几何纹地毯搭配,加上阳光透过纱帘倾泻,在简约秩序中流淌温润松弛的生活诗意。
浅木色基底漫溢温润光晕,总长2米嵌入式电视柜消解厚重感。圆润矮几与编织纹路相映,在通透布局中勾勒出松弛有序的生活画境。
暖色的沙发环抱圆润矮几,让客厅变得松弛。几何纹地毯轻点趣味,柔光漫过素纱,通透格局流淌着静谧闲适的生活光影。
浅色调空间沐浴在自然光中,米色沙发与木质餐桌相映,客餐厅相互借景,开放式布局承载生活温度。
浅木地板与米色布艺沙发搭配,奠定了温润的空间基底。原木餐桌椅延续简约线条,让空间变得更有秩序。
浅木色空间内,客厅与餐厅形成了自然过渡。整面5.8米的大柜子,书架错落点缀趣味摆件,既能收纳又能展示。整个空间浑然一体的效果,更显得连贯又有整体感。
浅木色基调串联客餐厅,5.8米整面大柜整合错层收纳。几何地毯界定功能分区,落地窗引入柔光,木质肌理与灰调布艺碰撞,增添家的柔和质感。
长度1.4米的餐桌与餐边柜组合,满足餐厅的小件物品摆放。右面通顶展架整合书籍与藏品陈列,弧形书架与吊顶相呼应。吊灯暖光漫射在白墙与原木之间,串联起用餐与阅读场景。
过道右侧作为承担全屋收纳的重点,由白色无把手平板柜和弧形书架组成,线条分割的效果形成空间秩序,让家月住越干净。
整体色调白+木,温馨又自然,围合出空间整体氛围。木地板从餐厅直通阳台,延伸出来的效果让家更显大。
自然光漫过家具的木质肌理,自然属性在极简线条与暖调材质间,流淌出宁静治愈的现代生活美学。
浅木餐桌衔接餐边柜,整墙储物可收纳零食杂物,还能再将小电器安置在台上。柔光漫射浅灰墙面,原木肌理与织物软装搭配,让整个用餐环境更加治愈。
玄关增添八百库收纳系统,外侧是悬浮柜为玄关使用,面对餐厅是鞋帽收纳区,承担了全屋最多的储物。内部是空间较大的杂物间,用来放置大件物品和杂物。
卧室无床头设计,浅木色墙板分割墙面更有层次感。线条小吊灯为卧室一角增添温暖和阅读光线。
次卧由地台床和嵌入式衣柜组成,主要提供更多的家庭收纳空间。
由一整面墙做收纳,线条分割白色衣柜,隐藏把手所花存在感,通体效果统一。上方做了一扇扇叶柜门,用来隐藏壁挂空间。
干湿分区处用黑白格小花砖铺贴地面,形成对比又增添安趣味性。
湿区延续干区整体氛围,防水石膏板分隔淋浴区,并暗藏灯带提供照明氛围。
整体厨房干净明亮,总长4.9米的厨柜满足厨房所有收纳和使用。通铺的灰调瓷砖搭配简洁的白色橱柜,经典耐看还易打理。顶部无主灯设计漫射柔光,让紧凑布局中保有烹饪的舒适度。
灰调的瓷砖易擦洗,并且与台面一体衔接。底柜中整合了洗碗机等电器的安放,将抽油烟机嵌入吊柜效果整齐干净。
改造后:
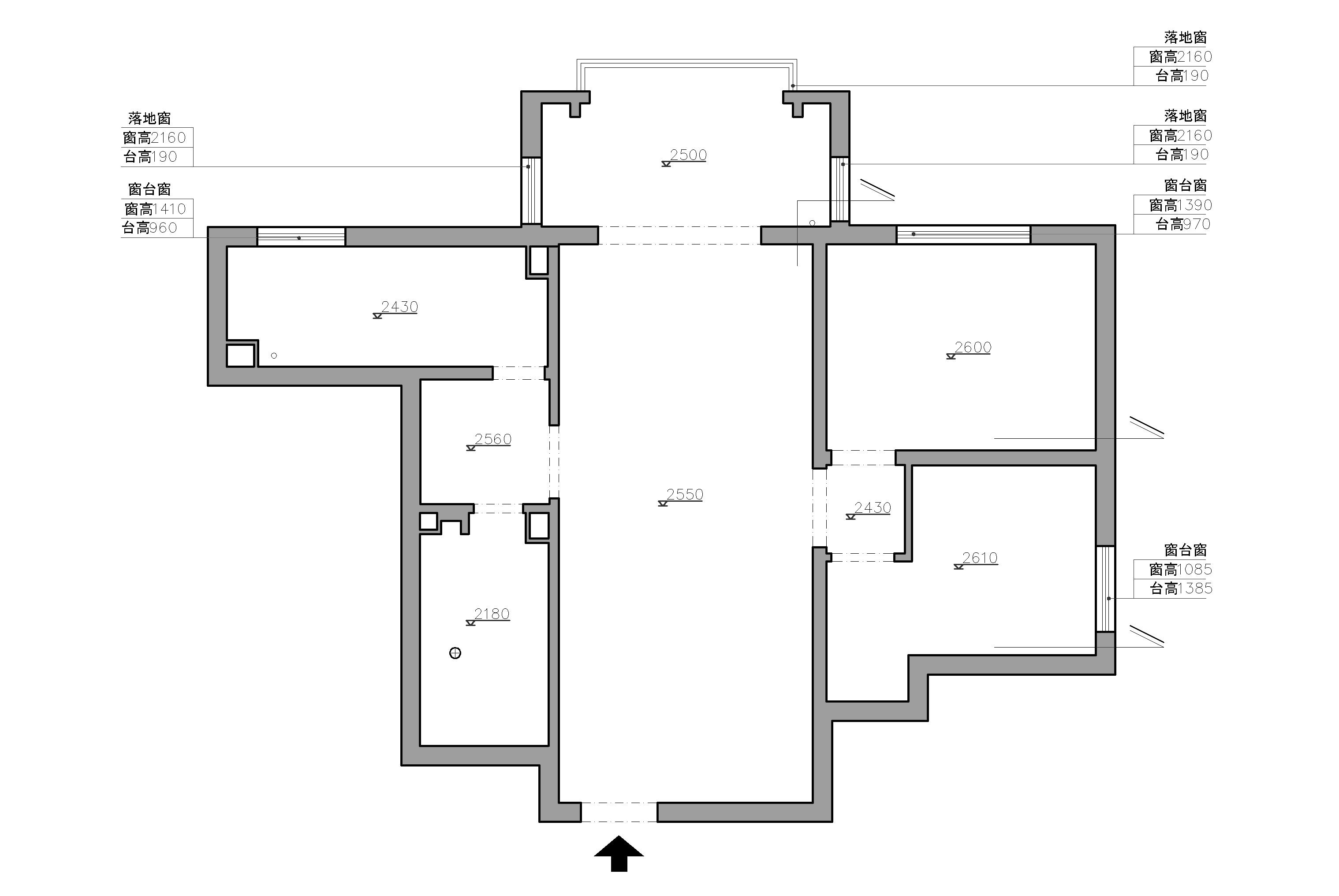
1.梳理了整体动线,让空间利用更高效
2.通过做满墙柜和八百库,增加了大量储物收纳
3.卫生间干湿分区,让日常洗漱不冲突
4.改变次卧格局,增加出衣帽间功能
5.次卧空间格局做预留,为临时客宿和未来的孩子居住使用
客服
消息
收藏
下载
最近


























