查看完整案例

收藏

下载

翻译
Architects:Felipe Hess Arquitetos
Area:800m²
Year:2023
Manufacturers:Mado – esquadrias & Fechadas,Pedra Limestone Mont Dore,RB Pisos
Category:Houses
Project Team:Felipe Hess, João Paulo Carrascoza, Thais de Freitas– Interiores: Patrícia Sturm
Engineering:Meta Engenharia
Structural Project:Meta Engenharia
Air Conditioning:Logitec
Landscape Project:Flavia Tiraboschi Paisagismo
Electrical And Plumbing Design:Guimaro eng
Lighting Design:Felipe Hess arquitetos - Cia de Iluminação
Joinery:Marcenaria Taniguchi
City:São Paulo - SP
Country:Brazil
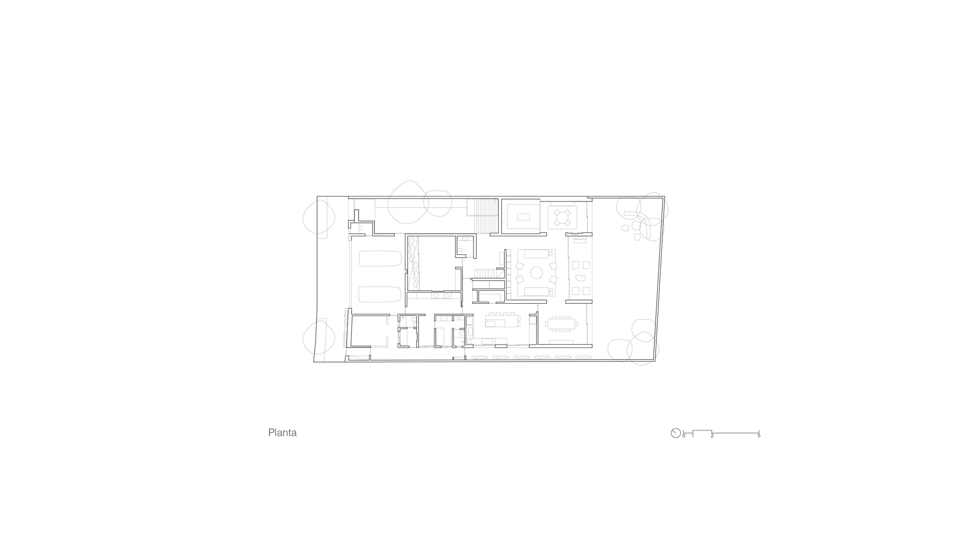
Text description provided by the architects. Located in Jardins, Ibsen House stands out as a dense and introspective building. Its adjusted volume defines a striking presence, with facades that close off from the street and reveal, internally, a more fluid path between patios and balconies. The materiality reinforces this interpretation: the dark, austere brick contrasts with the vegetation that spreads throughout the house, from the spring that rests on the open wall to the steel cables that guide the greenery towards the roof.
The limited land led to a vertical solution, distributing the uses in a precise manner. On the ground floor, the living, dining and kitchen spaces connect to the backyard garden, while the wine cellar and gym occupy more private areas. On the middle level, four suites and a family room face patios and small balconies, bringing in natural light and ventilation. On the roof, the leisure area opens up to the urban landscape, taking advantage of the view of the city skyline. Flávia's landscaping complements this space, creating an elevated terrace where greenery blends with architectural elements.
With a strong influence from Mexican architecture, the house is structured in well-defined blocks, marked by recesses and recesses. The materiality, however, moves away from Barragán's vibrant colors and opts for a more sober palette, in tune with the profile of the residents – a young couple with two children. The result is a robust architecture that balances solidity and permeability, creating an urban refuge where greenery gradually takes over the space and envelops it.
Project gallery
客服
消息
收藏
下载
最近












































