查看完整案例

收藏

下载

翻译
Architects:Ogawa Nishikori Architects
Area:210m²
Year:2022
Photographs:Nao Takahashi
Lead Architects:Hiroki Ohawa, Maya Nishikori
Category:Houses,Community Center
Associated Architect:Oda Kazuhiro Architecture Office – Kazuhiro Oda
Engineering & Consulting > Structural:Kuroiwa Structural Engineers Co., Ltd. - Yuki Kuroiwa
Engineering & Consulting > Mep:Hasegawa Engineering Consultants - Hiroshi Hasegawa
Engineering & Consulting > Lighting:Daiko - Kimie Furusawa
Contractor:Trial – Yoshinaka Hayakawa, Ikuji Yano
Client:Matsuyama Tomo-no-Kai, the Matsuyama Chapter of the Fujin-no-Tomo Fellowship
Country:Japan
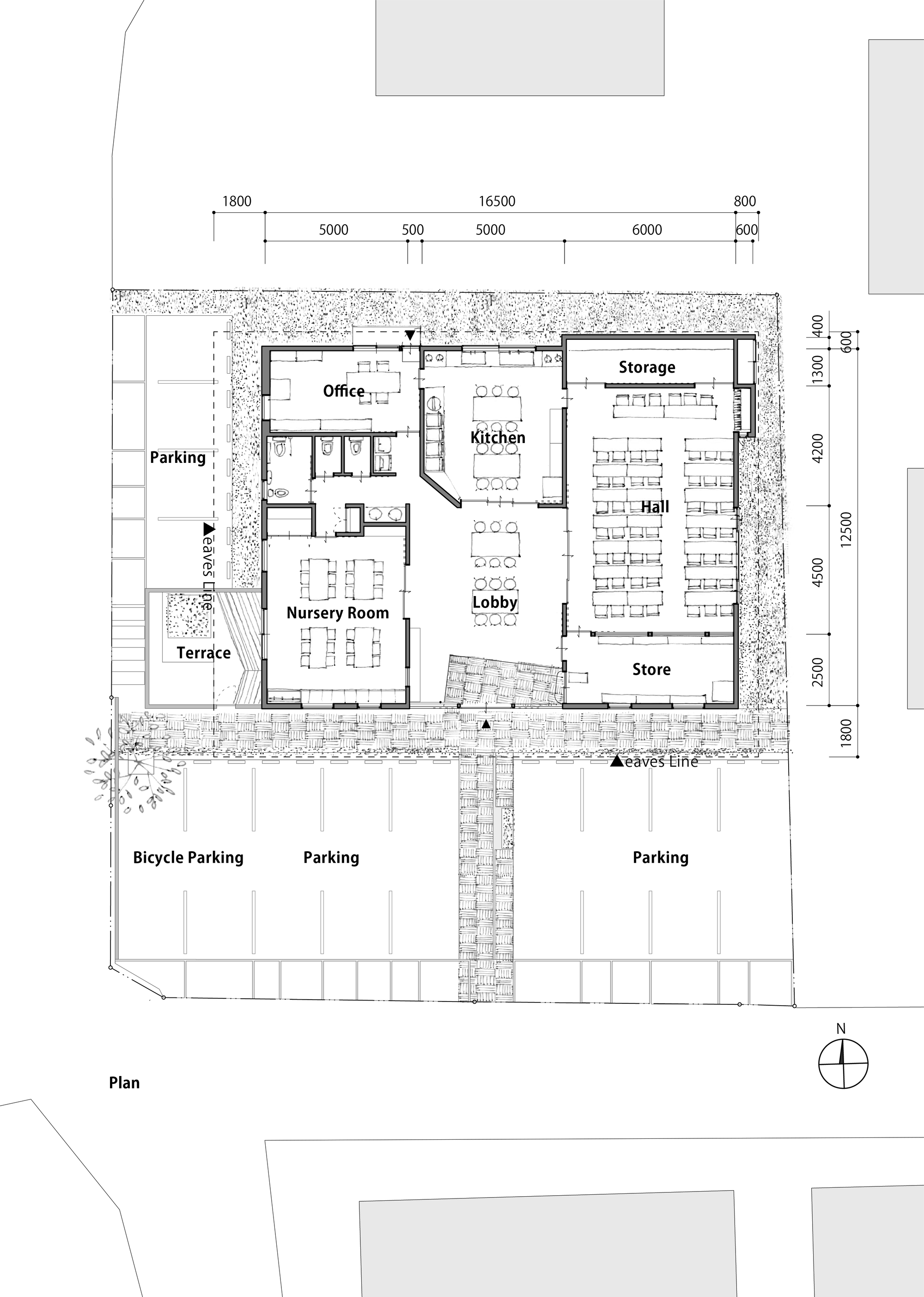
Text description provided by the architects. This project involves the reconstruction of a community-based facility designed to share knowledge about household affairs and children's education. Located in the suburbs of Matsuyama, Ehime Prefecture, the new building accommodates a broad range of users, from infants to seniors, fostering a space for diverse activities aimed at improving family life.
A large gabled roof defines the building's presence, giving it the familiar appearance of a "big house." Beneath this unifying form, spaces are arranged around a central lobby, ensuring seamless movement and flexible use. The layout supports both intimate gatherings and larger events, fostering a sense of community while maintaining a human-scaled atmosphere.
The roof incorporates high-side windows by lifting parts of the gable structure, introducing natural light and enhancing ventilation. Positioned in response to prevailing wind patterns, these openings allow gentle airflow while casting shifting patterns of light throughout the day. Deep eaves extend to the south and west, forming semi-sheltered outdoor spaces that blur the boundary between inside and outside. These spaces function both as open extensions of the interior and as more enclosed, comfortably scaled areas that encourage interaction.
The structural system features a dense beam layout with knee braces, minimizing the need for long-span timber and allowing the use of standard materials. This rhythmic framework subtly defines spatial units beneath the overarching roof, visually breaking down its scale while maintaining a cohesive whole. The repetition of beams and braces creates a dynamic interplay of light and shadow, altering perceptions of space depending on the viewing angle. By balancing clear structural logic with spatial richness, the design creates an adaptable, engaging environment that supports everyday activities and fosters connections among users.
Project gallery
客服
消息
收藏
下载
最近























