查看完整案例

收藏

下载
幸福的模样,从不是一成不变。在追求品质生活的道路上,每一个家庭都有自己独特的心仪与憧憬。今天,让我们一起走进一个现代简约风格的家居空间,看看这个家庭如何在简洁中找到属于他们的舒适与美好。
PROJECT
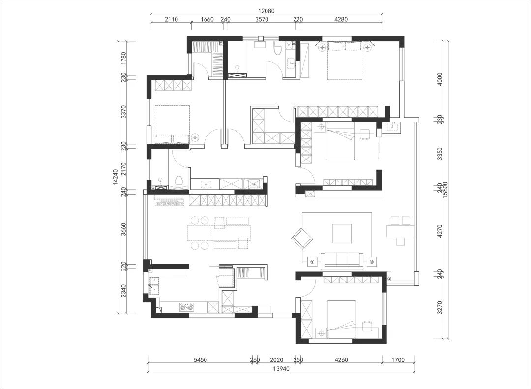
项目地址 | Address:镇江
设计师 | Designer:束云来
项目面积 | Project Area:200㎡
设计风格 | Design Style:现代简约
RENOVATION
户型改造:让光线与空间自由流动
这是一个拥有优越区位和良好景观的家,四周采光良好,让其价值斐然。从平面设计图上可以看到,设计师充分考虑了空间的利用和动线的流畅性。每个功能区域都经过精心规划,既满足了日常所需,又保证了空间的通透感。在这里,没有多余的隔断,整个空间仿佛在呼吸,阳光和空气自由地流动,让人心旷神怡。
LIVING ROOM
客厅:简约中的趣味与温馨
客厅是这个家的核心区域,设计师充分了解客户所需所想,既满足了日常所需又不失趣味。整体色调以白色和浅灰色为主,搭配简洁的线条和现代感十足的家具,营造出一种干净利落的氛围。沙发背景墙采用大面积的白色,搭配几幅简约的装饰画,既简洁又不失艺术感。电视背景墙则选择了深灰色的大理石,与白色的沙发形成鲜明对比,增加了空间的层次感。
客厅的布局充分考虑了家庭成员的互动,无论是看电视还是聊天,都能感受到彼此的存在。
RESTAURANT
餐厅:暖色木质的温馨与沉淀
餐厅与客厅相连,整体暖色木质成为空间中的重色,赋予其沉淀感却又不失温馨。客餐厅两边超大落地窗将屋外的阳光美景引入室内,赋予纯净空间柔和温暖的感知力。木质餐桌和餐椅的选择,不仅与整体风格相呼应,还增添了一份自然的质感。在这里,无论是家庭聚餐还是朋友聚会,都能感受到家的温暖和舒适。
BEDROOM
卧室:化繁为简 回归本真
作为家中最私密的空间,卧室摒弃了一切不必要的装饰。柔和的灯光、舒适的床品、恰到好处的木质元素,共同营造出一个让人彻底放松的休憩环境。晨光暮色从窗户引入室内,让每一天都从自然中醒来。
生活,本应如此简单而美好。本次设计不仅仅是对空间的改造,更是对生活的一种诠释。
客服
消息
收藏
下载
最近












