查看完整案例

收藏

下载
项目位于杭州九意法女装批发市场一层,原来为4个独立的服装展售商铺,设计要将这里改造成集咖啡和服装于一体的集合店。
The project is located on the first floor of Hangzhou 9YIFA Women’s Clothing Wholesale Market, originally four clothing retail shops. The design will transform it into a collection store integrating coffee and clothing.
▼花园廊道,a garden corridor©ACT STUDIO
▼项目入口,entrance of the project©ACT STUDIO
由场地出发,采用隐退的方式,柔化建筑界面,通过一个花园廊道连接,最终指向一种日常的诗意。
Starting from the site, with the method of withdrawal, softening the building interface, connected by a garden corridor, and finally pointing to a poetic daily life.
▼日常的诗意,a poetic daily life©ACT STUDIO
原场地由一道防火墙将空间硬性分割,在不破坏消防防火墙的前提下,我们将整个场地规整为一个不等边三角形与两个长方形,三角形强化场地本身的形态,长方形作为内部使用空间。
▼设计策略,design strategy©偏离设计
The original site is divided into two areas by a fire wall, and without destroying the fire wall, we reorganized the whole site into an isosceles triangle two rectangles. The triangle strengthens the form of the site itself, and the rectangle is used as the internal use space.
▼植入一个小花园,implant a garden©ACT STUDIO
在一个现代硬质的场域里,搭建钢构立柱营造与街面的连续感,强化场地的三角关系,植入一个小花园,以共享的方式构建一片风景,为市场里的人群提供一个日常诗意的场所。
In a modern hard field, steel columns are erected to create a sense of continuity with the street surface, strengthen the triangular relationship of the site, and implant a garden to construct a scene in a shared way, providing a daily poetic place for the crowd in the market.
▼钢构立柱营造与街面的连续感,
steel columns are erected to create a sense of continuity with the street surface©ACT STUDIO
室内采用大面积的玻璃引入花园景观,将自然感延续至内部空间。
The interior uses large areas of glass to introduce garden views, extending the sense of nature into the internal space.
▼采用大面积的玻璃引入花园景观,
uses large areas of glass to introduce garden views©ACT STUDIO
咖啡区仅有41个平方,尺度上吧台占据了绝对主体位置,设计以敞开的方式,与花园形成相互渗透的关系,在模糊内外界限后,人的互动性得以扩张。
The coffee area, with a mere 41 square meters, features a bar counter that assumes the dominant position in scale. The design, an open concept, establishes a permeable relationship with the garden, expanding human interaction by blurring the boundaries between the interior and exterior.
▼咖啡区,the coffee area©ACT STUDIO
▼咖啡区,the coffee area©ACT STUDIO
▼用餐区域,dining area©ACT STUDIO
我们希望营造一种真实的现场体验感,而非图式化的表达。
We strive to create a genuine sense of on-site experience, rather than a formulaic expression.
▼营造一种真实的现场体验感,
create a genuine sense of on-site experience©ACT STUDIO
服装区在以功能作为前提条件下,以局部的方式介入,通过材料拼接,构建室内空间。
The clothing area, under the premise of functionality, as in a localized way, and through material splicing, constructs interior space.
▼服装区,the clothing area©ACT STUDIO
▼服装区入口设计,the clothing area entrance©ACT STUDIO
▼服装区展架设计,the shelf design©ACT STUDIO
▼服装区局部设计,detail design©ACT STUDIO
此案是我们尝试通过设计行为,在当下存量建筑空间里,用小面积的局部改造达到构建一个日常的真实风景的可能性。
This case is our attempt to construct a realistic daily scene through design behavior, achieving the possibility of a small-scale local renovation in the stock building space.
▼细部设计,detail design©ACT STUDIO
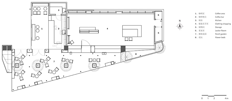
▼平面图,plan©偏离设计
项目名称:Co-Tree&candy集合店(杭州)
项目类型:服装集合店
设计方:DPAA偏离设计
项目设计:12/2024—01/2025
完成年份:2025年3月
设计团队:小岛、戚帅奇、付冬冬、李明思
项目地址:浙江省杭州市九意法女装批发市场一层
建筑面积:216㎡
摄影版权:ACT STUDIO
客户:合弈(广州)贸易有限公司
材料:水磨石,莱姆石,桦木板,不锈钢,剑麻地毯
Project name: Co-Tree&candy
Project type: Clothing collection store
Design: DPAA DESIGN STUDIO
Design year: 12/2024—01/2025
Completion Year: 2025/3
Leader designer & Team: xiaodao, Qi Shuaiqi,Li Mingsi,Fu Dongdong
Project location: Jiuyi French women’s clothing wholesale market on the first floor,Hangzhou City
Gross built area: 216㎡
Photo credit: ACT STUDIO
Clients: Heyi (Guangzhou) Trading Co., Ltd
Materials: terrazzo, lime stone, birch boards, stainless steel, sisal carpet
客服
消息
收藏
下载
最近






































