查看完整案例

收藏

下载
如恩受邀为Bao家族(Bao Family)设计其位于法国马赛标志性旧港的概念餐厅。餐厅坐落于一座融入坎比耶尔区城市肌理、兼具美学与历史感的石砌建筑中。Gros Bao这家中式小馆占据了建筑的前三层空间,位于圣路易广场(Cours Saint Louis)和雷科莱特街(rue des Récolettes)之间。圣路易广场是旧港的象征性公共广场,而雷科莱特街则是一条静谧的街道,垂直于坎比耶尔大街(Canebiere),通向正在复兴的欧巴涅街(rue d’Aubagne)。
Located in the backdrop of the iconic Old Port of Marseille, the project inherited a beautiful historical building that is embedded in the urban fabric of the Canebière district. Occupying the first 3 storeys of the stone-clad landmark, Gros Bao, a Chinese canteen concept restaurant articulates and connects Cours Saint Louis, one of the symbolic squares of the Old Port, to the rue des Récolettes, an intimate street perpendicular to the Canebiere and a gate to the gentrifying rue d’Aubagne.
▼店铺门头,Front door© Pedro Pegenaute
▼外摆区,Swing area© Pedro Pegenaute
▼透过橱窗看向后厨,Looking through the window into the kitchen © Pedro Pegenaute
▼入口处,Entrance© Pedro Pegenaute
在项目初期,如恩便被圣路易广场的开放性与雷科莱特街的静谧氛围之间的鲜明对比所吸引。为此,设计通过在建筑中开辟出一条新的垂直通道,贯穿三层空间,将建筑分为两部分,形成一条全新的“动脉”。这一设计不仅重新组织了餐厅内部的空间流动,也象征性地将这两种截然不同的城市氛围——公共广场的热闹与内街的宁静——有机地连接起来。
Neri&Hu was immediately struck by the dichotomy between the very public nature of the square and the more private and secluded atmosphere of the rue des Récolettes. In response, the design proposal materializes the connection between these dual spaces by carving out a new artery, creating a new lane cutting the building in two parts spanning its full 3 storey height.
▼回望入口,Looking back at the entrance© Pedro Pegenaute
▼明档厨房,Open kitchen © Pedro Pegenaute
▼中央楼梯空间,Central staircase space © Pedro Pegenaute
▼楼梯井,Stairwell © Pedro Pegenaute
▼从楼梯处看向两侧的墙壁,Looking at the walls on both sides from the stairs © Pedro Pegenaute
Gros Bao 隶属于 Bao Family,这是一个以现代视角诠释经典中式料理的餐饮品牌,致力于带领食客踏上一场充满乡愁的味觉之旅。如恩从场地与中国上海里弄相似的空间特征中汲取灵感,在设计中融入了具有城市肌理的巷弄概念。室内细节同样以现代手法演绎上海弄堂的传统风貌,模糊了公共与私密、烹饪与用餐的界限,同时捕捉了传统巷弄中独特的生活气息与街巷活力。这些巷弄不仅承载着当地文化的精髓,更为食客营造了一场沉浸式的叙事旅程,让本地人与游客都能在其中感受到情感共鸣。
Gros Bao is part of the Bao Family, a collection of modern Chinese restaurants that reinterpret classic recipes, inviting people on a nostalgic journey through the flavors of Chinese childhoods. Neri&Hu draws inspiration from the spatial typologies of the site that shows similar characteristics as the Chinese Shanghai lanes, designing the space with alleyways reminiscent of urban landscapes. The interiors feature details that take a modern interpretation of Shanghai’s longtang (alleyways) heritage too, creating a new connection that blurs public and private boundaries, cooking and dining scenes, and captures the spirit and vibrant street life that can be typically found in these traditional alleyways. These alleyways aim to capture the essence of local culture, creating a narrative journey for both locals and visitors to appreciate and connect with.
▼二层用餐空间,Second floor dining space © Pedro Pegenaute
▼从楼梯处看向用餐空间,View from the staircase towards the dining area © Pedro Pegenaute
▼酱料吧,Sauce bar © Pedro Pegenaute
▼卫生间,WC© Pedro Pegenaute
▼俯瞰楼梯井,Overlooking the stairwell © Pedro Pegenaute
▼材质细部,Material details© Pedro Pegenaute
材料的选择同样呼应了 Gros Bao 料理的质朴与原真性,从天然钢材、白色方砖、镀锌钢板、红色墙面到建筑原有的石墙,均展现出一种未经刻意雕琢的真实感。餐厅外立面则在经典石材的基础上融入镀锌钢板与金属框架,形成鲜明的现代对比。室内定制家具的设计灵感来源于上海街头小吃摊,采用简约的金属框架搭配富美耐板的桌椅,进一步强化空间的都市街巷氛围。
The materiality chosen also reflects the rawness and authenticity of Gros Bao’s cuisine offering, ranging from natural steel to white square tiles, galvanized steel, red linoleum and existing stone walls. The façade creates a contrasted modern insertion into the stone-clad classical façade with its galvanized steel panels and frames. Inside, the custom furniture takes inspiration from local Shanghai street food stalls, featuring simple metal structures with Formica tops for the chairs and tables.
▼首层平面图,ground floor plan© 如恩设计研究室
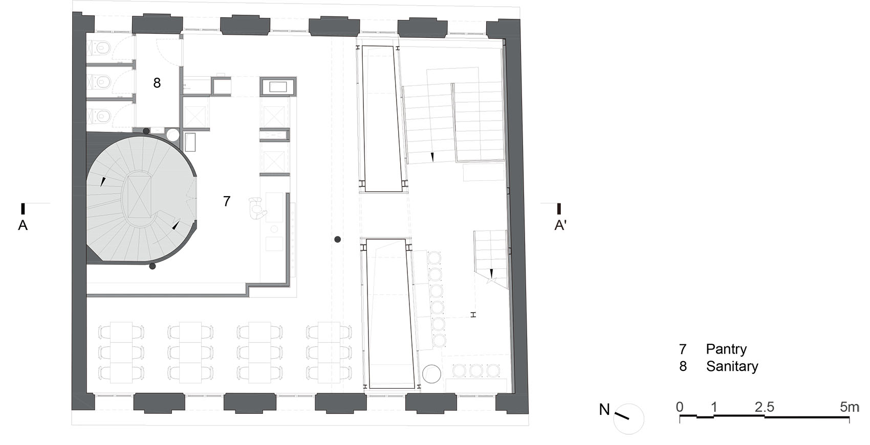
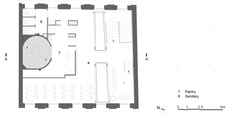
▼二层平面图,first floor plan© 如恩设计研究室
▼三层平面图,second floor plan© 如恩设计研究室
地点:法国马赛圣路易广场3号
完成时间:2024年4月
业主:BAO FAMILY
项目内容:外立面改造,室内设计,产品设计
项目功能:餐厅
面积:387平方米
主持建筑师:郭锡恩,胡如珊
主持协理总监:Laurent Tek
资深协理:李秋橙
设计团队:张佳馨,金鑫,周奔阳,张旋,张品文,Nicolas Fardet,生茵,吴震海
外立面:如恩设计研究室
室内设计:如恩设计研究室
软装设计:如恩设计研究室
顾问 设计管理:Immoworks France
施工方 施工总包:MLB CONCEPT France
类别:适应性改造
Site Address: 3 Cour Saint-Louis, 13001 Marseille, France
Date of Completion: April 2024
Client: BAO FAMILY
Project Type: architecture, interior, product design
Program: Restaurant
Gross area: 387 m²
Partners-in-charge: Lyndon Neri, Rossana Hu
Associate Director-in-charge: Laurent Tek
Senior Associate: Qiucheng Li
Design team: Jiaxin Zhang, Xin Jin, Benyang Zhou, Xuan Zhang, Pinwen Zhang, Nicolas Fardet, Yin Sheng, Greg Wu
Façade renovation: Neri&Hu Design and Research Office
Interior design: Neri&Hu Design and Research Office
FF&E design: Neri&Hu Design and Research Office
Consultants: Design Management/LDI: Immoworks France
Contractors: Interior: MLB CONCEPT France
Special Features: adaptive reuse
Architectural Materials, Products, Graphics and FF&E Suppliers, Manufacturers, etc.
Architecture – Materials: existing stone clad façade, galvanized steel panel, clear glass, red painted wood
Interiors – Materials: concrete floor, raw steel structure, natural black steel stairs, white 10×10 ceramic tiles, stainless steel, natural black steel metal grid, red vinyl flooring, existing stone and brick walls, existing wood beams.
客服
消息
收藏
下载
最近

































