查看完整案例

收藏

下载

翻译
Architects:Jan Zaloudek Architekt
Area:180m²
Year:2025
Photographs:BoysPlayNice
Manufacturers:Bega,Ferm Living,Cappelen Dimyr,Frama,HAY,Marieli,Marset,NORR11,Schüco,Talka Decor,VitrA
Landscape Architecture:Atelier Rouge, Jitka Tomsová / Atelier Rouge
Category:Houses
Author:Jan Žaloudek
Construction Projects:{:text=>"Projekty S+S, Jana Tůmová / Projekty S+S", :url=>""}
Client:Jan Žaloudek, Jolanta Trojak
Country:Czechia
Text description provided by the architects. Modern House in a Baroque Garden - The House Oskar, designed by architect Jan Žaloudek, was built in a generous garden that originally belonged to the neighbouring chateau in the South Bohemian village of Kamenná Lhota. The site's remarkable genius loci is enriched by the remnants of a Baroque barn, centuries-old mature trees, and a stone wall that frames the expansive property, opening into the picturesque rural landscape.
Contemplation, Inspiration, Recreation - The house, embodying the philosophy of contemplation, inspiration, and recreation, was built by the architect for himself and his family. Together with his wife, art historian and writer Jolanta Trojak, they long dreamed of a place where one could connect with the landscape or retreat inward to restore physical and mental strength. They envisioned a space that not only invites rest but also serves as a wellspring of creativity and inspiration—qualities integral to their everyday lives. With meticulous attention to detail, they created a space where even the simplest daily routines transform into small, profound experiences. The House Oskar is a unique microcosm—a harmonious sanctuary for sleeping, reading, dining, and creating, all in symbiosis with the universe outside its windows.
Perfection, Imperfection, Timelessness - The house's design was shaped by the local topography and the constraints of building on a culturally protected site. The architect carefully integrated the building into the landscape and historical context, ensuring it did not overshadow the château and exuded a timeless character. Inspired by the idea of a chapel, lacking in the village, the resulting architecture is a harmonious blend of contrasts: new and old, interior and exterior, perfection and imperfection. The design respects the traditional elongated form of houses with gabled roofs, drawing on the vocabulary of local agricultural buildings. Perforated masonry, with openings for light and air found in nearby historical structures, serves as the building's defining feature. This detail acts as a sunshade for the southern gable wall and inspires the pattern of wooden shading panels on the other façades. The compact form of the house is permeated by niches on each façade, references to Baroque morphology. These niches form entry vestibules and loggias, allowing flexible shading. The house can either fully open to the landscape, connecting its residents to the world, or close off to highlight its meditative character. The building materials honour the local character of the surrounding structures and landscape. The load-bearing structure consists of insulated ceramic masonry combined with reinforced concrete elements. The white stucco façade echoes the tone and texture of neighboring buildings. The roof is clad with fired ceramic tiles, and the shading panels are made from whitewashed Czech fir and spruce.
Natural Cycles and Light - Life in the house is intimately connected to natural cycles and the movement of daylight. From the bedroom and the main living space, which opens onto a panoramic view of the orchard, residents can observe the sunrise and moonrise. The southern façade, with its perforated gable wall and impressive circular window, connects the social space with the courtyard and the barn ruins. Generous openings seamlessly merge the interior with the exterior, extending into wooden terraces, lush greenery, and the cool embrace of historic stone walls. The western façade, with its entry niche, shields the house from village views. A vaulted niche in the northern gable brings light into the bedroom, bathroom, and utility spaces, echoing the curved forms of the nearby Baroque château. The penetration of sunlight into the interior can be regulated throughout the day using white shading panels. A sunlit room can quickly transform into a magical, enclosed space where light and shadow play mesmerisingly. At night, the light reverses direction, and the house, illuminated by its glowing niches, shines into the landscape. The interior is illuminated by minimalist white fixtures, complemented by Japanese washi paper lanterns and the flickering glow of a wood-burning stove.
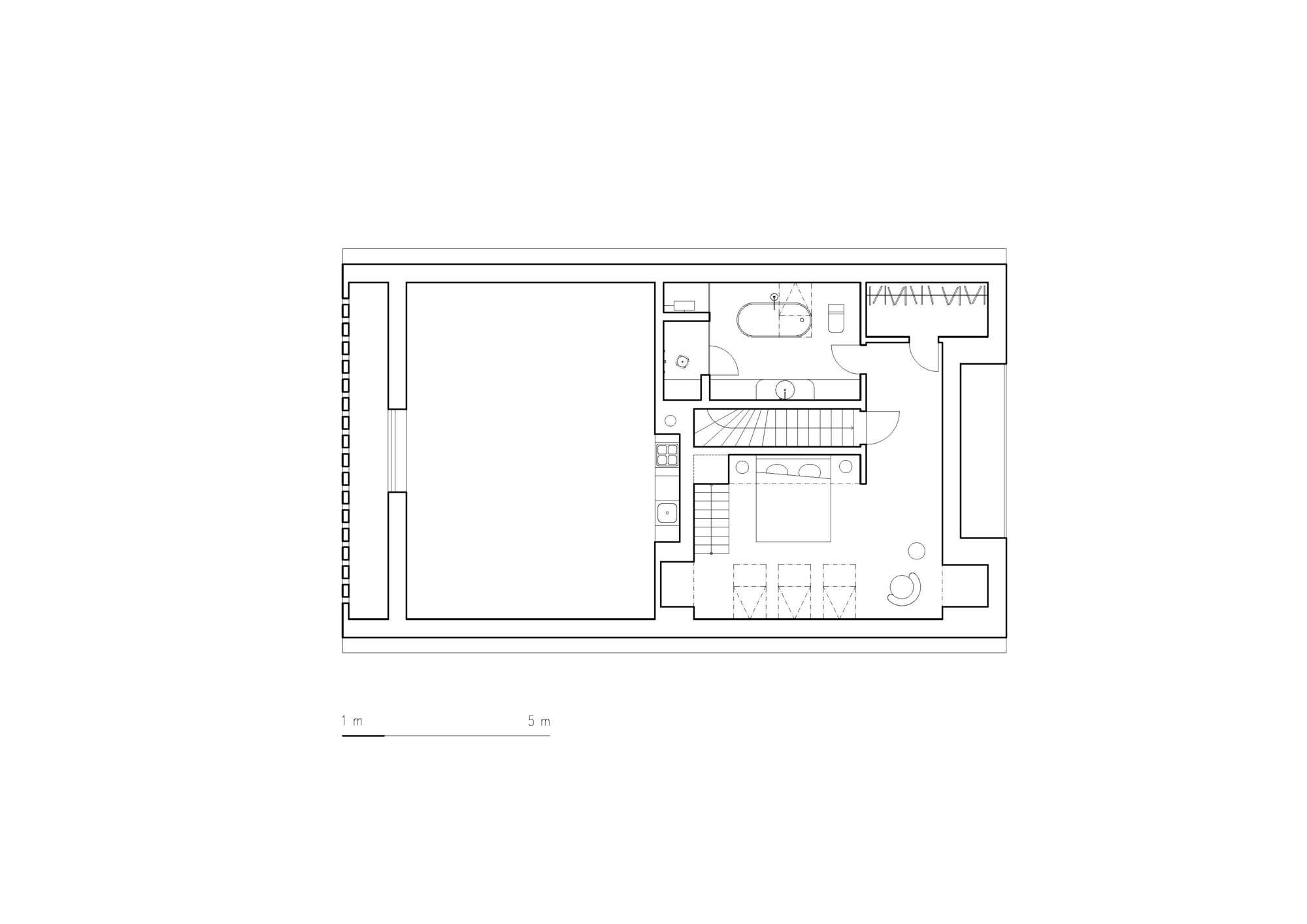
Sacred Inspiration - Behind the house's traditional morphology lies an original interior. In contrast to the white exterior, the inside is warm and rounded. The main space surprise with a generously vaulted ceiling that rises to a height of seven meters, emphasising its sacred inspiration. White stucco walls and large aluminium-framed windows further highlight the ethereal character of the space. Another nod to ecclesiastical architecture is the two-meter-wide circular window piercing the southern gable of the house. The focal point of the interior is a curved wooden kitchen with an island made from Indian Shivakashi granite, reminiscent of a church altar. This is the centrepiece of all daily rituals. In the southern part of the space is a dining area with an oak table and chairs, overlooked by a 19th-century wooden carving of the Madonna. Across from this is a relaxation area featuring a long sofa offering views both of the landscape and the courtyard with its barn ruins. The sofa is framed by a tapestry made from undyed sheep's wool. In addition to the main living area, the ground floor includes a bathroom, toilet, utility room, and one of the bedrooms. Throughout the home, custom-made wooden and stone furniture designed by the architect creates a cohesive aesthetic. This includes solid wood beds and wardrobes, a black granite bench in the hallway, and matching bedside tables. The upper floor is conceived as a separate apartment with a bedroom, bathroom, and studio space. Unlike the ground floor, which maintains an open connection to the outside world, the attic is a closed, cocoon-like space ideal for reflection, reading, and creation. Small roof windows illuminate the white, compact cavern permeated by niches and arches.
Art in Every Detail - Art plays a significant role in the family's life, whose collection spans from Czech Modernism to contemporary works. This love of art is omnipresent in their home. The bedroom features a 19th-century panneau japonais, alongside a large-format contemporary painting by Antonie Stanová and sculptural pieces by Michal Janiga. Stone sculptures by Vanda Hvízdalová are displayed on travertine pedestals in the attic. The family's curatorial approach is reflected in every detail of the house. Visitors are greeted in the entry hall by a wooden ceremonial mask from Gabon, while the main living area features an African stool carved from a single piece of wood and original ceramics by Martin Hanuš. The bedrooms and attic are illuminated by sculptural Akari lamps designed by Isamu Noguchi. A large collection of art books is an integral part of the home's ambiance.
A Living Gesamtkunstwerk - The House Oskar, named after cosmopolitan composer Oskar Nedbal, who composed his operetta Polish Blood at the neighboring château, is a space the owners want to share with others. This unique Gesamtkunstwerk is open to the public, whether through traditional rentals or as a venue for artist residencies, pop-up events, and workshops. The owners look forward to fostering a vibrant community of creative and inspiring individuals around the house.
Project gallery
客服
消息
收藏
下载
最近














































