查看完整案例

收藏

下载

翻译
Architects:SPACE CHA
Area:571m²
Year:2023
Photographs:Kiwoong Hong
Category:Coffee Shop,Mixed Use Architecture
Country:South Korea
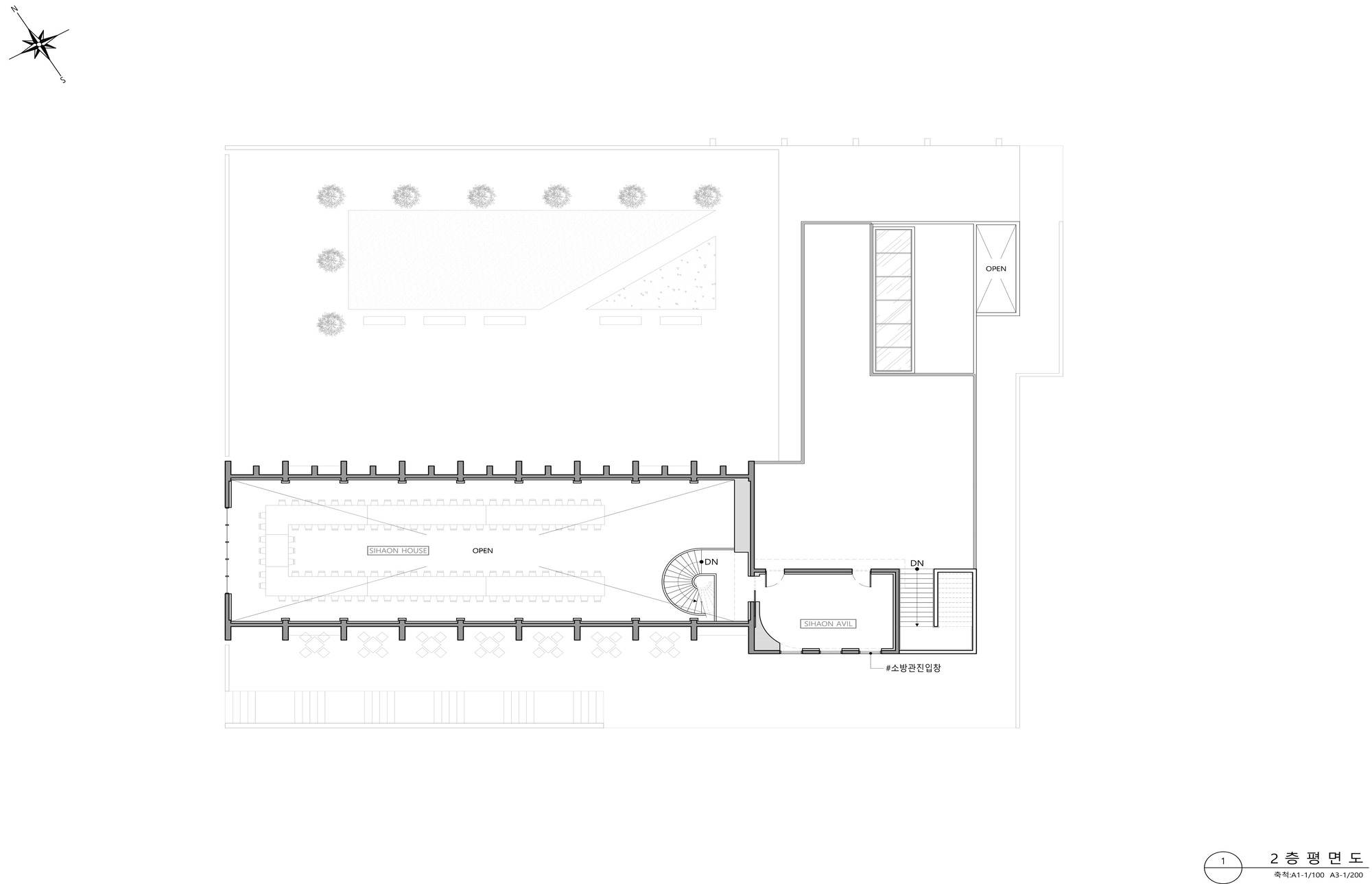
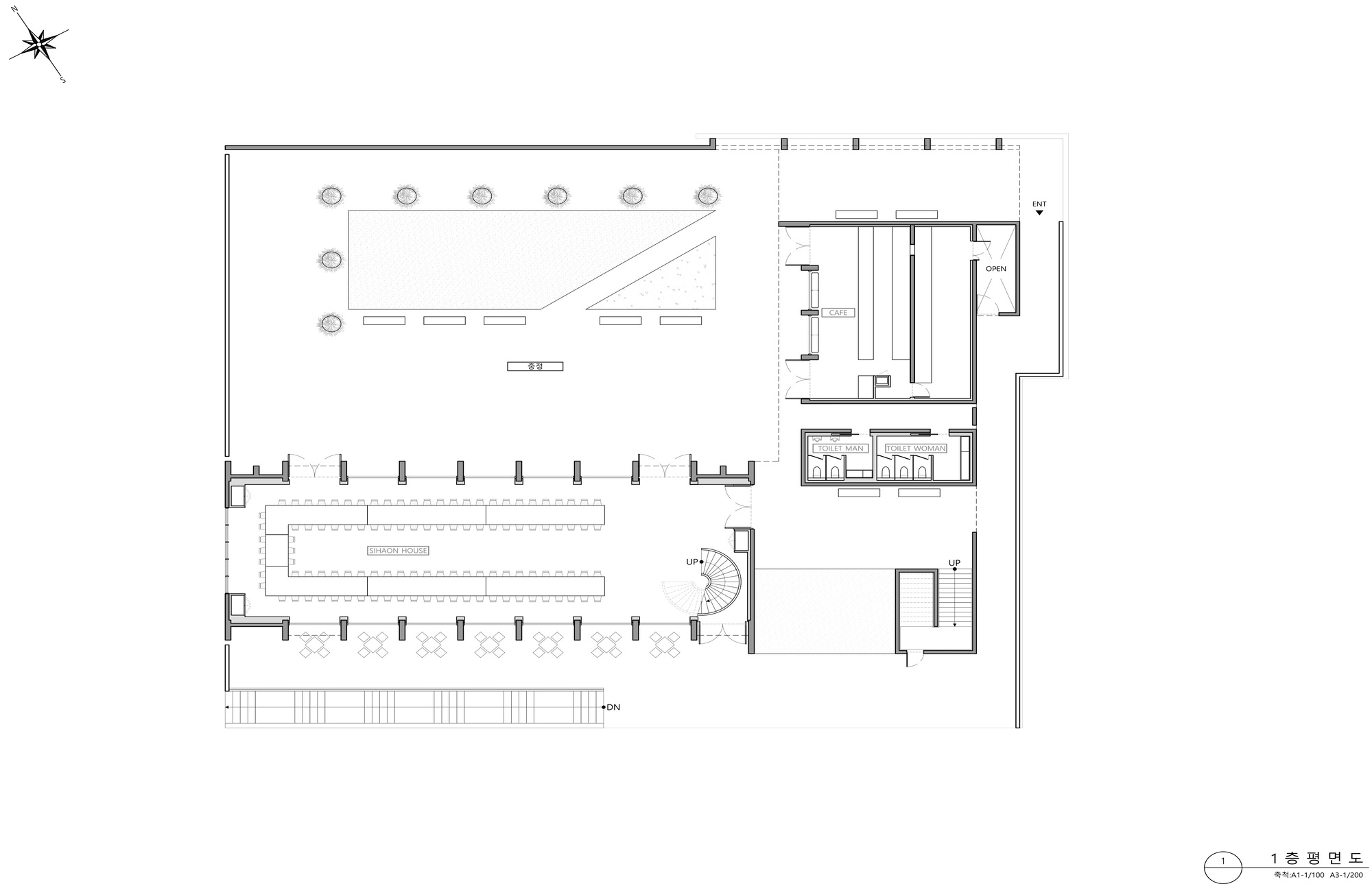
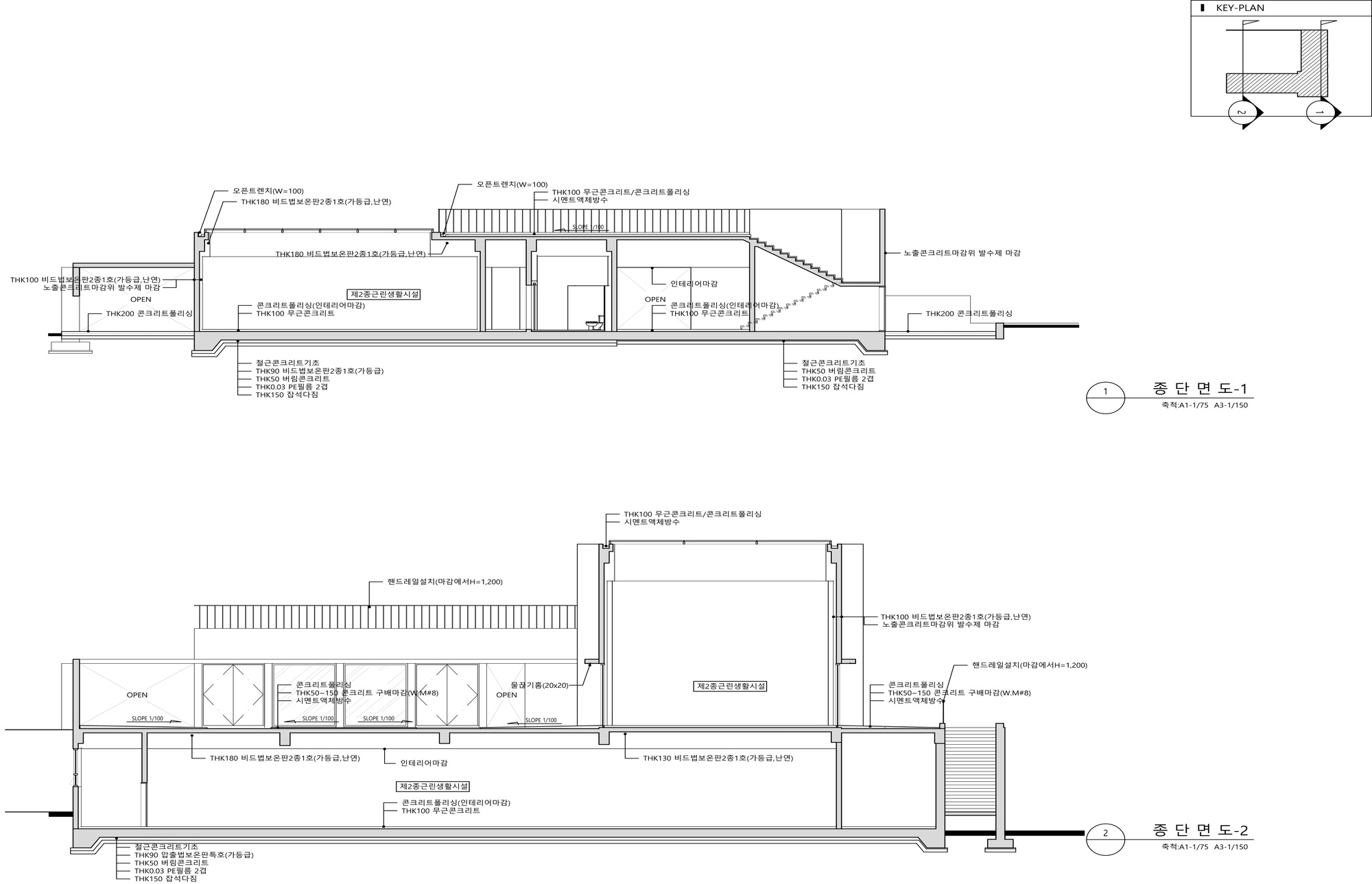
Text description provided by the architects. Sihaon, located in Cheonjeon-ri, Sangbuk-myeon, Ulju-gun, Ulsan, was planned as a complex cultural space where House Wedding and Cafe businesses could operate together in April 2021. It was completed over approximately three years by May 2024. The building consists of Sihaon House and Sihaon Cafe on the first floor for wedding ceremonies and cafe operations, Sihaon Avil on the second floor serving as a bride waiting room and a venue for small family events, and Sihaon Garden on the underground first floor with a spacious lawn for outdoor weddings.
The most distinctive feature visible in Sihaon is the color of its exterior, which closely resembles the owner. Having run a wedding business for many years, the owner frequently visited Barcelona due to the nature of the business. They desired a building that captured the romance and passion of the city, reflected in its red-colored architecture. Through multiple samplings, three different shades of red were selected, each varying in temperature, saturation, and brightness. Considering the weather and sunlight in Ulsan, as well as the building's aging process, the most ideal color was determined and used. Additionally, there was a desire for Sihaon to serve as an extraordinary backdrop where significant life events, such as weddings, could be recorded.
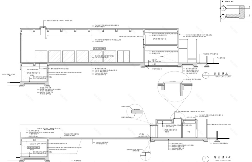
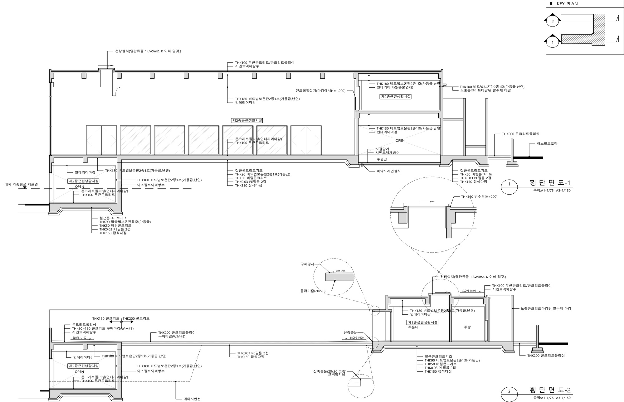
Sihaon enriches the seemingly simple exterior through various design elements. If the first distinctive feature is the exterior color, the second is the varying heights of the "ribs" attached to the building's outer walls. When we first visited the site three years ago, we considered the intense, direct sunlight and aimed to reflect the site's characteristics in the most vibrant way possible. Additionally, if life is akin to climbing stairs, Sihaon aims to be a landing that provides a brief respite in the building owner's life and for those who visit this place. This reflects Sihaon's brand value of creating a space like a stair landing, offering a moment of rest. It also speaks to Sihaon's definition of marriage, hoping that find someone to climb the remaining stairs with.
Where there are meetings, there are always farewells. Thus, Sihaon has left its own record of parting in Space Cha. During the long construction period, it became necessary to realistically reduce the area due to budget constraints, which led to the initial plan for the cafe building being scrapped. In memory of the spot where the building was supposed to be, a pond was created to add a sense of rhythm. This sense of vitality was also planned for the order building, where skylights were installed above the employees' work area, making the baristas' rhythmic and lively movements look like a celebratory performance.
The third is a variation of the sequence. Taking into account the heights of surrounding trees, Space Cha planned the varying heights of the walls of the enclosure, with slits where they meet. While in the Sihaon, one can enjoy a panoramic view of the mountains, and intentional sightlines beyond create diverse scenes. Inside, we wanted to inject vitality through multiple sequences to prevent the time spent from becoming monotonous. As people enter the Sihaon House, they first encounter a tall window framing the Yeongnam Alps like a painting, and upon sitting down, they can enjoy views of the pond and landscaping through windows of different heights. As a result, ample daylight enters, minimizing the need for artificial lighting, creating a physically comfortable state without directly illuminating the space.
Project gallery
客服
消息
收藏
下载
最近
























