查看完整案例

收藏

下载

翻译
Architects:Pranala Associates
Area:837m²
Year:2023
Photographs:Ernest Theofilus
Manufacturers:Neolith,Daikin,MiLL Alumunium
Lead Architects:Erick Laurentius
Lighting Consultant:Lentera Art Lighting
Interior Design:Lianggono
Contractor:Bouw Atelier
Landscape:Larch Studio
Category:Houses
Team:Erick Laurentius, Chrystal Nathalie, Alfonsus Arianto
Stone Art:Raja Stone
Country:Indonesia
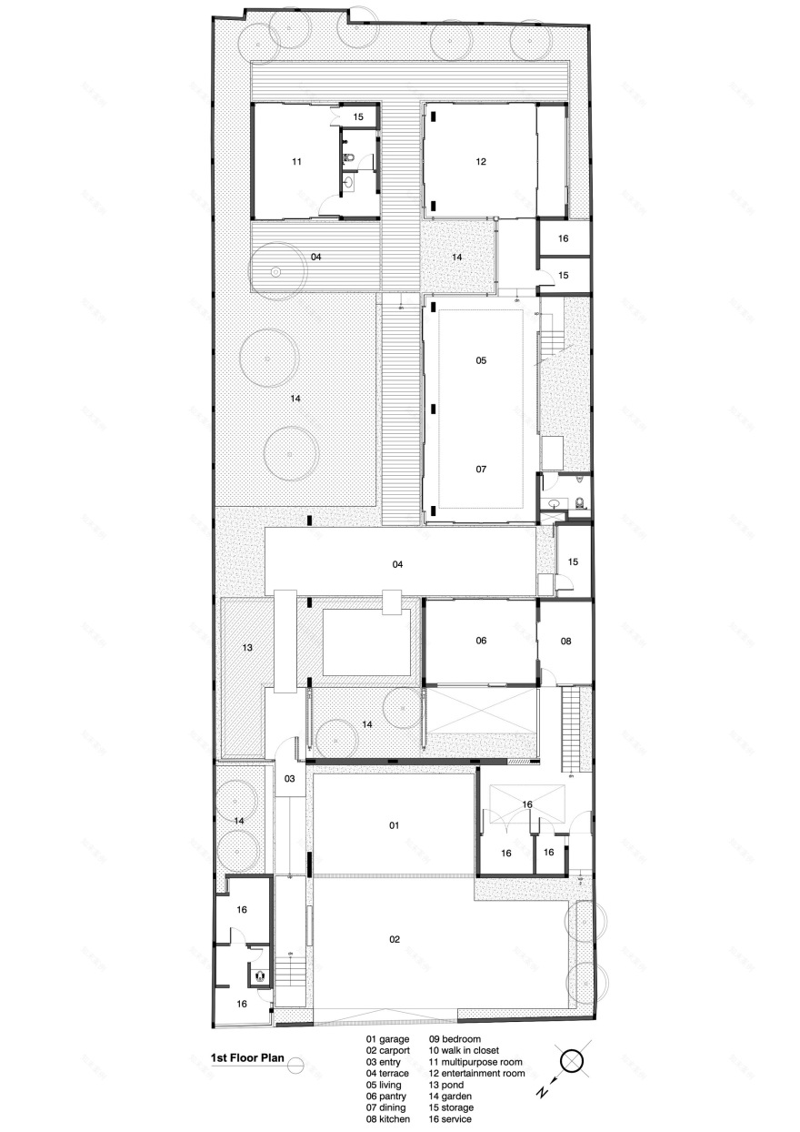
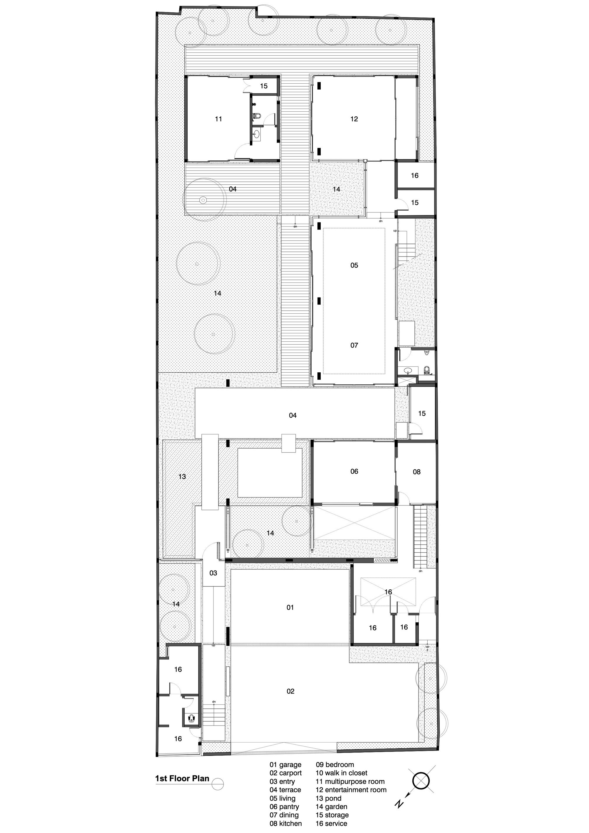
Text description provided by the architects. Mitsugo House is located in central Jakarta. The high density and bustling environment present a challenge for privacy and green space, as most surrounding properties are full-lot houses with little outdoor area. The neighborhood is packed with close-knit houses and narrow streets. To address this, the second floor was set back from the street. The house features a combination of wooden screens and natural elements like trees to enhance privacy while maintaining an open, airy feel inside. The design creates a clear separation from the public street and establishes a sense of privacy within the house.
The house emphasizes the connection with the outdoors. On the right side of the entrance, there is a void with two tall trees planted, and their tops can be seen directly from the master bedroom's window. Walking further, a koi pond brings tranquillity to the residents and guests alike, while natural stones formation stands out among the garden greeneries.
The open living room, which connects directly to the central courtyard, also fosters a strong relationship with nature. The courtyard serves as the heart of the home, providing a space for the family to gather and enjoy the outdoors. Large glass sliding doors are used throughout the house, offering natural light and flexibility in controlling air circulation. This design not only enhances the experience of living in the house but also helps regulate sunlight, temperature, and airflow, making the home comfortable year-round.
Further back on the first floor, a semi-private lounge is connected to a small stone garden where the owners can serve their guests. The garden is also accessible from the sunroom, which also functions as a multi-purpose space.
The materials chosen for Mitsugo House emphasize a connection to nature. The use of natural elements like ironwood and wood-textured concrete helps soften the building's exterior while also ensuring durability. The ironwood will naturally age to a grey tone, blending with the concrete. These materials are integrated, both inside and outside the house, creating a seamless transition between the living spaces and the surrounding environment.
Project gallery
客服
消息
收藏
下载
最近













































