查看完整案例

收藏

下载
本项目位于乌伊布达丘陵南部,马达尔山(Madárhegy)地带,介于社会主义时期建造的预制公寓楼与当代地产开发的新型住宅区之间。过去十年间,这一地区主要建起了小型花园式公寓楼,吸引了大量带孩子的家庭定居,因此对儿童设施的需求日益增长。意识到这一点后,当地政府规划了包括托儿所、幼儿园、儿童诊所及公共游乐场在内的综合开发项目。建筑师与景观设计师希望设计能够唤起场地原有林地的氛围,于是,“儿童林地”应运而生。
Located in the southern part of Újbuda hills, between the prefabricated apartment blocks from the socialist era and a modern housing area of real estate developers, Madárhegy has been populated mainly with small garden apartment buildings in the last ten years. Many of the new residents are families with children, so there was a significant demand for children’s facilities. Recognising this, the municipality has planned a development including a nursery, kindergarten, a paediatric clinic and a public playground. The architects and landscape architects wanted the design to evoke the original grove feel of the site. Thus the “children’s grove” was born.
▼项目外观,exterior of the project © Balázs Danyi
▼露台,terrace area © Balázs Danyi
建筑群的体量将场地划分为不同功能的庭院,分别对应托儿所庭院、幼儿园庭院、游乐场和休闲花园等区域。为了帮助儿童更好地辨识方向,建筑的上层在造型和釉面陶瓷砖的色彩上有所区分,使不同功能单元在儿童眼中也能清晰辨别。
▼草图,sketches © Archikon Architects
The site is divided into functional courtyards by the mass of buildings, separating the different areas of use: the nursery and kindergarten courtyards, the playground or the recreational garden. To help the children find their way around, the upper storeys of the buildings are different in shape and in the colour of their glazed ceramic tiles. This creates a distinction between the functional units that is clearly visible to children.
▼露台面向充满自然生机的庭院,the terrace connecting the courtyard full of natural vitality © Balázs Danyi
▼幼儿园教室,nursery classroom © Balázs Danyi
建筑采用了大量玻璃表面,以促进室内外的通透性和互动性。而室内空间则营造出一种亲切而隐秘的氛围,仿佛藏身于自然之中。室内与建筑结构中大量运用了自然材料,如木材、陶瓷砖、木制门窗和家具、具备良好隔热性能的厚陶瓷墙体,以及不时出现的木质屋顶。这些设计不仅赋予空间自然质感,同时也减少了生态足迹,融入了创新做法,比如设置蜂巢元素,让建筑本身成为环境教育的一部分。
The buildings have been given large glass surfaces to promote transparency and active interaction with the outside environment. Yet inside, there is a cozy atmosphere, as if you are just hiding somewhere in nature. This is also reinforced by the predominance of natural materials used in the interior and in the structure: wood, ceramic tiles, wooden windows and doors, wooden furniture, thick ceramic walls with good thermal insulation and wooden roofs that appear here and there. A small ecological footprint, innovative solutions, a beehive – a building that can be educational in environmental awareness.
▼通高大厅,double-height looby © Balázs Danyi
▼二层空间,upper floor space © Balázs Danyi
▼亲切而隐秘的室内氛围,warm and secluded indoor atmosphere © Balázs Danyi
▼走廊,hallway © Balázs Danyi
设计方案还包括一个社区空间,由一座两层高的木结构体量标志性呈现,同时作为幼儿园的入口大厅。除了常规的成长发展空间外,托儿所还配备了教学厨房、工坊和盐屋,进一步丰富了场所功能,提升了儿童和照护者们的日常体验。
The design scheme also included the creation of a community space, marked by a two-storey wooden structure that serves as a kindergarten lobby as well. In addition to the usual developmental rooms, the nursery function will also include a teaching kitchen, a workshop and a salt room. These spaces will further enhance the overall comfort and make the caretakers’ and children’s daily lives more vibrant.
▼外观,exterior view © Balázs Danyi
▼入口,entrance © Balázs Danyi
▼模型,model © Archikon Architects
▼场地区位,location © Archikon Architects
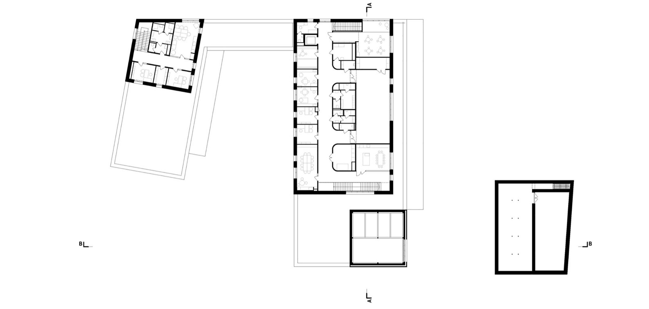
▼一层平面图,ground floor plan © Archikon Architects
▼二层平面图,upper floor plan © Archikon Architects
▼剖面图,section © Archikon Architects
Project Name: Children’s Grove on the hill
Location: 1112 Budapest, Madárhegyi Street 21.
Year of design: 2022-2023
Year of completion: 2024
Gross built area: 2600 m2
Office name: Archikon Architects
Social media:
office@archikon.hu
Lead Architects: Csaba Nagy, Károly Pólus,
Architects: Eszter Major, Réka Hargitai, Miklós Batta, Júlia Harmath
Contributors: Bence Várhidi, Borbála Véghelyi
Structural Engineer: Éki Terv Kft.
Mechanical Engineer: Miskolczy Energiaterv Kft.
Electrical Engineer: Miskolczy Energiaterv Kft.
Fire Protection Designer: F.S.Z. Mérnökiroda Kft.
Landscape Architect: Objekt Tájépítész Iroda Kft.
Kitchen Technologist: Quartisse Kft.
Client: Council of Budapest, District XI.
Contractor: SZÍN-KER Építő Kft.
Photographer: Balázs Danyi
Photographer’s instagram:
客服
消息
收藏
下载
最近



















