查看完整案例

收藏

下载
连续四年荣登必吃榜的粤菜馆,融合了经典与创新的烹饪手法,尤其以啫啫煲和烧腊为特色。将猛火快攻的烹饪哲学转化为空间张力,把养生时令的食材精神凝练为材质语言,构建“烟火不染尘,奢雅不疏离”的沉浸式体验场域。设计以“隐奢、透景、呼吸”为核心策略,让健康理念与精致美学在蒸汽升腾间达成微妙平衡。
以器物为支点,撬动人们对健康粤味的重新认知——镬气不是烟火油腻的代名词,而是匠人对火候极致的把控,是食材本味的忠实守护。超大啫啫煲不是简单的景观复制,而是一锅烟火气的盐焗鸡食材展示。
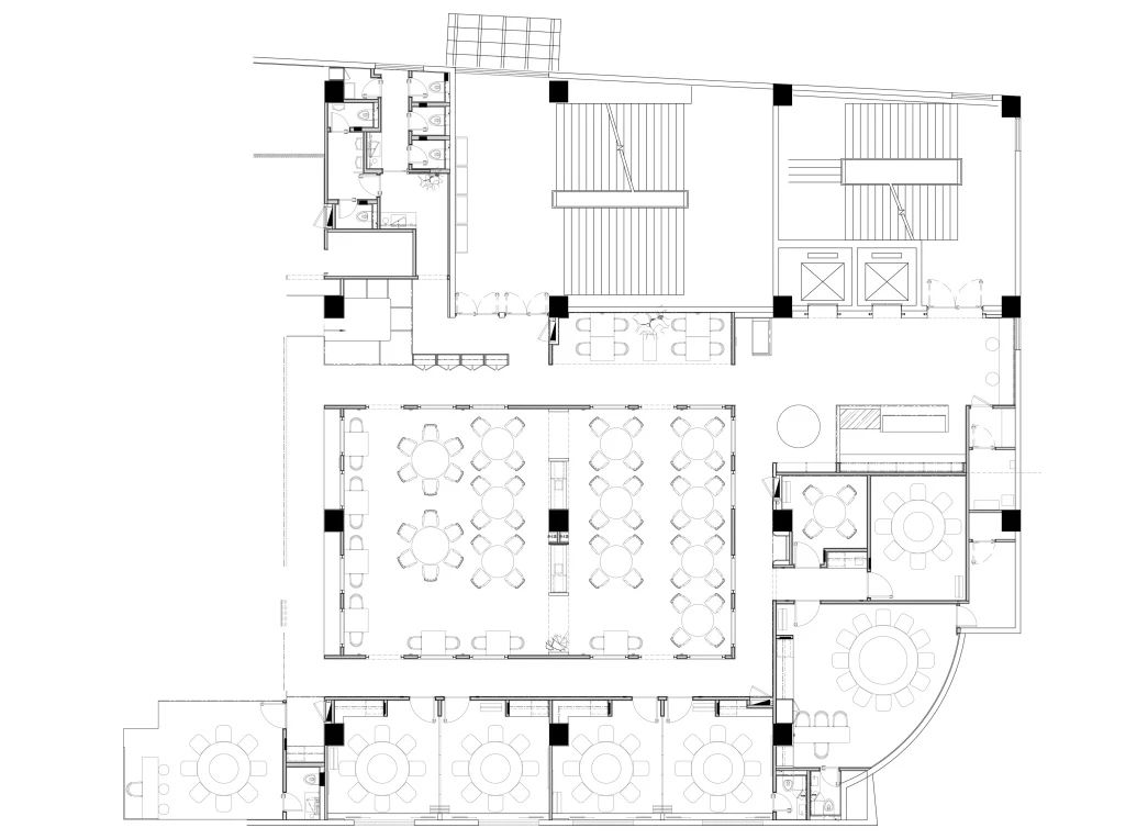
项目平面图
以港式传统为设计灵感,汲取岁月沉淀中的文化精髓,融合现代美学的灵动与简约,巧妙的空间布局与细腻的设计手法交织出一幅时光流转的美丽画卷。每一寸空间都被精心雕琢,仿佛与历史对话,又不失现代的优雅与时尚感。在这里,古老的港式韵味与当代审美无声地碰撞,传统的元素被赋予新的生命,细节处的设计更像是一首轻柔的诗,低语着温暖与雅致。
粤菜是镬气中的江湖,岭南是院巷里的诗意。醒狮是跃动的文化图腾,啫啫煲是声音的艺术。每一个角落都讲述着属于自己的故事。以古朴的木质纹理与现代金属线条的对话,传递着时代的变迁与风格的融合;温润的灯光如同柔和的梦境,轻轻洒落在精致的餐桌上,勾勒出用餐者的愉悦与从容。
整体空间采用中心围合的布局,在保留港式餐厅特有的亲和力和烟火气的同时,通过现代设计语言赋予其新的生命力。它超越了单纯的餐饮功能,成为了一个充满生活情趣、艺术氛围与文化深度的场域,在这里,每一次用餐都像是一场穿越古今、时尚与文化碰撞的美妙体验。
Immersive Experience
围合式结构,沉浸式体验
就餐区采用围合式布局,金属圆拱作为粤菜馆的核心空间语言,以“传统形制现代表达”为内核,将岭南民居的月洞门意象与现代工业美学融合,构建虚实交织的叙事场景。拱廊动线以“环园漫游”为逻辑,串联散座区、明厨与包间过渡带。
食客透过圆拱可见烹饪实景,烟火气与金属冷光交织,形成“烹饪即表演”的沉浸剧场。构建从喧嚣市井到静谧雅舍的渐进式体验,让食客在游走中感受粤菜的温度与文化的厚度。
半开放式的空间设计在视觉上既保持了一定的私密感,又保证了通透性,使宾客在享用佳肴的同时,也能感受到四周环境的变化,增强了用餐的互动性与趣味性,让人与人之间的交流更加自然。
Classic-Modern
港式骑楼与连廊,复古与现代的碰撞
本项目的设计语言中,圆拱形元素贯穿始终,不仅象征着融合与圆满,也在视觉上带来复古与现代交织的美感。与港式建筑中常见的骑楼、连廊等元素相呼应,为整个空间增添了层次和韵律。
走道尽以有微型岭南文化的装饰画,通过解构广府建筑形制、自然肌理与生活美学,运用当代材质工艺重构传统绘画语言,让客人在移步换景的终点,邂逅一场驻足三秒的文化悸动。
色彩方面,空间以浅色调为主,如米白、淡奶茶色等,搭配柔和的暖色灯光,让整个空间既清新又温馨,营造出一种轻松、惬意的就餐氛围。这种设计既保留了港式餐厅的传统气息,又不会显得过于厚重,使整体环境更符合现代人的审美需求。
Traditional-Modern
传统符号与现代时尚
墙面巧妙融入狮子头元素,营造“狮跃门前”的迎客仪式感,以“狮舞烟火”为叙事主线,打造“传统不守旧、新潮不忘本”的沉浸式用餐体验,让食客在喧嚣中感受岭南文化的温度与生命力。
地面采用黑白几何花纹地砖,搭配拱形造型,增强了空间的节奏感与层次感。这些元素的组合,不仅增添了视觉上的趣味性,也进一步强化了港式传统与现代美学的融合理念。尤其是拱形的运用,巧妙地扩大了空间感,使整个餐厅在视觉上更显宽敞、明亮。
在这里,每一处设计都在讲述港式文化的故事,每一寸空间都蕴藏着对美食与美学的深刻理解。在这座融合了传统与现代的餐厅里,感受跨越时空的美食之旅,沉浸在温馨而富有韵律的用餐体验之中。
粤拾佳粤菜馆不止于餐饮空间,更是一场广府文化的当代转译。设计以“院巷”为纸、“烟火”为墨,让醒狮精神于墙上起舞,让镬气声响在拱门间回响,最终在传统与现代的共生中,寻得粤菜文化。
项目信息
项目名称:粤食佳(北京十里河店)
项目地点:北京,十里河
项目面积:890平方米
设计时间:2024年03月
完工时间:2024年11月
空间设计:无序建筑(北京)有限公司
设计团队:张卫娟、韦雪萍、于爽、李江涛
灯光设计:元入科技
艺术漆:关少
施工方:四川天中佳建筑工程有限公司
项目摄影:黄秉文
张卫娟 无序创始人及设计总监之一
2016年 获得中国建筑装饰协会,有成就资深室内建筑师
筑龙网2018年特邀室内陈设艺术讲师
2016年 中国有成就资深室内建筑师
2015 - 2016年度 国际环艺创新设计作品大赛华鼎奖
2019年 《元古北京中粮祥云小镇》品大赛Top100
2019年 《您好南锣》金堂奖年度杰出奖
2020年 第八届台湾TINTA金邸奖
2020年 第十五届“金外滩”奖
有十多年的设计工作经验,多年高端地产、酒店设计项目的管理经验,拥有甲乙方双视角工作经历,具有优秀的设计能力和设计管理能力,可以使设计方案与实际完成匹配度达到95%以上。
项目案例
新京熹(北京、郑州)、新拾玖(北辰店)、寂川(成都店)、荣豫(北京、郑州)、方砖厂69号、京州涮火锅、叶多多烤鸭、粤食佳(十里河店)、沿途四季、沿途花开、海小姐(南锣鼓巷)、鼎鼎香(SKP北京) 、 鼎鼎香(SKP西安) 、骏豪广场办公会所
无序建筑(北京)有限公司致力于专业的高品质餐饮、酒店装饰设计领域。由多位优秀设计师组成梯形团队,秉承“追求完美”的探索精神,以“创新”“严谨”“优质”为设计理念和战略目标。拥有“协同”化设计管理标准,使设计方案与实际完成后匹配度达到95%以上。同时我们拥有一流的国际合作伙伴。善于以前瞻性的设计视角,高品质的设计理念与业主的商业需求达成和谐的统一,提升整体空间品质。以创造出新的艺术和商业价值
客服
消息
收藏
下载
最近


























