查看完整案例

收藏

下载
项目地点 | 上海市静安区
项目面积 | 建筑面积100平
项目户型| 2室2厅1卫
设计施工| 大炎演绎
房屋建筑面积100㎡,套内实际80㎡,旧房改造,作为两位刚退休长辈的养老房。
90年代的老房子,初次量房时家里很干净、整洁有序,可以看出日常业主很爱惜房屋。沟通中感受到业主很平易近人待人也温和,了解到上一次装修是20年前,这次通过朋友介绍找到我们,想重新装修以便更好的享受养老生活。
主题诉求:舒适宜居。常住人口也由一家三口变为夫妻俩(女儿出嫁),周末孙女会过来居住,所以在适老的同时也要加入一些童趣。由于异地施工,为了更好的落地,本案做的是全案设计施工落地......
美好结局:我们永远相信装修是一场双向奔赴的旅程。
案例视频|Casevedio
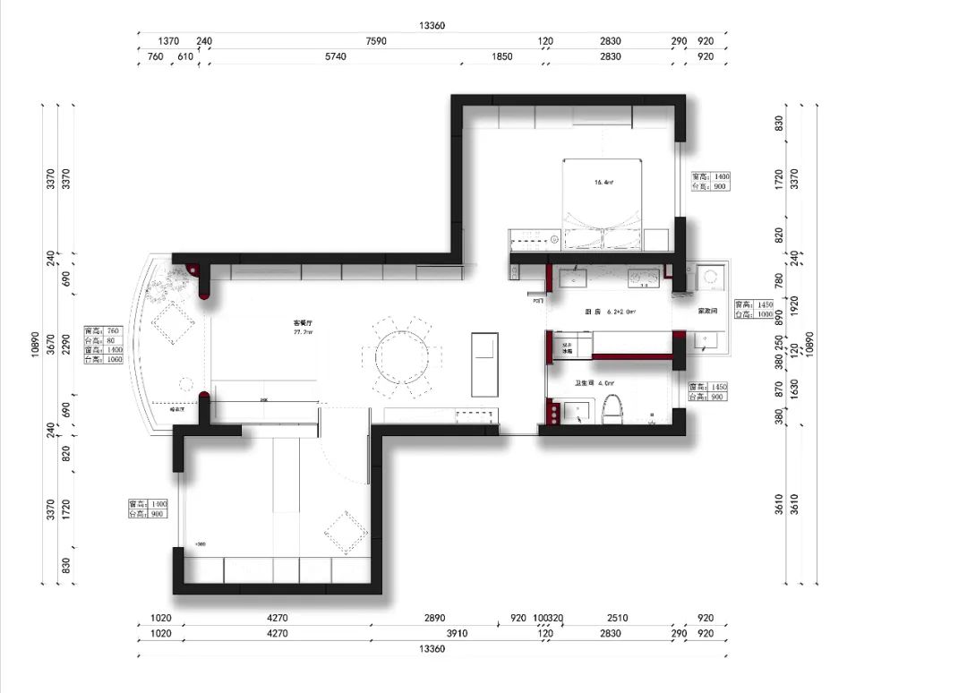
平面方案|Flat scheme
原始户型属于中规中矩的两室两厅一卫一厨的户型,90年代的老房子采光也不错。不过由于居住需求的改变+20年前的装修,需要进行旧房改造。
设计———解决问题的过程;
1、厨卫墙体改动:将墙体向卫生间压缩20(cm)扩大厨房空间。内嵌冰箱背部用玻璃代替墙体,释放空间。
2、打通空间:为了满足每周末老人家带孙女,将客厅与次卧间的墙体打通,用窗户代替,增加空间趣味性。
3、整体风格以复古简约为基调,木色与黑白色之间碰撞出不一样的质感。
实景案例|Real Case
鞋柜:考虑到玄关的实用性和美观性,独立设置鞋柜会有一些突兀,因此设置了“岛台鞋柜”。岛台下方靠近大门的区域为鞋柜,结合房屋外的半高鞋柜,刚还可以满足两位业主的储物需求。
次净衣区:一进门左手边(图片大门右侧)利用可调节背板以及五金配件,形成简单实用的挂衣区。业主平时比较爱惜家,没有柜门不会乱的同时还节省空间。
地面:利用大门的位置,将卫生间与厨房的瓷砖铺设出来,与客厅木地板分隔开。不同材质碰撞出不一样的氛围感,门口瓷砖更加方便打理。
客厅整体以木色、黑色、白色相互搭配,隐形贴脚线设计,整体营造出复古氛围感。
地板:选用温润的胡桃色,以双板人字横拼的方式铺贴,不同角度可以看到不同的光影变化,观感非常舒适。地板铺贴不仅和地砖无缝直拼,在阳台位置也采取了直插留缝处理,对施工工艺要求较高,整体落地满意度很不错。
吊顶:整屋配备中央空调地暖,客餐厅共用一个出回风口设置在岛台上方,所以客厅中间并未吊顶,边角做了简洁的造型,显层高的同时也丰富空间。
考虑到业主二人居住,在沙发的选择上避开很大很笨重的沙发,更多的考虑的是舒适度以及颜色是否契合,辅以小壁灯点缀,暖光+黑沙发,氛围感既现。
沙发旁做了一个凸出的门洞,主要是因为上方有梁,为了整体空间不那么突兀,中间利用视觉效果做了斜切处理,加了造型后空间没有那么压抑,凸出部分与餐边柜齐平。整体用夹心(ABA)结构的木板包裹,稳固的同时色彩上的碰撞更加好看。
沙发背景墙是本案最大的亮点也是客厅的视觉焦点。将客厅与次卧间的墙体拆除,用木板定制墙体,中间做了一个非常规的室内窗。考虑到每周末业主的孙女会来小住两日,打开窗户可以透景,增加空间的趣味性与连通性。万一有客人留宿时,关上窗户也可保护隐私性。
定制一整面的电视背景墙(总长5米8),开放展示格用来放小孙女的乐高玩具,搭配灯带,温馨实用。右侧四扇到顶柜体用来补充家中收纳,柜门均未用反弹器,利用造型板补充柜门扣手。
拆除原本笨重的阳台门,将阳台纳入客厅,扩大可活动空间。保留原始罗马柱,搭配大块弧形玻璃,窗外美景映入眼帘。美化阳台承重墙垛,圆弧化处理结合墙面追缝,以及圆弧墙角增加视觉柔和度。墙面长方形小白砖铺贴,顶面隐形晾衣架,两边配有筒灯,简洁实用。
餐厅选用1米2黑色圆桌,减少边边角角的磕碰,不论是日常二人生活,还是7~8人的聚餐都能轻松搞定。搭配不一样风格的椅子,拥有复古氛围感。
两个人的质感养老生活离不开茶和咖啡,餐边柜刚好可以满足要求,暖光灯带打在咖啡机上,有一种惬意与松弛。与玄关次净衣区一样,餐边柜后方也是活动层板,可以根据需求调节高度。
岛台自成一个小型洄游动线,尺寸:长1509、宽600、高900。一边为鞋柜,一边为储物柜,用来放一些纸巾、剪刀之类的小物品。内置水池,水池横向设计,升降水龙头可满足岛台旁任意角度均可使用。
厨房细节:
1、没有反弹器,所有柜门均为斜切免拉手,开合便捷;
2、内嵌洗碗机,定制柜门板进行包裹,一体性更强;
3、隐藏式感应灯带,弥补操作时背光问题;
4、大单槽搭配抽拉水桶头,没有卫生死角;
5、内嵌冰箱背部用玻璃代替墙体,释放空间。
6、厨房使用180度铰链装的折叠门,开合门既不挡冰箱,也没有遮挡水池,更不影响旁边的家政柜~
厨房尽头有一个北阳台,为了解放客厅空间,把洗烘套设计在此,定制吊柜+分段窄柜,榨干每一寸空间。
主卧床尾做一整排储物柜(4米8),也预留出电视机的位置。电视机下方设置了超实用抽屉,最上方抽屉为加密设计,所有开门方式均为骨骼线拉手。床头定制一体悬空抽屉充当床头柜。小秘密:衣柜里给业主做夹层了哦~
主卧细节:口袋门前期需要提前预埋轨道与缓冲阻尼;挂衣架旁隔板为夹心结构,以防后期变形;
次卧也是多功能房,是男主人的茶室也是小孙女的玩耍区,同时也可充当临时客房,并兼顾了小孙女的“乐高展”。主要以茶桌和地台的组合形式,让空间有了更多可能,搭配一整面的储物柜,家里的大件行李箱、挂烫机、打印机统统塞入。
展示柜内有灯带,外有钥匙锁住,正对次卧门,日常次卧都是开门状态,以至于展示柜也成了客厅一道靓丽风景线。省钱小技巧:储物柜下方均没有做底板。
卫生间细节:
1、木饰面隐藏门,拥有隐形锁孔,内推打开;
2、镜柜下方的木板做了部分镂空,方便洗脸巾随用随拿;
3、台盆柜边角做了圆弧处理,同时靠近马桶一侧做了内推设计,放置纸巾等小物品;
4、淋浴间尺寸做到900(mm),刚好3块小砖的尺寸,完整性强。淋浴间玻璃门,内外均可打开,安全方便;
5、隐藏式喷头搭配长条形地漏,简单美观;
6、选用了一个内置百叶下翻窗,更加简洁实用。
7、卫生间瓷砖上下分色,做了腰线。
客服
消息
收藏
下载
最近





























