查看完整案例

收藏

下载
生活不是局限于人类追求自己的实际目标所进行的日常行动,而是显示了人类参加到一种宇宙韵律中来,这种韵律以形形色色的方式证明其自身的存在。——泰戈尔
项目择址广州白云区生态腹地,踞守都市繁华与自然静谧的黄金交汇点。建筑群以纯白几何体块错落矗立于碧波湖畔,如一方悬浮于绿意之上的乌托邦结界,将喧嚣车马隔绝于外。
建筑总共层,垂直呼吸体系层层递进,皆循生活之韵律而设,四层空间依江景走向开凿全景落地窗,独享360°环幕式生态景观——推窗可见珠江天际线蜿蜒如练,侧耳可闻林间鸟鸣私语,晨昏光影流转间,绘就「离尘不离城」的诗意栖居范本。
01POETIC RESIDENCE
诗意栖居
邂逅奢雅
入户极具仪式感的门厅,简约的白色基调,引领视线延伸至楼上,直至天际。
大理石雕琢的旋转楼梯,引天光、水色、绿意倾泻入室,在光影中缓缓铺展,与璀璨夺目的水晶灯饰交相辉映共筑「光之序曲」。
P. 01
P. 02
P. 03
P. 04
楼梯两侧的空间悠然铺展,形成一个宽广无垠的横厅,极大地拓宽了空间的尺度,在光影的交错中,构建一场关于光的梦幻序曲,让人沉醉其中。
P. 05
P. 06
P. 07
优雅的拱形立柱犹如一曲温柔的诗篇,以柔和而富有诗意的空间语言,邀请人们放慢脚步,一旁静静伫立的白马雕塑,以其流畅的线条与矫健的姿态构建是力量与优雅的化身,与空间形成和谐对话,暗涌着居者对自由、高贵生活的不懈追求。
P. 08
P. 09
P. 10
P. 11
踏步入左侧的餐厅区域,一家人其乐融融的画面温馨呈现。
大理石餐桌以其独特的玉石肌理勾勒出非凡质感,宛如艺术品般雅致,搭配香槟色皮质座椅,奢华与舒适并存,在无声中悄然融入日常生活的每一个细节,让用餐成为视觉与味觉的双重盛宴,家的温馨与美好在此刻凝聚。
P. 12
P. 13
P. 14
定制柜展示着主人从各国旅游带回来的创意餐具,造型各异,为空间增添一份真实与趣味性。
P. 15
P. 16
P. 17
过道左侧的微型红酒博物馆珍藏酒品,每一滴醇厚中皆蕴含着各国风土故事,静置于精致的展架之上,等待知音的邂逅。
P. 18
02GRACEFUL AND QUIET
翩跹静谧 动静皆宜
二层取“翩跹静谧 动静皆宜”之意,三两知己,品茗论道、修身养性或浅酌对谈,尽显文人雅士之逸趣。
一处茶席,几张木椅,奢华,是每一次品茗时的悠然自得,每一页阅读中的灵魂共鸣;书房兼茶室的空间营造,引领身心远离尘世纷扰,沉浸宁静致远之境。
P. 19
P. 20
P. 21
P. 22
bar区根据不同的生活场景融入智能灯光调控,编织出独一无二的空间情感体验放大生活仪式感,成为二人世界的浪漫小酌、朋友欢聚的理想之地。
P. 23
P. 24
墙面抽象的艺术涂鸦以充满童趣的形象,大胆的线条和鲜艳的色彩,展现出居者内心深处的热情与活力。
P. 25
P. 26
P. 27
P. 28
景观作为室内最大的艺术画,巧妙将自然之美引入室内空间,将原阴暗楼梯重塑为「光的序曲」,通过镜面、透光玻璃与智能调光系统,打造昼夜交替的光影叙事,使得每一寸空间都充满诗意。
精心剪裁的绿植景观层次分明郁郁葱葱,在四季的更迭中展现出不同的风貌,为室内带来勃勃生机。
P. 29
P. 30 • 03
ELEGANT ART WORLD
雅致艺界
法韵绮境
色彩斑斓的亚克力展示柜,以跳跃色彩活泼了空间,宛如一个个透明的梦幻泡泡,内里陈列的孩童手工艺品与珍藏陶艺在光线的折射下更显生动有趣。
P. 31
P. 32
P. 33
P. 34
P. 35
P. 36
三层作为屋主休憩之所,公区则作为家庭会客厅链接夫妻二人的甜蜜世界,定制的玻璃茶几,随意摆放的家具以不规则的形态,搭配出不经意的松弛感。行云流水地沙发线条与金属大理石勾勒出优雅且浪漫的法式风情,将家从日常的功能性升华至灵魂的滋养之地。
P. 37
P. 38
奢华不是对物质的追求,更是对梦想的无尽探索与致敬。它体现在对细节的极致考究,及对生活美学的深刻理解上。
中古花瓶以其独特的韵味点缀空间,彰显出居者对精致品质生活的独到追求,亦是其艺术审美与个性表达的完美载体。
P. 39
P. 40
P. 41
P. 42
空间不止于居住容器,更是情感与艺术的载体。
卧室是柔软、轻盈、明亮的代名词,丝绸材质的床品以其细腻触感与光泽勾勒低调的奢华,香槟配色尽显柔与微妙。
P. 43
P. 44
床头柜以进口胡桃木的厚重承载着岁月的沉淀,复古精致的金色雕花采用镶嵌、雕刻或青铜铸造后采用金箔雕琢而成,灯光映照下熠熠生辉尽显匠心之美,亦如时间的印记,静静讲述着过往故事。
P. 45
P. 46
浴室采用低奢大理石台面,简约的线条搭配若隐若现的花纹无形中增添一丝古典韵味,隐藏式LED灯带柔和地照亮每一寸空间,让每一次沐浴都成为一场关于美的仪式。
P. 47
P. 48
P. 49
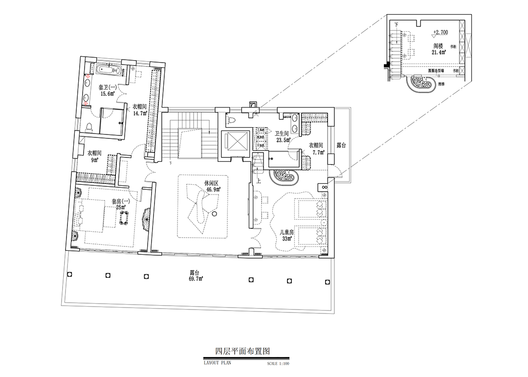
四层以为引,为居者量身定制独享乐园,寓教于乐,任孩童遨游于想象的天地,释放纯真本性。
P. 50
P. 51
P. 52
P. 53
P. 54
P. 55
• 04
ANALYSIS
DIAGRAM
分析图
滑动查看 1F 2F 3F 4F平面图 P. 56
INFO
- 项目名称 - 香颂 云邸
- 设计机构 - 木马人空间设计
- 设计总监 - 杨在英
- 设计团队 - 杨在英 王仪方
- 项目面积 - 1800㎡
- 项目摄影 - 光圈漫游
- 项目地址 - 中国 广州
- 设计内容 - 建筑 园林 室内
- 内容策划 - 睿标联合
DESIGNER
杨在英 木马人设计创始人 - 设计总监
客服
消息
收藏
下载
最近



































































