查看完整案例

收藏

下载
项目位于宁波市江北区的江安路,地理位置临近来福士广场,铺面是并排临街的两层小楼,业主想要在这里打造一个反常规的“苍蝇馆子”。
The project is located on Jiang’an Road, Jiangbei District, Ningbo City, close to Raffles Square. The shop is a two-story building facing the street side by side. The owner wants to build an unconventional “fly restaurant” here.
▼店铺外观,exterior view © 黑水
在这座偏商务的都市里,依然留存着一些属于本地的时代印记,曲折幽深的巷子里会有那么几家小店,昏黄幽暗的灯光下,略显年代感的餐桌前,坐满着远道而来的饕客们,人们三三两两的聊着家常,这是一个城市的胎记,记忆里的老店。现在我们想从另一个视角重现,即使它可能没那么接地气,但是它肯定依然能够满足你的味蕾,带给你更加新奇的感官体验。
In this business-oriented city, there are still some local marks of the times. There are a few small shops in the winding and deep alleys. Under the dim lights, the slightly old-fashioned tables are filled with gourmets from afar, and people chat in groups of three or two. This is the birthmark of a city and an old shop in memory. Now we want to reproduce it from another perspective. Even if it may not be so down-to-earth, it will definitely satisfy your taste buds and bring you a more novel sensory experience.
▼外立面门头结构轴侧图,Axonometric view of the exterior door structure © TRA Studio
区别于传统苍蝇馆子简易的自然感,我们反其道做了更有氛围感的门头,层次分明的外立面。我们打开了二楼的窗户,使外部的景色与声音能够传递进空间,结合冲孔铝板的拱顶,整个二楼成为市井的观景台,亦或是一个聚焦的舞台,内外的视野能够对话。
Different from the simple and natural feeling of traditional fly restaurants, we made a more atmospheric door head and a layered facade. We opened the windows on the second floor to allow the external scenery and sounds to be transmitted into the space. Combined with the perforated aluminum plate vault, the entire second floor becomes a viewing platform for the market, or a focused stage, where the internal and external views can communicate.
▼夜晚的外立面,Exterior facade at night © 黑水
进入门厅,转过玄关,水泥墙板与木饰面之间的碰撞,粗糙跟细腻的糅合,恰到好处的框架分割,使得空间和谐整体,夜幕下的窗外,模糊的车流与人影,让略微狭窄的一楼空间更加温馨。
Entering the foyer and passing the entrance hall, the collision between cement wall panels and wooden veneer, the blend of roughness and delicacy, and the perfect frame division make the space harmonious as a whole. Outside the window under the night sky, the blurred traffic and human figures make the slightly narrow first floor space more cozy.
▼一楼餐区概览,First floor dining area © 黑水
▼一楼餐区局部,First floor dining area close-up © 黑水
步入二楼,巨大的拱形冲孔板贯穿了整个顶面,灯光从中透出,照映出内部原始水泥楼板的粗矿纹理,区别于一楼的微醺与紧凑,二楼的整个空间更像一个表演的舞台。能够完全展开的移窗,提供了更大的视野,是街区吸睛的聚焦点,也是城市风景的观察口。
Entering the second floor, a huge arched perforated plate runs through the entire ceiling, and the light shines through it, reflecting the rough texture of the original cement floor inside. Different from the tipsy and compact first floor, the entire space on the second floor is more like a performance stage. The fully expandable sliding windows provide a wider field of view, which is the eye-catching focus of the block and the observation point of the city scenery.
▼步入二楼,Entering the second floor © 黑水
▼二楼餐区概览,Second floor dining area © 黑水
▼完全展开的移窗,fully expandable sliding windows © 黑水
▼打开的二楼窗户,Open second floor window © 黑水
▼巨大的拱形冲孔板,a huge arched perforated plate © 黑水
▼细部,detail © 黑水
▼包间,private room © 黑水
▼夜景,night view © 黑水
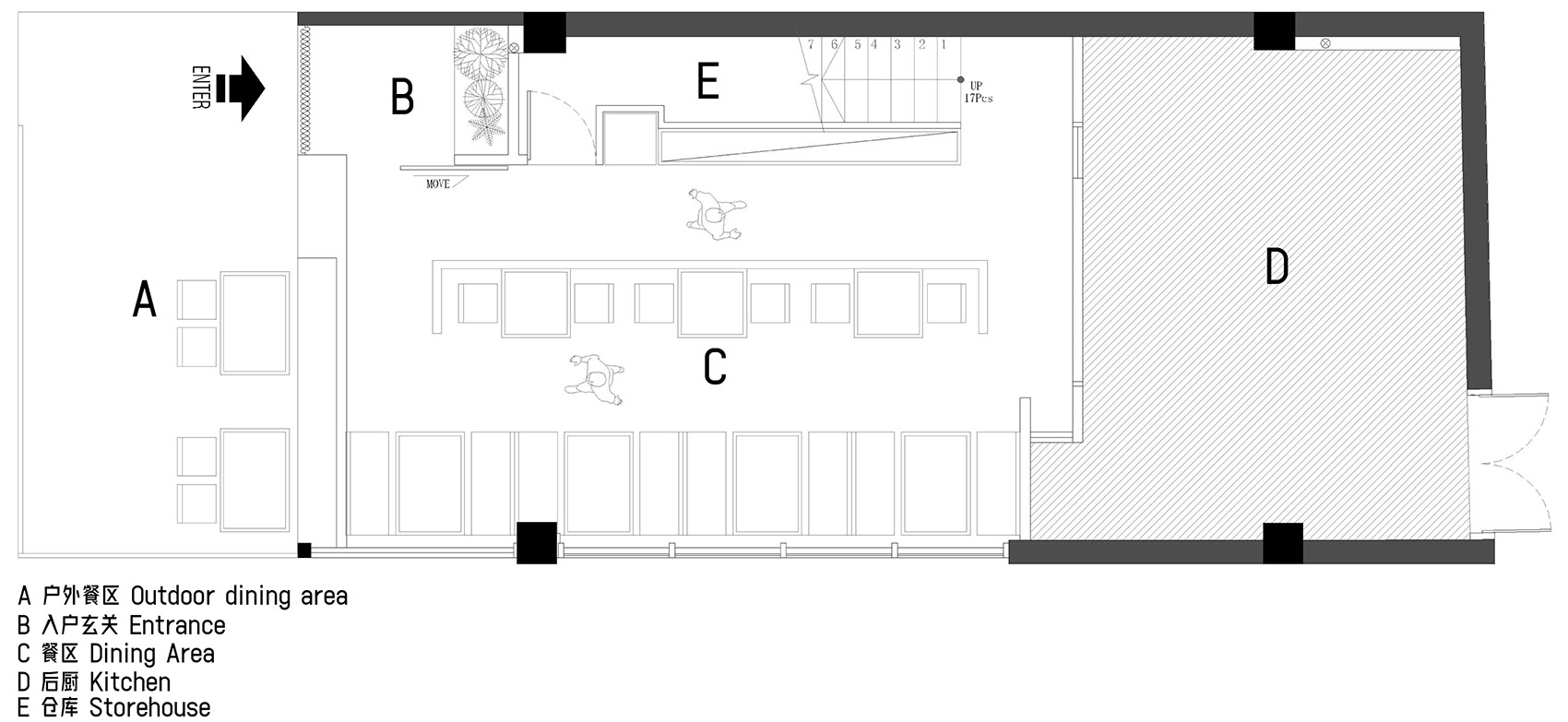
▼1F平面布置图,1F Floor Plan © TRA Studio
▼2F平面布置图,2F Floor Plan © TRA Studio
项目名称:苍蝇馆子
项目类型:餐厅 商业建筑
设计方:TRA Studio
完成年份:2025.03
设计团队:徐衍 阿鑫 刘朗
项目地址:宁波市江北区江安路477号
建筑面积:160㎡
摄影版权:黑水
材料:木饰面 金属 艺术漆 瓷砖
Project name: cangying guanzi
Project type: Restaurant, Commercial buildings
Design: Transitional Studio
Design year: 2024.12
Completion Year:2025.03
Leader designer & Team:ryan xu,axin,liulang
Project location:No. 477, Jiang’an Road, Jiangbei District, Ningbo
Gross built area: 160㎡
Photo credit:Hei Shui
Materials: Wood veneer Metal Art paint Tile
客服
消息
收藏
下载
最近

























