查看完整案例

收藏

下载
位于芬兰Rauma市的Kari校园将多座重要的公共机构与设施汇聚于一体,涵盖游泳馆、体育馆、综合学校、音乐学校、成人教育中心和青少年中心。多功能共存带来了显著的协同效应与成本节约。
The Kari Campus in Rauma gathers several important public institutions and amenities under one roof. It consists of swimming and sports halls, a comprehensive school, a music school, an adult education centre and a youth centre. Being together creates significant synergy and savings.
▼户外体育场一侧鸟瞰,half-aerial view of the sport field side© Mika Huisman
▼项目概览,overall of the project© Mika Huisman
▼外观夜景,night view© Mika Huisman
▼入口,entrance© Mika Huisman
▼外观细部,exterior view© Sami Saastamoinen
Rauma是芬兰一座独特的城市,其市中心因珍贵且保存完好的传统木质城镇风貌,被列入联合国教科文组织世界遗产名录。Kari校园位于老城旁,新校园的小尺度体量与木质立面与老城形成了对话与呼应。
Rauma is a particular town in Finland. Its centre is listed UNESCO World Heritage because of its cherished and well-preserved traditional wooden townscape. The campus sits by the old town, with which the small-scale massing and wooden facades of the new campus are in dialogue.
▼立面,facade© Sami Saastamoinen
▼餐厅,canteen© Sami Saastamoinen
▼细部,details© Sami Saastamoinen
教育、体育与休闲中心的核心区域是一个由服务台、大堂、咖啡馆和餐厅组成的中庭空间。围绕中庭布置了共享与专用的教学、表演和运动空间。建筑群的布局创造了阳光充足、气候宜人的室外活动区域。一个缓缓上升的入口广场引导访客步入建筑。庭院为不同年龄群体提供了丰富的游戏、运动、学习、交流与休闲的空间可能。游泳馆设有大面积窗户,可眺望绿意盎然的丘陵公园景观。
At the heart of the education, sports and leisure centre is an atrium of service desks, foyers, a café and a restaurant. Shared and dedicated spaces of teaching, performance and sports are around the central spaces. The positioning of the building complex creates sunny outdoor areas that have a pleasant microclimate. A gently sloping entrance square welcomes visitors to the building. The yard has diverse possibilities of play, sports, learning, meeting and leisure for various age groups. The ample windows of the swimming hall open to a verdant hilly park.
▼休闲区域,leisure area© Sami Saastamoinen
▼体育馆,sports hall© Sami Saastamoinen
▼报告厅,auditorium© Sami Saastamoinen
▼总平面图,master plan© Verstas Architects
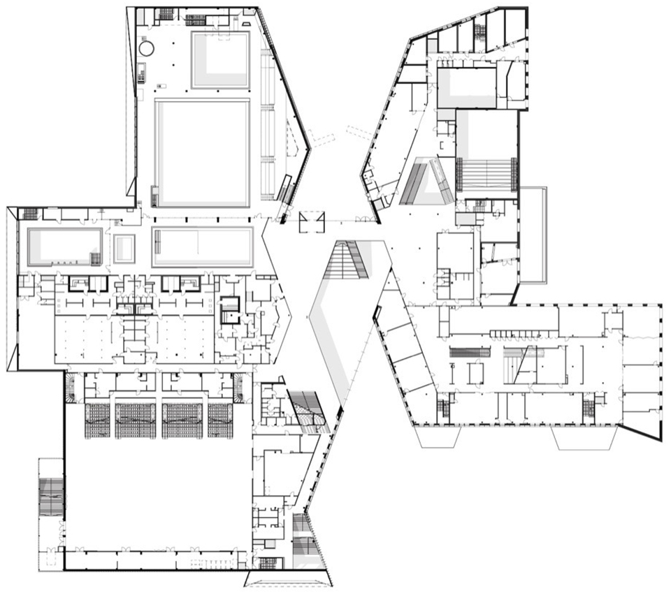
▼平面图,plan© Verstas Architects
▼剖面图,section© Verstas Architects
Occupants: The new building consists of of swimming and sports halls, a comprehensive school, a music school, an adult education centre and a youth centre.
Location: Aittakarinkatu 10, Rauma, Finland
Client: City of Rauma
Opening: Sports halls, comprehensive school, music school, adult education centre and youth centre August 2024; Swimming halls – March 2025
Architect & interior architect: Verstas Architects, Helsinki, Finland
Lead Architects- Jussi Palva (Partner-in-Charge), Väinö Nikkilä, Riina Palva and Ilkka Salminen
Project Manager – Sari Kukkasniemi & Pasi Piironen
Architecture Team: Atte Mattila, Kristina Färm, Anniina Taivainen, Tino Toivonen, Mikko Rossi, Santeri Hänninen, Pipsa Klang, Aino Airas, Otto Autio, Mika Lundberg, Ville Nurkka, Irma Verhe, Carl von Numers, Anna Nirkkonen, Ilkka Törmä, Pekka Airaxin, Jenni Salomaa
Interior Architecture Team: Laura Brotherus, Jessica Högsten, Johanna Ruusu, Karola Sahi, Elina Vähäkylä, Nina Sandell
Collaborators – Swimming hall design – Arkkitehtuuritoimisto Arktes Oy
Landscape design- Masu Planning Oy
Pedagogical design – Arkkitehtuuritoimisto Finpeda Ltd
Structural engineering – Sweco Talotekniikka Oy
Acoustical engineering – A-Insinöörit Suunnittelu Oy
HVAC & sprinkler engineering – Sweco Talotekniikka Oy
Automation and water processing engineering – Ramboll Finland Oy
Electrical engineering – Rejlers Oy
Geological engineering – Geobotnia Oy
Fire safety engineering – KK-Palokonsultti Oy
Infrastuctural engineering – Sweco Ympäristö Oy
Energy engineering – Granlund Consulting Oy
BIM coordinator – Tietoa Finland Oy
Cost control – Granlund Consulting
Geotechnical surveys – Ramboll Finland Oy
Main contractor- Hartela Länsi-Suomi Oy
Project cost – Approximately EUR 75 000 000
Dimensions and figures: Total gross floor area- 30 400 m; Sports hall – 4 600 m, 1 500 m, capacity 832 seats; Concert hall- Capacity 200 seats; Swimming hall- 6 700 m, pool surface 1 020 m
Project timeline: Design – Design started in the Fall 2018; Construction: The building ground excavation work was completed in January 2021. The construction kickoff was in June 2021. The construction completed (excluding the swimming hall) in April 2024. Swimming hall completion December 2024
客服
消息
收藏
下载
最近
















