查看完整案例

收藏

下载
IUA Ignacio Urquiza Arquitectos:该项目位于墨西哥城的一个低密度住宅区,据该地区的分区法规规定,每 1,000平方米的土地仅允许建造一座住宅。然而,在该法规生效之前,一些地块已经被拆分,形成了一些独特的案例。本项目便是一个 400 平方米的场地,正面宽10米,纵深40米。
IUA Ignacio Urquiza Arquitectos:The project is located in a low-density residential area in Mexico City, where zoning rules currently permit one house to be built per each 1,000 m2 of land. In this area, there are a number of lots that were subdivided before this norm came into force, but they are few and they tend to have specific characteristics. In this case we worked with a 400 m2 site that has a 10-meter frontage and is 40 meters in depth.
场地狭长的形态与严格的建筑规范,成为住宅形式的主要外部因素。建筑前后各有5米退界,两侧则有 3 米侧向退界,严格定义了建筑的边界范围。
The narrow, elongated site—combined with the strict norms in force—were the first external factors determining the form of the house. The restrictions to the front and the rear, both of 5 meters, combined with the lateral setback of 3 meters, decide the exact perimeter of the construction. ▽住宅与周边环境鸟瞰
▽狭长的庭院景观空间
设计策略旨在创造最大化的内部空间,同时营造一种开放感,并让室内外产生连续性的关系。因此,设计师在建筑周围设有一个云雾森林般的环绕式庭院,其三面由钢与玻璃结构包围。此外,在建筑中央,紧邻垂直交通区域,还设计了一个内部庭院,用于增强室内外互动,扩展空间尺度的同时,作为调节室内温度的核心元素。
The design strategy pointed towards creating the largest possible interior space, while seeking a sensation of openness and a continuous relationship with the exterior. As a result, a perimeter garden—designed to be like a cloud forest—surrounds three sides of the steel and glass structure. At the center of the project, adjacent to the vertical circulations, another garden is inserted in a void that multiplies this interior-exterior relationship and the breadth, while also functioning as a nucleus regulating the ambient temperature.
▽被自然包裹的建筑与庭院共同生长
为了柔化建筑体量的刚性,设计采用了一系列特定的空间手法:严谨的模数被灵活调整,以适应具体功能需求;柔软的植被打破了外部空间的边界,模糊室内与室外的界限;地下室的内外穿插路径,形成空间流动感;反射立面赋予建筑在一天中的不同时间及气候条件下展现出变化的外观。
The rigidity of the volume is softened with specific gestures and interventions; the strict modulation is adapted to the use and the program it contains, while the perimeter of the exterior space is continually interrupted by vegetation. The basement voids suggest an interior and exterior circulation of the volume; the reflective façade endows it with a shifting appearance that makes it different and new over the course of the day and with new weather conditions.
▽柔软的植被打破了外部空间的边界,模糊室内与室外的界限
建筑内部呈现动态空间,通过双层挑高区域、连廊及屋顶露台,这些元素的相互交织,创造出流动的空间体验,让建筑与环境紧密结合。
The interior of the volume is dynamic, with double-height spaces, bridges and roofed external terraces that interweave with the structure to generate a spatial sensation that flows with the exterior and the habitation of the box.
The program is grouped and distributed by floor; a basement contains the services and additional uses such as gym, games room, office and wine cellar. The first floor distributes the social areas of the house and establishes them in direct relation to the perimeter garden. The second floors comprises three bedrooms, while the roof terrace, between adjacent gardens and clay roofs, is an extension of the house’s social space, wholly given over to a children’s play area. These four levels are articulated by the vertical circulations and the different voids that break up the uniformity of the box.
▽双层挑高的区域,让空间更通透明亮
▽舒适的二楼卧室
▽屋顶露台
▽楼梯连接上下空间
建筑的色彩借鉴了勒·柯布西耶的色彩体系,巧妙地融入到周围的绿色景观。蓝绿色玻璃具有镜面效果,反射着天空、周边景观及邻近建筑,试图让住宅与环境融为一体。窗户与浅灰色的墙体使室内光线更加平静柔和,给冰冷而僵硬的建筑带来意外的温暖感。
The color of the structure is borrowed from the Pantone of Le Corbusier, and chosen to blend perfectly with the green hues of the vegetation and the landscape.
The blue/green tinted windows act as mirrors on the outside, reflecting the skies, landscape and adjacent constructions. The intention is to camouflage the house with the immediate surroundings; the windows, together with the light gray stucco calms the light in the interior and gives the cold and rigid volume a feeling of unexpected warmth.
▽映射周边环境,并与环境相融的建筑外立面
设计选用 Lorena Vieyra 的家具,搭配层次丰富且有质感的窗帘,可以弥补透明性问题并使空间具有整体性。再结合现有植被和景观元素,进一步强化了居住在云雾森林中的感觉,模糊了室内外之间的界限。
The Lorena Vieyra furnishings and the different layers and textures of the curtains selected for the home interiors establish an interplay with the transparencies and dress the whole. Together with the existing vegetation and landscaping by Thalia Davidoff, all these elements reinforce the sensation of inhabiting a cloud forest where the clarity that marks a division between the interior, the exterior and the physical limits of the property is blurred.
▽艺术感家具设计
▽夜景下的住宅更为温馨
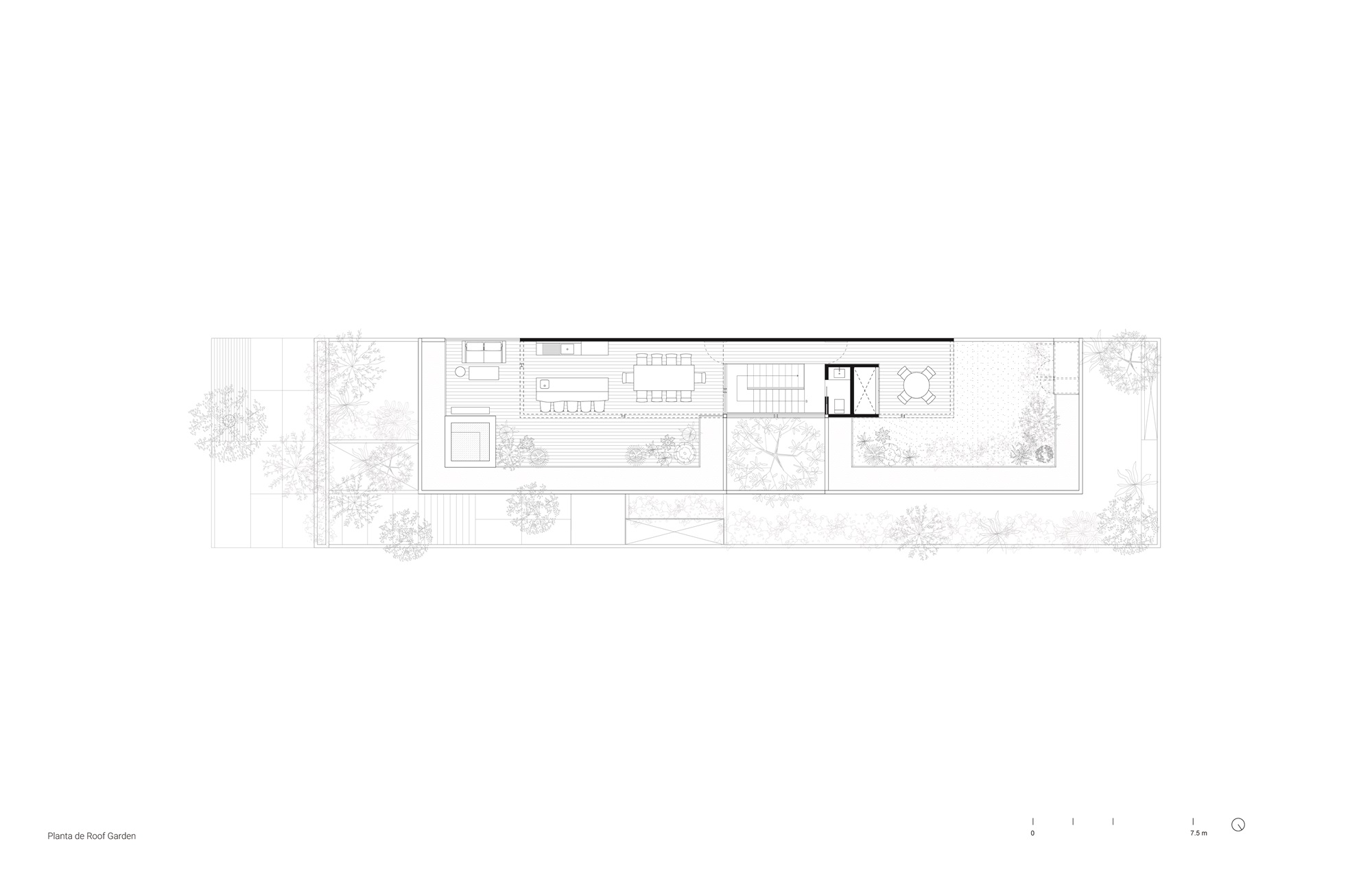
▽设计图纸
项目名称:Cárpatos
地点:墨西哥
用途:住宅
面积:700平方米
状态:已建成
竣工时间:2022年
建筑事务所:IUA Ignacio Urquiza Arquitectos
主管建筑师:Ignacio Urquiza Seoane
设计团队:Ana Laura Ochoa, Anet Carmona, Michela Lostia di Santa Sofia
室内设计:Vieyra Studio
室内设计师:Lorena Vieyra
室内设计团队:Jimena Trejo
结构:Moncad, Jorge Cadena
工程:IE Ortega, Enrique Ortega
Lighting: LDT照明
景观:Aldaba Jardines, Thalia Divadoff
摄影师:Rafael Gamo, Estudio Urquiza (Ignacio Urquiza), Arturo Arrieta
Instagram: @ignaciourquiza.mx, @vieyraestudio
Project name:Cárpatos
Location:México City
Use:Residential
Area:700 m²
Status:Built
Year:2022
Architecture:IUA Ignacio Urquiza Arquitectos
Architect in charge:Ignacio Urquiza Seoane
Design team:Ana Laura Ochoa, Anet Carmona, Michela Lostia di Santa Sofia
Interior design:Vieyra Estudio
Interior Designer:Lorena Vieyra
Interior Design team:Jimena Trejo
Structure:Moncad, Jorge Cadena
Engineerings:IE Ortega, Enrique Ortega
Lighting:LDT Iluminación
Landscape:Aldaba Jardines, Thalia Divadoff
Photographer:Rafael Gamo, Estudio Urquiza (Ignacio Urquiza), Arturo Arrieta
建筑与自然的巧妙融合,构建一个沉浸于云雾森林的居住氛围。
客服
消息
收藏
下载
最近















































