查看完整案例

收藏

下载

翻译
Architects:Ben Walker Architects
Area:393m²
Year:2014
Photographs:Ben Guthrie
Manufacturers:Unios,Caroma,Faucett Strommen,Logikhaus Windows,Namoi Valley bricks,Thors Hammer,Zehnder
Lead Architects:Ben Walker
Building Contractor:Ewer Constructions
Landscape Architect:Plot Design Group
Structural Engineer:Northrops Engineers
Category:Houses,Sustainability
Country:Australia
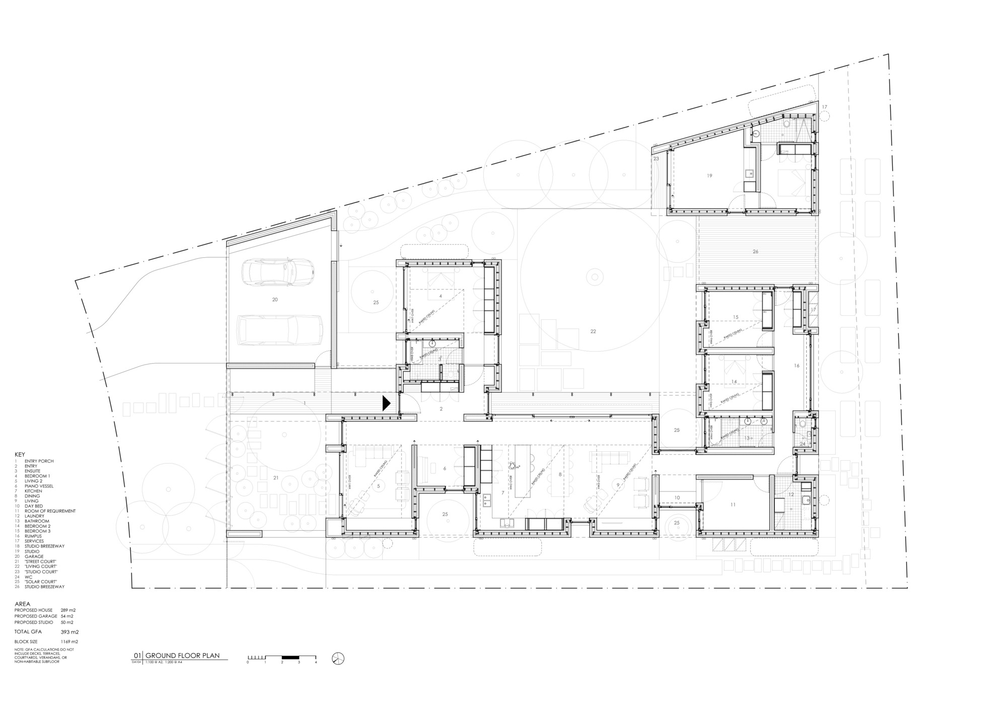
Text description provided by the architects. The project comprised the design of a new single-storey house in the northern Canberra suburb of Turner, close to the city centre and the University precinct. The building forms a "U" shaped plan with an internalised large central court. The internal planning wraps the central court with a parents' zone on the northern side, a living spine along the west, and a children's zone along the south. This layout provides the desired privacy from the public realm, but allows for open and generous views from living spaces into the central court.
A second north-facing courtyard adjacent to the street is equipped with operable pivoting privacy screens to shield the courtyard from the street, but allow opening to views across the adjacent park when desired. A third court is located on the northern side of the main bedroom behind the garage pod – a deliberate planning decision to provide privacy. A separate studio forms the south-eastern corner of the U.
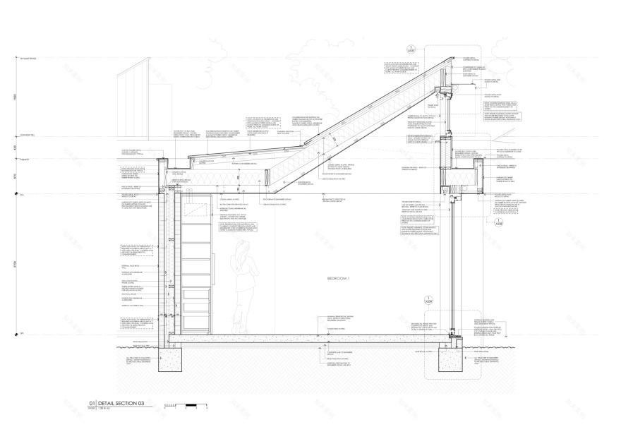
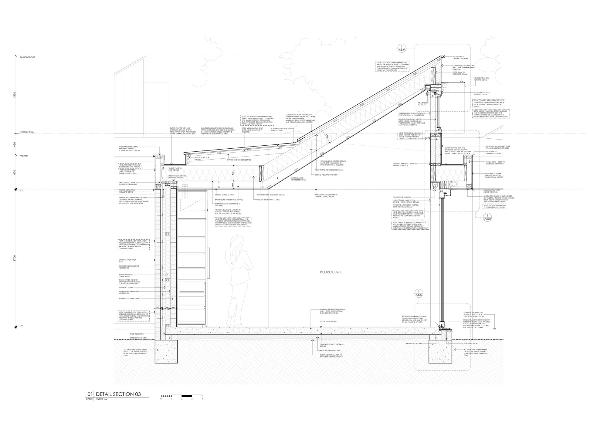
The interior spaces are defined by cream coloured brick walls rising to a consistent datum with white plastered ceilings above. The three main "wings" forming the plan are carefully defined through the use of a series of small indented solar courts at their junctions. These courts provide light and refuge between the wings, subtly demarcating the transition between zones and providing foreground views of the landscape. A series of saw-tooth roof elements contains highlight windows that provide northern sun to rooms that may otherwise be landlocked. The saw tooth assists in passive solar gain, provides views to the sky, and is positioned to relate to and define living spaces below. They provide delightful and generous internal volume.
The interior finishes comprise a palette of dry pressed brick, honed concrete, white plaster, and Birch ply joinery. Wet area fixtures are natural brass. This simple palette espouses the personality and requests of the client and provides an uncluttered backdrop to their family life, furniture, and art collection. The exteriors are expressed as brick walls and recycled timber-clad parapet beams. The beams tie external spaces and solar courts to the house to bring a clarity of geometry to an otherwise articulated floor plan. Steel CHS columns at the front of the house lighten the architectural expression to the street and demarcate the main entry.
The dry pressed bricks used on the project are sourced from a factory in northern NSW that is approximately 50km from the family farm that the client grew up on. This results in the bricks in the new house being manufactured from clay that has a connection to the family's farming history and a strong sense of memory of place.
The house includes heavily insulated triple-layered walls. Ceilings and burnished concrete slab are heavily insulated, with both internal and external membranes providing excellent air tightness. Windows are composite frames with high-performance triple glazing. The PV system provides a substantial portion of household energy use, and a centralised HRV system balances internal temperatures, cleans air, and removes vapour.
Project gallery
客服
消息
收藏
下载
最近









































