查看完整案例

收藏

下载

翻译
Architects:Todot Architects and Partners
Area:483m²
Year:2025
Photographs:Choi Jinbo
Lead Architects:Cho Byung Kyu, Mo Seungmin
Category:Houses
Design Team:Shim Keon Kyu, Lee Jae Jun
General Constructing:Jeongdam Construction
Engineering & Consulting > Electrical:Chunil MEC
Engineering & Consulting > Mechanical:Hanbit Safety Technology Group
Engineering & Consulting > Structural:Delta Structure
Country:South Korea
Text description provided by the architects. When the client, with a concerned look, showed us a triangular plot of land recently removed from a greenbelt zone, we felt it was a fateful moment—the beginning of an adventure in a triangular world. To the young couple, expecting to build a home for themselves and their child, the land must have seemed insufficient and inconvenient. But we saw in it the potential to enjoy both city and nature at the fringe of the urban boundary.
A triangular plot, given the same area, naturally has longer sides than a rectangular one. We saw an advantage in the fact that one of those long edges faced a 25-meter-wide road. The neighborhood itself had a Janus-like duality: to the north of the new road, sparse factories and low-rise buildings gave off a desolate feel, while to the south, a gentle wooded hill created a sense of comfort and calm. This site lay precisely at that threshold, leaning into the wooded hill to the south while facing the wide urban road to the north.
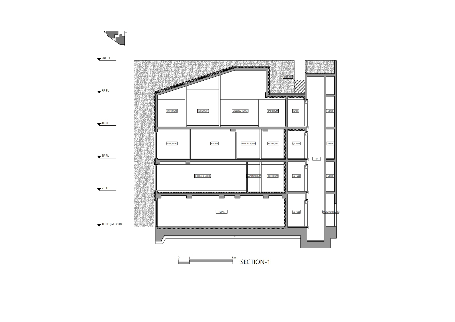
The four-story mixed-use building, combining neighborhood commercial space with rental housing, expresses itself honestly in response to the site conditions and functional requirements. To the north and east, facing the noise of traffic and the arid cityscape, rough concrete walls stand firmly in an L-shape. These walls obscure the distinction between floors, offering a unified facade that draws attention to the first-floor commercial space, while quietly withstanding the city's restless energy.
In contrast, the southern and western faces that lean against the forest are composed of gently curving masses stacked floor by floor. The recessed middle level, primarily intended to provide more space to the owner's fourth-floor unit within limited floor area regulations, also visually communicates that this is a place where multiple households coexist.
Thanks to this configuration, the owner's unit enjoys a veranda with trees and grass, while the third-floor rental unit benefits from a protective eave that keeps rain at bay. These contrasting elevations converge at the triangle's corner, visually accentuating the land's dual nature. What could have been a forgotten edge instead becomes a powerful expression of design intent.
While designing this house, we imagined soft, cocoon-like forms clinging to sturdy branches—like silkworm cocoons—and even thought of pop-up cards that reveal three-dimensional shapes when opened. Rather than a repetitive and flat daily life, we envisioned a vibrant, three-dimensional experience full of memories created by a family living together. One night, we dreamt that after a long time spent together with this house—like a larva in a cocoon—everyone who lives here would one day become a white butterfly. A dream of becoming butterflies. We sincerely hope that dream comes true.
Project gallery
客服
消息
收藏
下载
最近































