查看完整案例

收藏

下载
住宅呈现出简洁的“L”形体,建筑空间由定制波纹铝板围合,构成朝南的绿色庭院。这座1700平方英尺的住宅坐落于纽约哈德逊的一块空地上,填补了城市肌理的空白。由斯蒂文·霍尔建筑事务所(Steven Holl Architects)设计,该住宅不仅是著名现代家具画廊经营者马克·麦克唐纳(Mark McDonald)与德韦恩·雷斯尼克(Dwayne Resnick)的居住与工作空间,更是一座中世纪现代家具的私藏殿堂。
A simple ‘L’ in custom corrugated aluminum forms a south-facing green courtyard. The 1,700- square-foot house, proposed on a vacant lot, completes the fine urban fabric of Hudson, New York. Designed for renowned modern furniture gallerists Mark McDonald and Dwayne Resnick, it serves as both a live-work space and a midcentury collector ’s paradise.
▼项目概览,overall of the project© Paul Warchol
▼庭院,courtyard© Paul Warchol
麦克唐纳被誉为“中世纪现代设计教父”,在推动人们重新关注马塞尔·布劳耶(Marcel Breuer)、阿尔瓦·阿尔托(Alvar Aalto)及查尔斯和雷·伊姆斯(Charles and Ray Eames)等设计大师的作品方面发挥了重要作用。这座住宅精选其二十世纪设计收藏,其中包括一件珍稀的1910年弗兰克·劳埃德·赖特(Frank Lloyd Wright)灯具,以及鲁道夫·辛德勒(Rudolph Schindler)设计的家具。
McDonald, often referred to as the “godfather ” of midcentury modern design, was instrumental in reviving interest in furniture by Marcel Breuer, Alvar Aalto, and Charles and Ray Eames. This house accommodates select pieces from the owner ’s twentieth- century design collection, including a rare 1910 Frank Lloyd Wright fixture and furniture by Rudolph Schindler.
▼建筑外观,exterior view© Paul Warchol
▼住宅入口,entrance of the house© Paul Warchol
建筑外立面采用“指宽”波纹铝板,并经过粉末涂层处理,既经济耐用,又免维护。铝板随光线变化,投射出不断流转的光影效果。“L”形内部表面为柔和的天青色,外立面为白色,而挑檐底面则涂成低饱和度的蓝色,向美国南方传统的“Haint Blue”致敬—— 这一色彩据说能驱邪避凶。
The building ’s skin is a “finger- width” corrugated aluminum with a powder-coated finish. Cost-effective and maintenance-free, it interacts dynamically with sunlight, creating an everchanging play of shadows. The inner surfaces of the ‘L’ are soft cerulean-green, while the outer façades are white, and the underside of the projecting canopies is painted a muted blue— an homage to the Southern tradition of “Haint Blue,” believed to ward off spirits.
▼建筑外立面采用“指宽”波纹铝板,the building ’s skin is a “finger- width” corrugated aluminum© Paul Warchol
“L”形布局围合出一个朝西的花园,将居住与工作功能分置于两端。一条步桥通往屋顶天窗,为室内引入充足光线,并提供通向平屋顶的路径,俯瞰远处的卡茨基尔山脉(Catskills)——向哈德逊河画派的光影艺术致意。住宅内部采用全木材装饰,四面均有自然光透入,形成精心构筑的视角。其中,朝南的卧室通过一组拼接的落地窗框定远处历史悠久的特里·吉列特公馆(Terry Gillette Mansion)。整体室内采用桦木胶合板覆面,成为麦克唐纳与雷斯尼克珍藏家具的温润背景。
The ‘L’ form creates a west-facing garden, integrating living and working spaces at its two ends. A catwalk leads to a pop-up sky monitor, introducing additional light, while offering access to a flat roof with views of the Catskills—a nod to the Luminist painters of the Hudson River School. The all-wood interior receives natural light from all orientations, with carefully framed perspectives, including a south-facing sleeping area that offers a composition of joined picture windows overlooking the historic Terry Gillette Mansion. Birch plywood lines the open-plan interior, acting as a neutral backdrop for McDonald and Resnick’s curated furniture collection.
▼室内概览,overall of interior© Paul Warchol
▼通高的生活空间,double-height living room© Paul Warchol
▼细部,details© Paul Warchol
▼由厨房看客厅,viewing the living room from the kitchen© Paul Warchol
▼楼梯,staircase© Paul Warchol
▼工作室入口,entrance of the studio© Paul Warchol
▼卧室,bedroom© Paul Warchol
▼细部,details© Paul Warchol
空间细节充满巧思与趣味。例如,位于“L”形内角的盥洗室被旋转45度,成为公共与私密空间之间的“铰链”。直角摆放的门及环绕转角的窗户强化了几何构成的主题,而悬挂于天花板的磨砂玻璃面板,则与外窗相连,增强空间的通透感与光影层次。
Subtle, playful elements are integrated into the design. A powder room, located at the inner angle of the ‘L,’ is rotated 45 degrees—acting as a hinge between the public and private zones of the house. The door ’s right- angled placement and a corner-wrapping window reinforce the geometric theme, while a frosted glass panel, suspended from the ceiling connects this space to an exterior window, enhancing openness and layered light.
▼盥洗室洗手池,sink© Paul Warchol
▼浴室,bathroom© Paul Warchol
▼浴室内部,interior of the bathroom© Paul Warchol
▼细部,details© Paul Warchol
此外,定制的黄铜“Hudson L”灯具,以折叠灯体与柔和LED光线呼应住宅的建筑形态。而庭院中的雕塑喷泉,由两个折叠的黄铜“L”形构成,循环雨水,使建筑与自然水循环产生更深层的联系。住宅采用最先进的地热供暖与制冷系统,大幅降低能源消耗,同时设有雨水收集池,强化了建筑对可持续性的回应。
Additionally, a custom-designed brass “Hudson L” light fixture, featuring a folded body and diffused LED lighting, reflects the architectural form of the home. A sculptural fountain, composed of two folded brass “L” shapes, circulates rainwater in the courtyard pond, reinforcing the presence of natural elements. The house features a state-of-the-art geothermal heating and cooling system, drastically reducing energy consumption. A rain-collecting pool further strengthens its connection to natural water cycles.
▼灯具,the light fixture© Paul Warchol
这座住宅既私密又富有张力——在这里,家具、建筑与景观交融共生,让过去与现在、艺术与自然在空间中展开一场深刻的对话。
The house remains intimate yet dynamic—a place where furniture, architecture, and landscape harmonize in a continuous dialogue between past and present, art and nature.
▼场地鸟瞰,aerial view of the site© Paul Warchol
▼模型,model© Steven Holl Architects:
▼水彩手稿,watercolor drawing© Steven Holl
▼场地平面图,site plan© Steven Holl Architects:
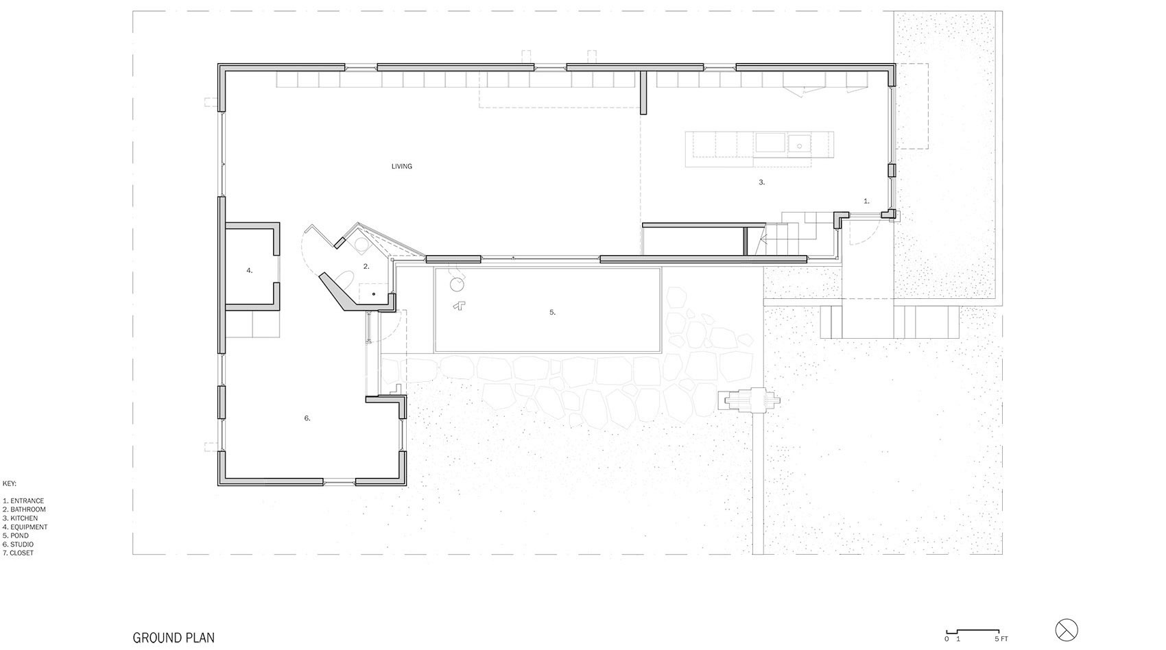
▼一层平面图,ground floor plan© Steven Holl Architects:
▼加层平面图,mezzanine plan© Steven Holl Architects:
▼立面图,elevations© Steven Holl Architects:
▼剖面图,sections© Steven Holl Architects:
▼剖面图,section© Steven Holl Architects:
Hudson L-House
Hudson, NY, United States
2021 – 2024
Architect Steven Holl Architects:
Steven Holl (design architect, principal)
Dimitra Tsachrelia (partner in charge)
Yining He (project architect)
Sarah Hopper, Emmet Sutton, Michael Haddy, Nour Chahboun, Maxwell Funk (project team)
Structural advisor:
TYLin | Silman Structural Solutions
Justin Den Herder
Contractor: Peak Construction
Brian Pisanelli, Herman Gratz
Renewable energy systems, geothermal heating and cooling, radiant flooring, geothermal water heating
Natural Energy Solutions
Eric Maskell
Sustainability: 500- foot deep geothermal well for efficient heating/cooling
Exceeds energy code requirements by 13.7% High-performance insulated glass windows with Low E-3 coating, double- pane IGU, and superior thermal efficiency
客服
消息
收藏
下载
最近









































