查看完整案例

收藏

下载

翻译
Architects:Homu Arquitectos
Area:243m²
Year:2024
Photographs:Jorge Peiró
Category:Apartments
Design Team:Belén Pla, Javier Hernández, Pedro Martínez
Interior Design:Charm Home Apartaments
Flooring:Living Ceramics
Country:Spain
Text description provided by the architects. Homu Arquitectos transforms former ice warehouse into historical essence apartments in El Cabanyal. Valencia-based Homu Arquitectos has transformed a 243 m² former ice warehouse in El Cabanyal into two tourist apartments that respect the neighborhood's identity. Through this intervention, the studio recovers original materials, textures, and elements, giving them new life while highlighting the value of local architecture
Located in Valencia's historic maritime district of El Cabanyal, Los Ángeles apartments breathe new life into a former ice warehouse, transforming it into two tourist accommodations that combine history, identity, and contemporary design. The rehabilitation, carried out by Valencia-based Homu Arquitectos, stems from an exercise in architectural respect, where the original materiality and essence of the building have been carefully preserved.
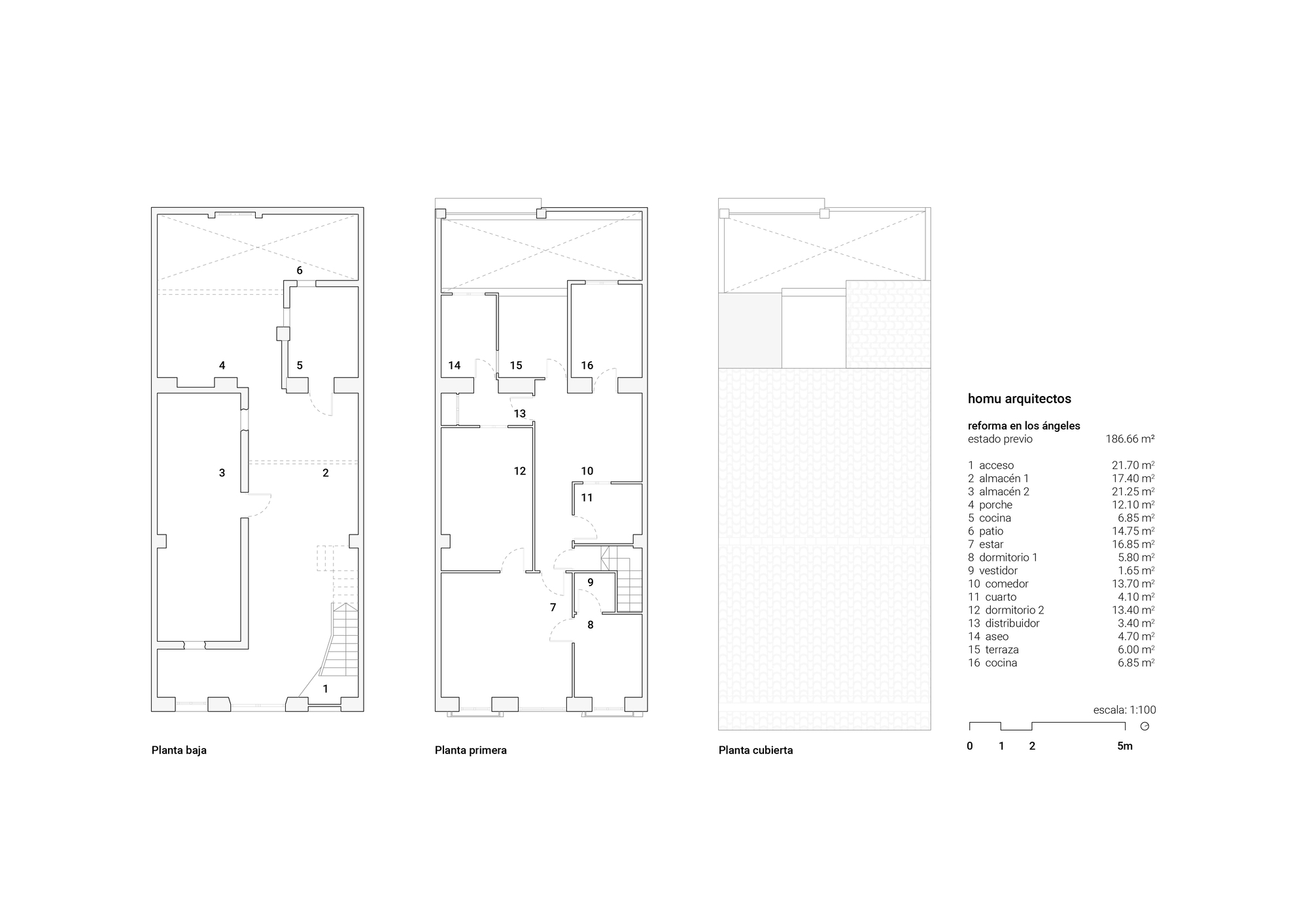
With a surface area of 243 sqm, this terraced property maintained the characteristic elements of El Cabanyal's urban fabric. The intervention removed superfluous details to reorganize the space and adapt it to new needs without losing its essence. The original façade has been restored, along with its independent access, typical of the neighborhood's architectural imprint. Similarly, the stone and brick walls have been recovered, along with the original wooden carpentry and doors.
At the core of the design, Homu Arquitectos has advocated for highlighting the existing structure and materials. Exposed brick, stone, and wood emerge in their pure state, establishing a dialogue with the new intervention. The complementary metal structure integrates with subtlety, providing a contemporary character without diminishing the prominence of the historical materiality. Additionally, indirect lighting takes advantage of these elements' positioning to enhance the warmth of the space. Regarding the layout, the project clearly differentiates the two dwellings.
The ground floor program features two bedrooms, two bathrooms, a Mediterranean patio, and a private swimming pool. On the upper floor, another apartment with independent access houses two terraces and a generous attic space with ceilings nearly seven meters high, where natural light and ventilation play a key role. Original structural elements, such as wooden beams, coexist with an interior proposal of Mediterranean airs and a warm, welcoming atmosphere.
The bathroom areas become the backbone of the space, functioning as a hinge between the day areas and bedrooms. Despite their structural magnitude, they have been designed to integrate subtly, without breaking the fluidity and visual language of the apartments.
Thus, this Homu Arquitectos project demonstrates that it is possible to intervene in historical architecture without stripping it of its identity. The recovery of original elements, combined with contemporary solutions, results in a harmonious proposal where past and present coexist in perfect harmony.
Project gallery
客服
消息
收藏
下载
最近























