查看完整案例

收藏

下载

翻译
Architects:Perkins+Will
Area:9600m²
Year:2024
Photographs:Pedro Mascaro
Category:Higher Education
Lead Team:Douglas Tolaine, Fernando Vidal
Design Team:Paula Caçador, Marcia Rozetti, Leandro Gushiken, Maina Bartholomeu, Guilherme Meneses, Carlos Andrigo, Fabio Jungstedt, Rodrigo Gianoni, Felipe Borgerth, Stephanie Luna, Bruno Faraco
Engineering & Consulting > Civil:BN Engenharia, Athié Wohnrath
Engineering & Consulting > Environmental Sustainability:ENE Consultores
Engineering & Consulting > Acoustic:Akkerman
Engineering & Consulting > Lighting:FOCO
Engineering & Consulting > Electrical:PQR
Engineering & Consulting > Other:Bijari
City:São Paulo
Country:Brazil
Text description provided by the architects. Innovation and integration with nature mark the new headquarters of the Link School of Business, designed by Perkins&Will. The Corporate Garden Jardim Paulista, a sustainable building for Link School of Business, impresses with its innovative and distinctive design integrated with nature. Launched at the end of last year, the 9,600 sqm building has more than privileged views of Ibirapuera Park and provides students with the best experience of the campus and the city of São Paulo.
"The client asked for the realization of a dream. An environment in which they could feel integrated, that would bring back memories of the place where they started it all, since the new headquarters is just a few steps away from the old one, on the other side of the avenue", shares Leandro Gushiken, Project Architect at Perkins&Will São Paulo.
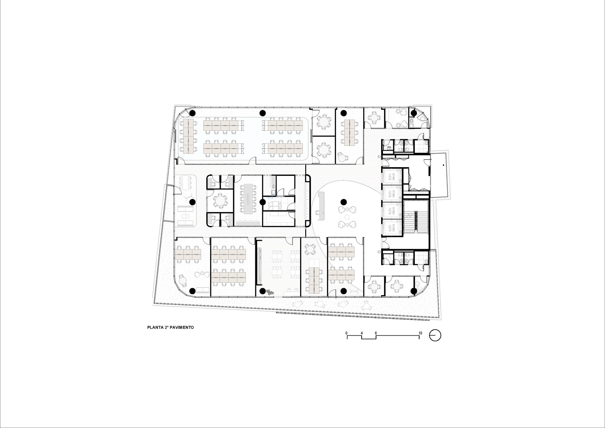
Surrounded by vegetation and naturally lit, the 8-story building establishes a special connection with its surroundings, intensified by the garden-balconies that bridge the gap between exterior and interior, in a symbiosis between nature and the built environment. While classrooms, administrative spaces, collaborative and concentration areas occupy its perimeter – making the most of the views, ventilation and light –, the central circulation axis connects the floors as an invitation to occupy the spaces, more than just a simple passage. The business and technology college also has laboratories, a café and an outdoor terrace on its roof.
As a reflection of the institution's practical and innovative approach, the interior design values the truth and efficiency of materials, with exposed concrete pillars, large glass panels and vinyl coverings in elegant and timeless compositions that guarantee good acoustic performance and visual connection between the environments. Another highlight is the lighting, designed to emphasize the volume and meet the different requirements of use. While the common areas have scenic and diffuse lighting, the classrooms and study areas integrate natural and artificial light for the user comfort.
Guilherme Meneses, Project Designer at Perkins&Will, reveals the challenges involved in developing a project of this kind: "The ideas were already in full swing while the building works were being completed. Therefore, we had to create a very well-organized reasoning with clear steps to deliver the main areas before the start of the school year."
The Corporate Garden also has important sustainability certifications, such as EDGE Post-construction and LEED Gold. Through the measures offered by EDGE strategies, the project achieved excellent levels of savings in the categories of energy, water and energy embodied in materials. LEED certification recognized it as a healthy, highly efficient and economical green building, which offers environmental, social and governance benefits.
Project gallery
客服
消息
收藏
下载
最近





























