查看完整案例

收藏

下载

翻译
Architects:AOR Architects,Architects NRT
Area:17360m²
Year:2024
Photographs:Kalle Kouhia,Marc Goodwin, Archmospheres,Anders Portman,Mika Huisman
Interior design:Architects NRT,AOR Architects, Niina Laukia - AOR Architects
Structural Design:AFRY Finland Oy
HVAC Design:Granlund Saimaa Oy
Electrical design:Rejlers Oy
Landscaping:Maisema-arkkitehtitoimisto Näkymä Oy
Electrical Contractor:ESP Lahti Oy
HVAC Contractor:Pipe Systems Group Finland Oy
Category:University
Architect Team, Architects Nrt:Teemu Tuomi (Principal designer), Ulla Engman (Project architect), Olli Vuorinen, Susanna Anttila, Annu Kumpulainen, Jani Koivula, Emmi Vuonio, Vera Parcheli, Mari Birling, Valtteri Osara, Jaan Gröndahl, Tuula Hikipää, Esa Hotanen, Taro Nieminen, Sini Papakonstantinou, Tuula Olli
Architect Team, Aor Architects:Erkko Aarti (Assisting principal designer), Pekka Pohjola (Project architect, construction phase), Kuutti Halinen, Arto Ollila, Mikki Ristola, Lauri Klemola, Heljä Koskimäki, Niina Laukia
Developer Consultant:{:text=>"WSP Finland Oy", :url=>""}
Main Contractor :{:text=>"Lujatalo Oy", :url=>""}
City:Kotka
Country:Finland
Text description provided by the architects. General Information About the Project - South-Eastern Finland University of Applied Sciences (Xamk) sought new premises for its Kotka campus closer to the city center of Kotka. The goal was to provide students with a more accessible location while also creating an architecturally striking building that would serve as a magnet for the entire city. The new building was designed for Kotka's Kantasatama port, where the Maritime Centre Vellamo had long been the sole public building. Simultaneously with Xamk's new facility, the adjacent Event Centre Satama (designed by ALA Architects, 2023) was constructed to host large-scale events and provide them with catering services. Xamk's building was designed to work in synergy with the Event Centre Satama, allowing both buildings to benefit from each other's functions and share several spaces.
Urban Landscape - Until recently, Kotka's Kantasatama harbor has been dominated by maritime and port operations. The massing and architecture of the new educational building were designed with this historical context in mind. The Maritime Centre Vellamo was the first large-scale sculptural building in the area, and both the new Xamk building and the Event Centre Satama continue this tradition of bold, unembellished architecture drawing from the aesthetics of warehouses and industrial port buildings. In all these buildings, the roof serves as a key design element. Each structure features a distinct roof design, yet together they create a cohesive architectural language. The Xamk building has a massive, folded dual-pitched roof that shelters the terraced interior spaces, rising in height towards the Event Centre Satama while also creating an optimal inclined surface for integrated solar panels. The south-facing slope extends into a four-meter-wide overhang, providing shade to prevent overheating of interior spaces. The building's façade materials consist of metal and glass. The aluminum cladding features an undulating pattern reminiscent of port warehouses, creating dynamic light reflections that enliven the otherwise minimalist façades.
Architecture - The architectural concept of the building is based on the interplay between the steeply pitched protective roof and the terraced building mass beneath it. The façades feature alternating strip windows and large-scale aluminum panels with subtly varied wave profiles. The shape of the roof is emphasized by its connection to the façade's horizontal elements through tall glass walls. Inside, the cascading terraces contrast with the bold exterior. The library hall, while large in scale, achieves intimacy through custom-designed built-in furniture, open staircases connecting different levels, and exposed steel structures visible from the façades. The wave motif of the exterior aluminum cladding is echoed inside as acoustic PET felt wall panels. Moving from the open atrium into the classrooms, the general color scheme shifts from white to warm oak paneling. In the teaching spaces, building systems and technical installations are deliberately left exposed. Given that many of Xamk's study programs focus on construction and building technology, the entire structure has been conceived as a teaching tool.
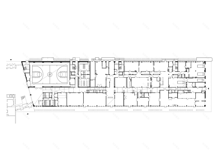
Functionality - The building was designed to meet the needs of a multidisciplinary university of applied sciences, facilitating shared use and interaction both within Xamk and with the Event Centre Satama and the wider community. Flexibility and circular economy principles were considered in the design of the structure, spaces, and technical systems. Although the number of floors varies due to the terracing, the floor plan remains rational. The rectangular classrooms were designed to allow for easy reconfiguration in the short, medium, and long term. The concrete frame of the building has a planned lifespan of 150 years, and given this timeframe, it is likely that the building's function will change at some point. The design anticipates this by providing generous floor heights and systematically organized technical spaces. The integration of service hatches into the façade allows for future upgrades of building systems.
The building has up to six floors. The ground level houses a sports hall and laboratory classrooms requiring heavy-duty maintenance. The second floor features an open library atrium that connects, via terraces, to the upper-level teaching and workspaces. To encourage synergy between different study fields, numerous informal gathering spaces have been incorporated in the form of open interior terraces. The uppermost floors also include a series of rooftop gardens, which can be used for educational purposes, public events, and celebrations.
Project gallery
客服
消息
收藏
下载
最近








































