查看完整案例

收藏

下载

翻译
BH House: Nhà phố hiện đại cho gia đình 3 thế hệ
BH House được xây dựng với mục tiêu chính là đáp ứng đầy đủ các yếu tố quan trọng cho một gia đình 3 thế hệ. Bên cạnh việc tập trung vào thiết kế đẹp và hiện đại, nhóm thiết kế cũng chú trọng đến sự thoải mái, yên tĩnh và riêng tư, những yếu tố quan trọng để tạo nên một không gian sống đúng chất gia đình.
Thông tin dự án:
Tên công trình: BH House
Địa chỉ: Biên Hòa, Đồng Nai
Diện tích khu đất (m2): 201m2
Diện tích xây dựng (m2): 104,94m2
Năm thiết kế: 2022
Năm hoàn thành: 2022
Hiểu rõ mong muốn của gia chủ, 3A Design đã cẩn thận sắp xếp không gian nhà phố để mọi chi tiết đều phục vụ nhu cầu sinh hoạt hàng ngày của gia đình, với các không gian chung được thiết kế mở nhằm tạo điều kiện cho sự giao lưu và tương tác giữa các thành viên trong khi vẫn giữ được cảm giác thoải mái và ấm cúng; đồng thời, các phòng riêng được bố trí sao cho vừa đảm bảo tính riêng tư vừa tối ưu hóa sự tiện nghi và thoải mái cá nhân.
Nhà phố hiện đại nổi bật với kiến trúc hiện đại, tổng thể màu sắc kết hợp hài hòa
BH House là một công trình nhà phố vô cùng ý nghĩa, mang đậm dấu ấn của gia đình ba thế hệ. Với thiết kế hiện đại kết hợp sự sáng tạo trong từng chi tiết, ngôi nhà không chỉ đơn thuần là nơi cư trú mà còn trở thành "tổ ấm" thực sự, nơi lưu giữ và gắn kết những khoảnh khắc đáng nhớ và kỷ niệm quý giá giữa các thế hệ trong gia đình. Ngôi nhà này được thiết kế để tối ưu hóa không gian sống, kết hợp hài hòa giữa thẩm mỹ và chức năng, tạo ra một môi trường sống lý tưởng cho mọi thành viên trong gia đình.
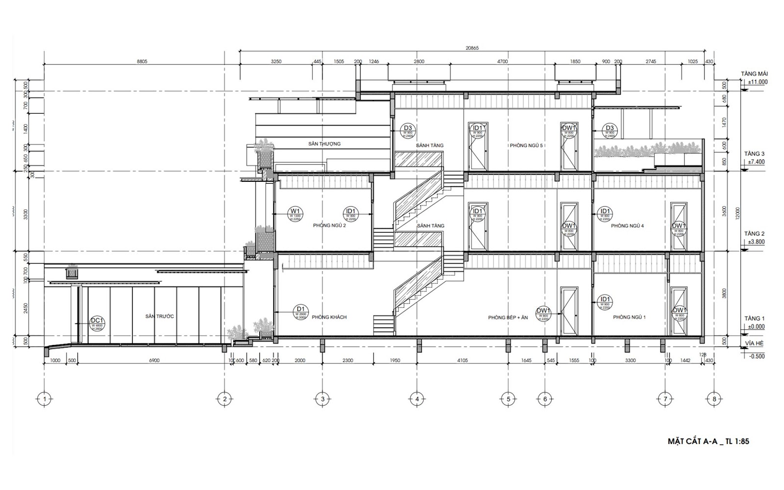
Mặt cắt nhà phố BH House
Nét đẹp hiện đại của BH House không chỉ thể hiện qua thiết kế tổng thể mà còn trong từng chi tiết. Những đường nét dứt khoát và hình khối vững chãi tạo nên vẻ đẹp tinh tế và độc đáo. Các kiến trúc sư của 3A Design đã kết hợp vật liệu gỗ conwood với mảng xanh ở ban công, tạo điểm nhấn cho mặt tiền và hòa quyện với thiên nhiên. Màu xanh của cây lá mang đến sự tươi mới và sức sống cho toàn bộ công trình, làm ngôi nhà trở nên ấn tượng và thu hút.
Mặt tiền của nhà phố hiện đại còn thể hiện rõ nét các đường nét thẳng, mạnh mẽ tạo nên vẻ đẹp phóng khoáng của ngôi nhà
Mang trong mình nét đẹp phóng khoáng của ngôn ngữ hiện đại, BH House đáp ứng được mong muốn của gia chủ về một không gian sống rộng rãi với nhiều "khoảng thở" cùng màu sắc trang nhã và đường nét mạnh mẽ. Phủ lên toàn bộ kiến trúc của ngôi nhà là sắc xám nhẹ nhàng mà tinh tế, hiện đại mà sang trọng. Tổng thể là sự dàn trải của màu sắc tạo sự cân bằng với những vật liệu hiện đại mang đặc tính rắn rỏi như đá, kính và kim loại. Nội thất được thiết kế theo phong cách hiện đại, vị trí đồ nội thất được sắp xếp một cách tỉ mỉ và tinh tế. Các đồ nội thất cơ bản như sofa, tủ TV, tủ rượu,... được lựa chọn và bố trí một cách thông minh để không bỏ sót bất kỳ "góc chết" nào. Mục tiêu là tạo ra một không gian ấm cúng, giúp tạo sự gắn kết giữa các thành viên trong gia đình. và mang đến cảm giác thư thái cho mỗi người. Những chiếc đèn chiếu sáng được bố trí khéo léo, tạo hiệu ứng ánh sáng êm dịu, làm nổi bật các chi tiết và đường nét của từng món đồ nội thất. Cây xanh được đưa vào nhà một cách tự nhiên, không chỉ giúp thanh lọc không khí mà còn tăng thêm sức sống cho không gian sống. Khu vực bếp và phòng ăn liền kề với nhau để thuận tiện trong việc sinh hoạt hàng ngày, đồng thời tạo nên sự liên kết giữa các thành viên khi cùng chuẩn bị bữa cơm gia đình. Mọi ngóc ngách của nhà phố hiện đại đều thể hiện sự tinh tế và chăm chút từ thiết kế đến thi công, mang lại trải nghiệm sống thoải mái nhất cho gia chủ. Phòng ngủ với gam màu nhẹ nhàng cùng chất liệu vải mềm mại là nơi lý tưởng để nghỉ ngơi sau một ngày dài làm việc căng thẳng. Thiết kế cửa sổ lớn giúp tận dụng ánh sáng tự nhiên tối đa, kết nối con người với thiên nhiên bên ngoài. Tất cả những yếu tố này hợp lại tạo nên một tổ ấm hoàn hảo vừa hiện đại vừa gần gũi với thiên nhiên.
Bên cạnh việc tối ưu không gian, cách sắp xếp các đồ dùng nội thất một cách ngăn nắp giúp tạo cảm giác cân bằng và hài hòa cho không gian sống của gia chủ
Không gian phòng bếp sạch sẽ và tiện nghi, được trang bị đầy đủ thiết bị để phục vụ nhu cầu nấu nướng của gia đình
Phòng bếp thông thoáng tone màu sáng tạo cảm giác hài hòa
Phòng ngủ được thiết kế đảm bảo đầy đủ tiện nghi, tạo ra không gian sáng thoáng, mang lại giấc ngủ chất lượng cho gia chủ. Với sự kết hợp tinh tế giữa tiện ích và không gian thoải mái, phòng ngủ là nơi lý tưởng để nghỉ ngơi sau những ngày làm việc bận rộn, đem đến trải nghiệm thoải mái và thư giãn.
Phòng ngủ được thiết kế một cách rộng rãi, bố trí các vật dụng đơn giản, phù hợp với công năng, đảm bảo nhu cầu thư giãn cho gia chủ
Một đặc điểm độc đáo của không gian cầu thang tại nhà phố hiện đại là việc sử dụng đèn LED dài âm tường được sắp xếp như những dải sao băng, tạo hiệu ứng ánh sáng đẹp mắt và làm nổi bật không gian.
Đèn LED dài và âm tường tạo điểm nhấn cho không gian
Ô thông tầng và hệ thống cửa kính được thiết kế cẩn thận để tối ưu hóa ánh sáng tự nhiên, nhờ vậy mọi góc trong nhà đều thông thoáng, tạo cảm giác thoải mái và thư thái cho cả gia đình.
Ô thông tầng không chỉ là nơi kết nối các khu vực khác nhau mà còn là nơi để đối lưu không khí giữa các tầng
Khu vực sân thượng của nhà phố hiện đại là nơi lý tưởng cho gia đình quây quần vào những dịp đặc biệt, tạo cơ hội cho sự gắn kết. Do đó, các kiến trúc sư đã bố trí một không gian đủ rộng, tạo điều kiện cho mọi thành viên trong gia đình có thể thực hiện các sinh hoạt một cách thoải mái và ấm cúng.
Không gian nhà phố hiện đại sân thượng rộng rãi thích hợp cho những dịp tụ họp gia đình
Với BH House, các kiến trúc sư 3A Design đã tạo nên không gian sống thoải mái và ấm cúng cho các thế hệ.
CÔNG TY AKITEK VIỆT NAM
AKITEK.vn – Nét vẽ từ tâm, nâng tầm cuộc sống
Văn phòng: 63/20 Lê Lai P3. Gò Vấp, TPHCM
Hotline: 0916.961.139
Website: akitek.vn
客服
消息
收藏
下载
最近












