查看完整案例

收藏

下载

翻译
Architects:BASIL architecture
Area:206m²
Year:2023
Photographs:Evenbeeld
Manufacturers:JUNG,Jansen,Davide Groppi,Quooker,Vola
Lead Architects:Robin Van Beveren, Lorenzo Deceuninck
Structural Works:Bouwwerken Vantieghem
Structural Engineer:mouton
Category:Houses
City:Bruges
Country:Belgium
Text description provided by the architects. The street façade of this 1870s townhouse reveals nothing of the architectural interventions that were used to transform it into a contemporary home. Once the room-high door of the entrance hall is opened, you are surprised by the openness and architectural interventions. The original main volume was retained and extended with two diagonally stacked glass volumes. In the process, each intervention was accentuated in concrete or green colours. The kitchen with the void and the light-flooded central stairwell are the eye-catchers of this design, in addition to the bathroom with a view of the historic city centre of Bruges.
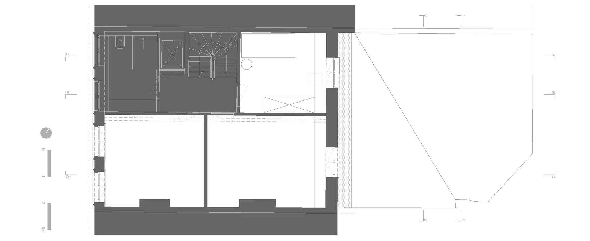
The first floor was opened up as much as possible, the authentic staircase was made visible and a void was created interacting with the ground floor to create a sunlit living space with views of the new green roof.
The triangular extension and other structural interventions were deliberately executed visibly in a concrete structure made on site. The executed beams in the main volume also refer to the original room division typical of a town house from 1870.
Also characteristic of the architectural concept are the green accents on the new interventions: exterior joinery, kitchen, staircase, switches and door handles...
Conceptually, there was a need to open up existing room structures to the maximum, as well as demolish rear building volumes. This was to generate additional openness and light, as well as a more valuable courtyard. To ensure lifelong living within this 4-storey house, a lift shaft was provided to access all levels.
To maximize light and interaction with the surroundings, the ground and first floor were transformed into living spaces. Where on the first floor, a room next to the enclosed stairwell was cut out to result in a captivating open void that interacts with all living spaces. The existing enclosed stairwell was extended with a perforated green staircase up to the top floor. In order bring daylight deep into the core of the house, a rooflight was incorporated in the ridge of the stairwell, and all unnecessary walls around it were removed.
The closed roof structure of the former attic was opened with a more accentuated dormer window which houses the bathroom and also provides fascinating views and light into the master bedroom.
The realized outdoor space is characterized by a 'floating' terrace. Surrounded by a water garden, which also acts as a rainwater buffer reflecting sunlight into the house.
The aspect of reusing and repurposing the existing main volume is already one of the pillars of sustainability and material conservation. As does the maximum on-site creation and realization of structural elements.
Project gallery
客服
消息
收藏
下载
最近










































