查看完整案例

收藏

下载
这套户型改动很大,原始的四房改成主卧大套房加次卧的格局;打开的阳台让生活区成为中心,拓宽窗外的景,打造出无框的通透感。开放的餐厨区,处处彰显着细腻的材质与直角线条的力量与平衡。完美的诠释了借助材质与空间布局的巧妙构建,达到精致主义与悠闲格调的氛围。
This apartment has undergone significant changes, with the original four bedroom layout being transformed into a pigsty large suite with a second bedroom layout; The opened balcony makes the living area the center, broadens the view outside the window, and creates a frameless transparency.
The open kitchen area showcases the power and balance of delicate materials and right angled lines everywhere. The perfect interpretation of the clever construction of materials and spatial layout, achieving an atmosphere of refinement and leisurely style.
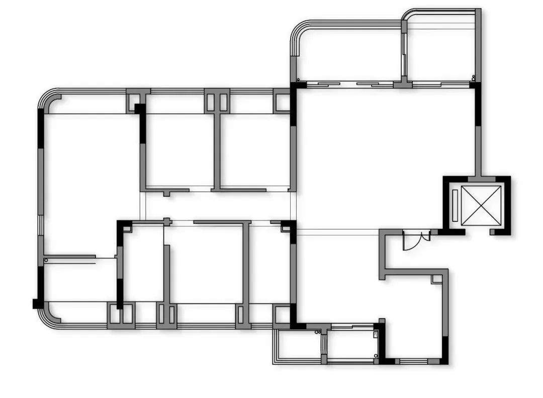
原始户型
户型改造
01生活区
living quarters
以简驭繁,设计师用最纯粹的线条勾勒空间,还原生活的轮廓。用金属、石材、木质与光影的摩擦,营造出深与浅、硬与软、冷与暖、光影流动的空间对话,让生活美学不被压缩在物体表面的无声,功能与美学的穿插,成就了独特的格调。
Simplifying complexity, designers use the purest lines to outline space and restore the contours of life. By using metal, stone, wood, and the friction of light and shadow, a spatial dialogue is created between deep and shallow, hard and soft, cold and warm, and the flow of light and shadow, allowing the aesthetic of life to not be compressed by the silence of the surface of objects. The interweaving of function and aesthetics creates a unique style.
02休憩区
Rest Area
主卧扩展走廊的空间,扩大衣帽间,增加了书房。进一步完善了空间的开放性与功能性,一字横向的空间布局,让空间尽显大气。客卧一贯的简洁,设计师通过质感肌理与色彩保持着整体一致的内敛气息。
The master bedroom has expanded the corridor space, expanded the dressing room, and added a study room. The openness and functionality of the space have been further improved, with a horizontal layout that showcases a grand atmosphere.
The guest bedroom is always simple, and the designer maintains a consistent and restrained atmosphere through texture, texture, and color.
HELLO
项目名称|龙湖·舜山府
Design
Project name|SHUNSHANFU
项目地址 | 中国·重庆
Project address | Chongqing, China
项目面积| 180㎡
Gross Built Area| 180㎡
项目主题| 简约
Project style| Modern Simplicity
设计团队 | KD室内设计事务所
DesignTeam | K.D interior design office
延伸阅读
━
KD私宅|御澜湾300㎡高级复古
KD私宅|龙湖舜山府150㎡现代简约
「TRUST」
·致 谢 业 主 ·
再次感谢如此优秀的客户通过严格筛选,最终选择信任我们KD人来帮助他们实现美好的居住梦想。
我们始终坚信,我们一定是一群能创造更多美好空间、美好生活的KD人。从过去、到现在、期未来,以原创设计,敬美好生活。让众多热爱生活之人,因恺邸生活更美好幸福。
客服
消息
收藏
下载
最近















