查看完整案例

收藏

下载

翻译
Architects:Shatotto
Area:40000m²
Year:2022
Photographs:Asif salman, Sarker Protick, SHATOTTO architecture for green living
Lead Architects:Rafiq Azam & Peter Clegg
Consultants:Shatotto Architecture for Green Living,Feilden Clegg Bradley Studios.
Structural Consultant:AKT- II, TDM
MEP Consultant:Max Fordham & EMCS
Landscape Consultant:SHATOTTO & GHORAMI.JON
Contractor:Charuta Private Limited
Category:Schools
Design Team (Shatotto):Sabrin Zinat Rahman, Kaiser Rabbani, Arafat Sarker, Sonia, Redwan, Fayez, Aliza, Shylin Islam
Design Team (Fcb Studios):Peter Clegg, Ian Taylor, Felix Hobson, Rachel Sayers, Jo Gimenez
Resident Architect:Edrish Bhuiyan Almas
Brick Consultant:Mahmudul Hasan Nahid, Mehedi Hasan Prince.
City:Dhaka
Country:Bangladesh
Text description provided by the architects. The Aga Khan Academy in Dhaka, collaboratively designed by SHATOTTO architecture for green living and Feilden Clegg Bradley Studios (FCBS), is inspired by the region's old Buddhist Mahaviharas, incorporating their historic architecture and architectural philosophy.
Set upon a 74,150 sqm land area, situated next to a busy road in Dhaka, the design focuses on creating a green lung within the dense city fabric. The intricate brick composition of the Aga Khan Academy aligns with the climatic effects of the tropical region, allowing summer winds and winter sun to enter.
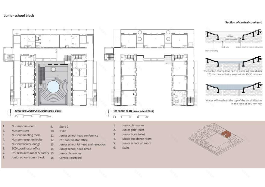
The Maidan is a genius loci at the academy's center. It is one of the key elements derived from the Buddhist Mahaviharas, reflecting the importance that even the ancient Buddhists placed on maintaining a calm and spiritual environment for their students. The peripheral courtyards act as a threshold between the large Maidan and the indoor spaces. The interiors are designed to facilitate a naturally lit and comfortable learning environment for both students and faculty.
The sensitive design of these courtyards allows for age-specific programs. For example, the senior courtyard is designed to sit under planted trees, which inspires group activities that are carried out smoothly. Instead, the assembly court, adjacent to the academic block, is consciously kept devoid of any elements but for the four trees.
As the legend suggests, Dhaka derived its name from these "Dhaak trees. This encourages a didactic approach to learning. The central court is designed to accommodate a larger gathering. An amphitheater surrounds a sand pit that holds water for a certain period during a heavy shower, allowing the children to celebrate nature.
Project gallery
客服
消息
收藏
下载
最近






























