查看完整案例

收藏

下载
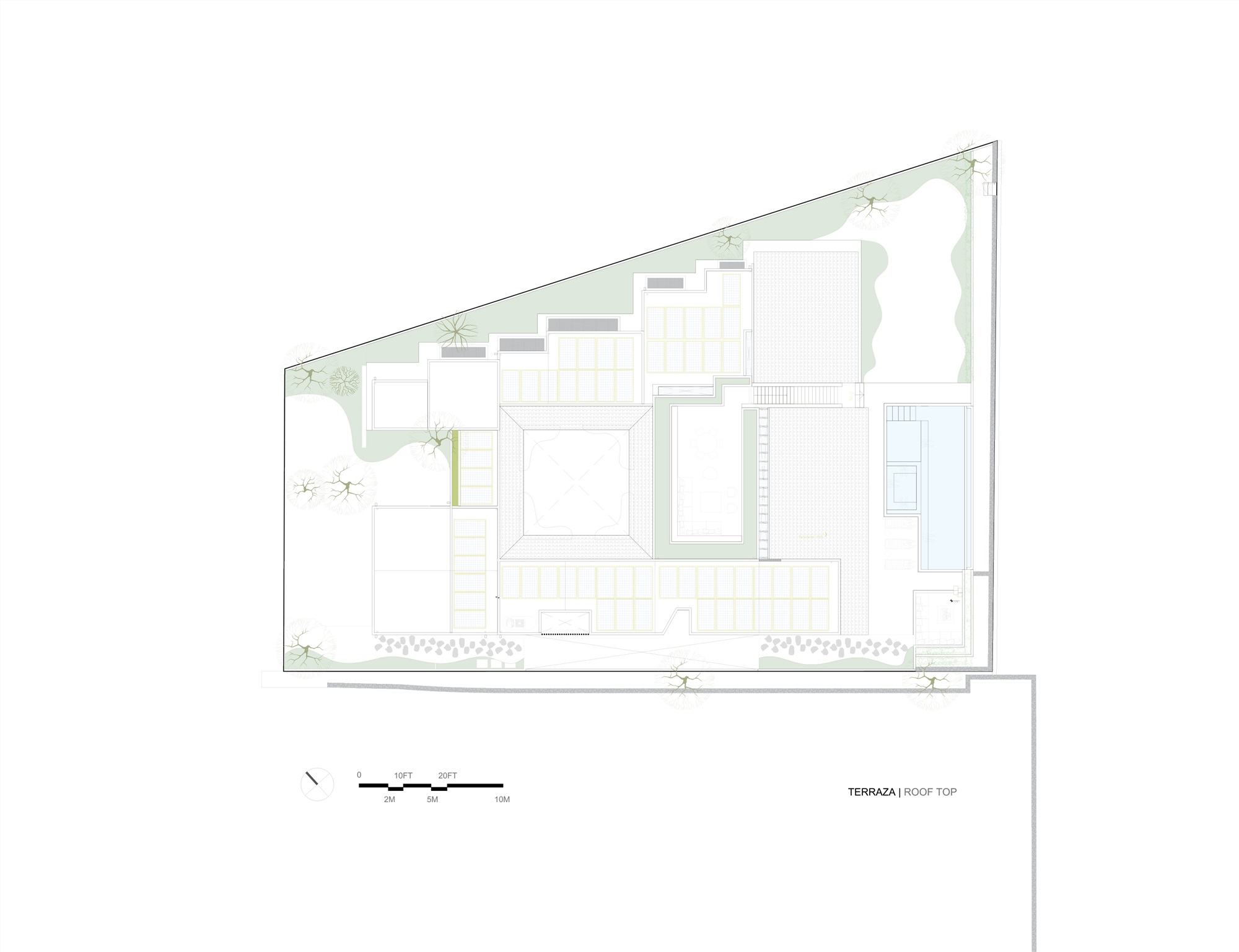
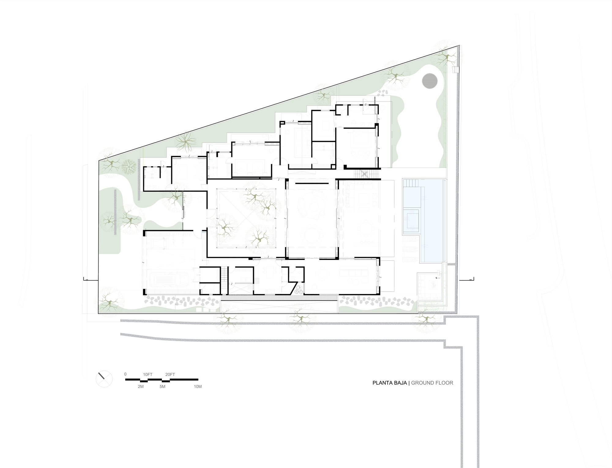
Yturbe Taller de Arquitectura:Casa Ananda 位于南下加利福尼亚州洛斯卡沃斯,这是一座对空间反思与环境对话探索的、为业主提供一个既可以休息又可以延伸自然环境的沙漠住宅。项目以中央庭院作为空间核心,将住宅内部与周边环境连接并融为一体。庭院内种植了一棵山梅树,作为住宅的情感中心,为居住者提供宁静与思考的空间,同时保持与沙漠景观的紧密联系。
Yturbe Taller de Arquitectura:Casa Ananda is a residence located in Los Cabos, Baja California Sur, designed by Yturbe Taller de Arquitectura. The project integrates introspection and connection with the surroundings, using a central courtyard as its organizational core. This space, featuring a mountain plum tree, serves as the emotional heart of the home, fostering a sense of refuge and contemplation while maintaining a close relationship with the desert landscape.
建筑采用交错的体量来定义富有节奏的空间序列,营造出光影与景框的动态互动。室内外空间的过渡经过精心设计,使人逐渐融入景观之中。庭院无缝延伸至雕塑般的水池,加强了建筑与自然之间的对话,这一设计不仅强调了住宅流畅的空间构成,还在干旱气候下提供蒸发降温的功能。
The architecture is composed of staggered volumes that generate a rhythmic spatial sequence, creating transitions between enclosed and open spaces. This design strategy allows for controlled visual connections and a dynamic interplay of light and shadow throughout the day. A sculptural pool extends from the courtyard, reinforcing the dialogue between architecture and nature while providing a cooling effect in the warm desert climate.
项目的选材经过精心挑选,选择以环境和感官为考量,以提升其生物气候适应性。天然石材、木材和纹理混凝土的运用赋予建筑稳固而持久的特质,而大面积开口设计则确保了良好的交叉通风和被动降温。住宅的朝向及空间布局最大化了遮阳效果和自然气流,减少了对机械系统的依赖。
Casa Ananda’s materiality is carefully selected to enhance its bioclimatic performance. The use of natural stone, wood, and textured concrete establishes a sense of permanence, while large openings ensure cross ventilation and passive cooling. The home’s orientation and spatial distribution maximize shading and natural airflow, reducing the need for mechanical systems.
住宅景观设计由Los Cabos Landscaping事务所的 Daniel Dixon 领导设计,进一步加强了住宅与自然环境的关系。原生植被被巧妙融入,使建筑空间与沙漠景观之间实现无缝过渡。这些沙漠植物本身就极具韧性和雕塑感,成为项目视觉和生态构成中不可或缺的元素。
The project’s landscape design, led by Daniel Dixon from The Los Cabos Landscaping, further strengthens the relationship between the residence and its environment. Native vegetation is integrated to create a seamless transition between the built space and the natural desert setting.
▽设计图纸
名称:Casa Ananda
地点:Cabo del Sol,卡波圣卢卡斯, 南下加利福尼亚州,墨西哥
完成年份:2023
项目负责人:Diego Yturbe,Yturbe Taller de Arquitectura
合作者:Gilberto Aldana、Alejandro Morales
室内设计:Alejandro Losaiga
结构工程:Alonso y Asociados
MEP Engineering: Ghay & Associates
景观:The Los Cabos Landscaping, Daniel Dixon
照明设计:G-Tec, Enrique Sordo
建筑:Kreation Studio (Sergio Peralta, Fernando Girault)
Name: Casa Ananda
Location: Cabo del Sol, Cabo San Lucas, Baja California Sur, Mexico
Completion Year: 2023
Project Lead: Diego Yturbe, Yturbe Taller de Arquitectura
Collaborators: Gilberto Aldana, Alejandro Morales
Interior Design: Alejandro Losaiga
Structural Engineering: Alonso y Asociados
MEP Engineering: Ghay & Asociados
Landscape: The Los Cabos Landscaping, Daniel Dixon
Lighting Design: G-Tec, Enrique Sordo
Construction: Kreation Studio (Sergio Peralta, Fernando Girault)
“ 这是一座从景观中汲取灵感,进行干预设计的庭院住宅。”
客服
消息
收藏
下载
最近























