查看完整案例

收藏

下载

翻译
Architects:Studio Ceravolo
Area:437m²
Year:2024
Photographs:Sean Fennessy
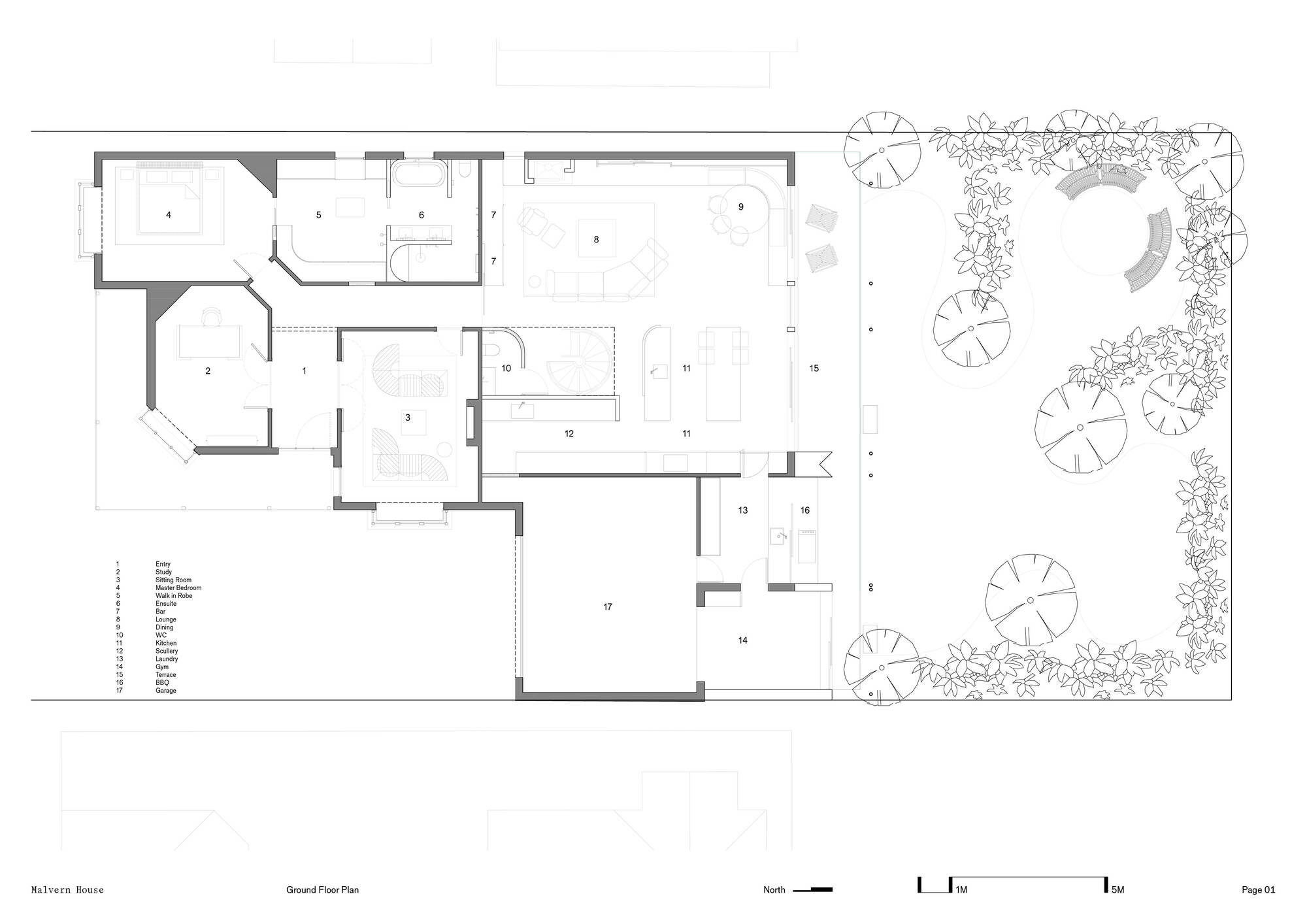
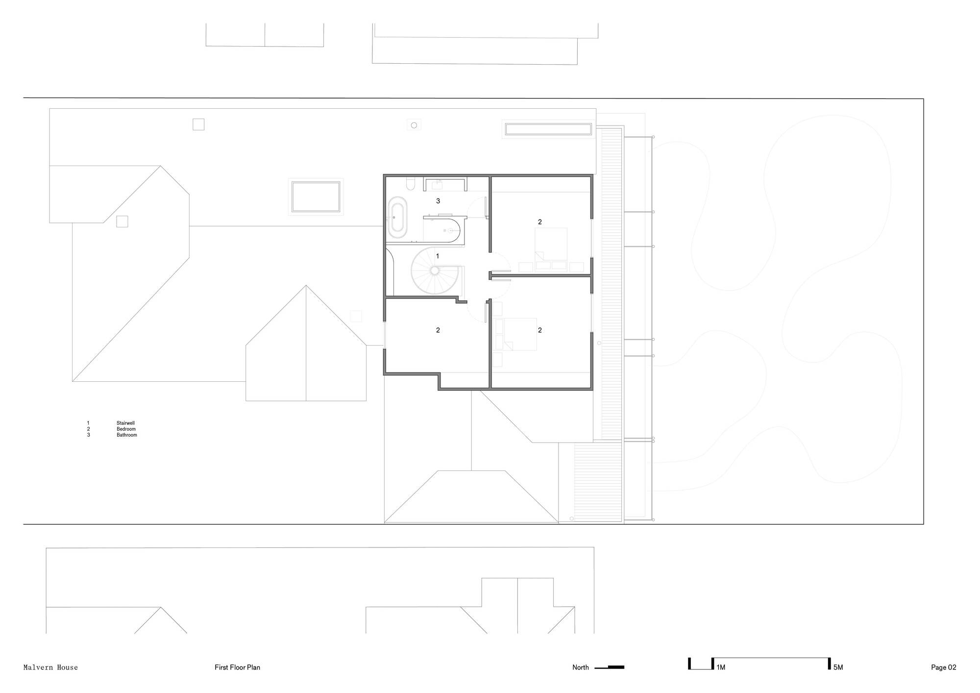
Text description provided by the architects. Malvern House is an alterations and interior project which embraces the site's existing and distinct features - well-proportioned spaces, delicate federation detailing, and a tranquil, established north-facing garden. The house is located on a well-scaled, beautiful tree-lined street in Malvern, Melbourne, Australia. The area is well known for its stunning lineup of well-preserved, Federation-era single dwelling architecture.
Studio Ceravolo was tasked with the brief to re-imagine the clients' long-standing family home as a place that marries intuitively with a new chapter in their lives. With their adult children moving out, the spaces needed to adapt to a luxurious, restful, and sensory way of living.
Prioritising ritual and routine, Malvern House unfolds as a series of spaces which sync to the owners' rhythm of daily life, harmonising its traditional essence with a relaxed format and fostering an intuitive and essential connection to the exterior.
The heritage front is stripped back to reveal quirky federation details and impeccable proportions, these features are enhanced through the layered use of colour and a hierarchy of physical elements – decorative lighting, custom joinery, and soft loose furniture. The garden-interfacing rear is experienced as a series of self-contained yet interconnecting zones where joinery elements provide suggestive function and sufficient spatial definition within the context of a larger, cohesive space connected to the exterior. The design works effortlessly to create a heightening of everyday moments: a gym and laundry workspace which overlook lush greenery, a walk-in shower flooded with sunlight via a 6m high skylight above, a front sitting room dedicated to stillness and sanctuary, places for decompression, for contemplation, and for gathering.
Taking full advantage of the garden's changing visual effects across the seasons, new full-height glazing and pergola have been integrated into the north façade, adhering to passive solar design principles whilst forging a liminal space between the interior and exterior.
Considered curation of finishes adds to the experiential layering of the project. Warm tones and textures help to create a calm and serene environment, while colour is used with nuance – a soft yellow tiled bench seat, a beautiful glass mosaic powder room with a nutty gloss ceiling and a contrasting blue mirror, color-blocked rugs throughout, paired with soft greens, pinks, and gold. As each space evolves into a unique colour palette, there is an underlying colour link between adjacent areas that creates a sense of cohesion.
Eschewing archetypal timber flooring, the ground floor comprises small-format stone pavers which create a unifying cohesion underpinned by materiality and a literal grounding effect on the occupants from the moment they awaken. The finished project is a home that effortlessly creates a heightening of everyday moments, a home that is cohesive, calming, and grounded in ritual.
Project gallery
客服
消息
收藏
下载
最近





































