查看完整案例

收藏

下载

翻译
Tòa nhà Giao dịch Năng lượng Hải Nam, tọa lạc tại Khu Jiangdong Mới, Hải Khẩu, là biểu tượng cho kiến trúc xanh tiên tiến, kết hợp công nghệ hiện đại và thiên nhiên. Với thiết kế mặt tiền hai lớp tiết kiệm năng lượng và khu vườn trên không độc đáo, công trình khẳng định cam kết phát triển bền vững của Yankuang Group.
Thông tin dự án:
Tên công trình: Tòa nhà Giao dịch năng lượng Hải Nam
Địa chỉ: Haikou, Trung Quốc
Diện tích khu đất (m2): 65,726 m²
Năm hoàn thành: 2022
Tọa lạc tại khu Jiangdong Mới – trung tâm phát triển mới về công nghiệp, tài chính và dân cư tại ngoại ô thành phố Hải Khẩu, tỉnh Hải Nam (Trung Quốc), Tòa nhà Giao dịch Năng lượng Hải Nam là công trình kiến trúc nổi bật, thể hiện tầm nhìn hiện đại và chiến lược phát triển dài hạn. Được đầu tư bởi Yankuang Group – tập đoàn hàng đầu trong lĩnh vực khai thác mỏ, chế biến than cao cấp và logistics, công trình không chỉ là trụ sở giao dịch năng lượng, mà còn là một trong những dự án kiến trúc đầu tiên định hình diện mạo Khu Jiangdong Mới. Với thiết kế mang tính biểu tượng, tòa nhà mở đường cho sự hiện diện của nhiều doanh nghiệp lớn, góp phần kiến tạo môi trường đô thị hiện đại và bền vững.
Toàn cảnh tòa nhà với thiết kế hộp lơ lửng hiện đại, nổi bật giữa khu đô thị mới Jiangdong
Với tổng thể hình khối kiến trúc mang tính sắp đặt chiến lược, công trình không chỉ đáp ứng công năng của một trung tâm giao dịch năng lượng, mà còn đóng vai trò như một điểm nhấn thị giác trong khu vực đang phát triển nhanh chóng. Các khoảng đệm không gian giữa các khối hộp giúp tăng cường khả năng thông gió tự nhiên và ánh sáng ban ngày – yếu tố quan trọng trong kiến trúc bền vững. Bên cạnh đó, các khu vườn trên không được tích hợp như một phần của chiến lược làm mát thụ động, giúp điều hòa vi khí hậu và tăng cảm giác gần gũi với thiên nhiên. Thiết kế kiến trúc thông minh này là minh chứng cho xu hướng đô thị hóa mới, nơi kiến trúc hiện đại không chỉ phục vụ nhu cầu sử dụng, mà còn góp phần định hình trải nghiệm sống và làm việc trong không gian đô thị đương đại.
Lối vào chính với mặt tiền kính trong suốt, bao quanh bởi cảnh quan xanh tự nhiên
Sự kết hợp tinh tế giữa cây xanh và hình khối trong kiến trúc của Tòa nhà Giao dịch Năng lượng Hải Nam không chỉ tạo ra một không gian làm việc thân thiện mà còn đóng vai trò như lá phổi xanh giữa đô thị hiện đại. Thiết kế xoay vòng các khu vườn trên không không chỉ tăng hiệu quả thẩm mỹ mà còn tối ưu hóa thông gió chéo, làm giảm sự phụ thuộc vào hệ thống làm mát nhân tạo. Các ban công cong mềm mại cùng thảm thực vật rũ xuống tạo hiệu ứng chuyển tiếp nhẹ nhàng giữa các tầng, đồng thời phá vỡ sự cứng nhắc thường thấy trong kiến trúc văn phòng truyền thống. Chính những điểm nhấn này đã giúp công trình trở thành biểu tượng mới cho một xu hướng kiến trúc xanh, nhấn mạnh vai trò của thiết kế trong việc nâng cao sức khỏe thể chất và tinh thần cho con người.
Sảnh trung tâm cao rộng, các ban công uốn lượn kết hợp cây xanh tạo không gian sống động
Tại tòa nhà Giao dịch Năng lượng Hải Nam, một bầu không khí thoải mái được tạo ra trong sân nhờ vào việc áp dụng các kỹ thuật che nắng và thông gió hiệu quả tại khu vực sảnh cao 75 mét. Bằng cách tận dụng sự khác biệt về áp suất không khí, nhiệt độ và mật độ ở các tầng khác nhau, không khí mới được hút vào và đẩy không khí ứ đọng lên trên để thoát ra qua khe hở trên mái. Quá trình này đảm bảo môi trường thông thoáng và duy trì nhiệt độ dễ chịu cho những người sử dụng tòa nhà.
Không gian làm việc thoáng đãng với ban công đa tầng và ánh sáng tự nhiên tràn ngập
Một đặc điểm nổi bật của công trình là thiết kế mặt tiền hai lớp hiệu quả về năng lượng, sử dụng kính trong suốt cao cấp. Thiết kế này không chỉ mang lại cho nhân viên văn phòng tầm nhìn không bị che khuất ra bờ biển và khu trung tâm thành phố mà còn làm nổi bật cấu trúc sạch sẽ, thanh mảnh và vững chắc của tòa nhà từ bên ngoài. Các khu vườn trên không rộng rãi, được bố trí mỗi bốn tầng một lần mà không bị gián đoạn bởi cột, cho phép bốn tầng trên cùng nhô ra xa đến 14 mét. Các dầm khổng lồ đóng vai trò quan trọng trong việc giảm thiểu sự uốn cong ngang và củng cố khả năng chịu động đất của tòa nhà, mang lại một giải pháp kết cấu thông minh cho Tòa nhà Giao dịch Năng lượng Hải Nam.
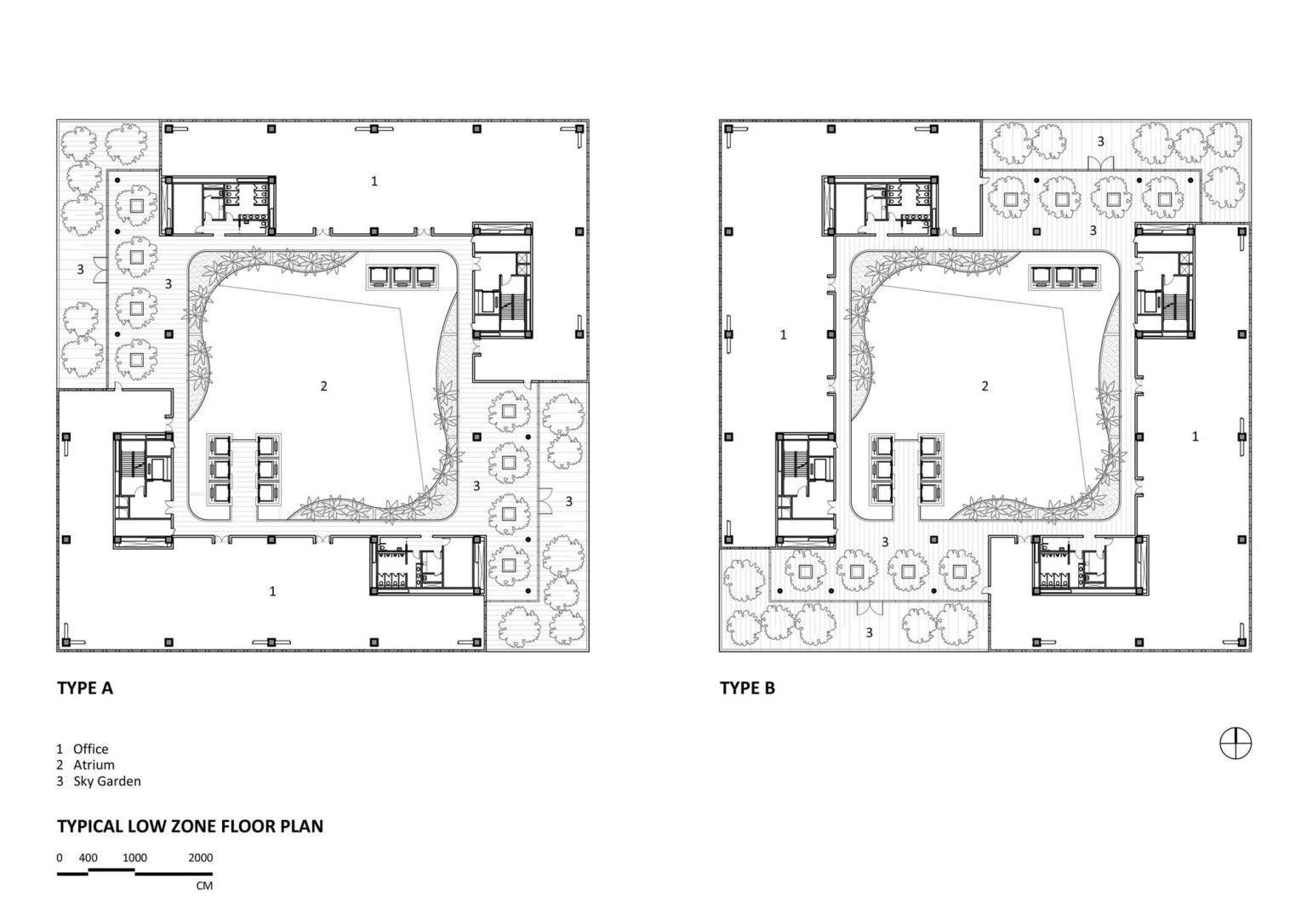
Bản vẽ mặt bằng tầng điển hình tối ưu hóa không gian sử dụng và kết nối hiệu quả
Ánh sáng tự nhiên lan tỏa khắp mặt tiền hai lớp của Tòa nhà Giao dịch Năng lượng Hải Nam, giúp giảm thiểu sự phụ thuộc vào ánh sáng nhân tạo. Các rèm cửa điện tử được đặt giữa các lớp kính trong và ngoài, có thể điều chỉnh động nhờ các cảm biến kết nối với hệ thống theo dõi mặt trời. Sự kết hợp này cùng với hệ thống điều khiển ánh sáng thông minh không chỉ nâng cao sự thoải mái trong nhà mà còn đạt được mục tiêu tiết kiệm năng lượng bằng cách giảm bớt sự phụ thuộc vào hệ thống điều hòa không khí. Ngoài ra, thiết kế mái dốc và mặt tiền lệch tầng chiến lược ở khoảng cách bốn tầng cho phép ánh sáng tự nhiên chiếu rọi vào các khu vườn trên không và không gian văn phòng.
Khu vườn trên không ở các tầng cao, thiết kế đón ánh sáng và gió tự nhiên
Đồng thời, những tính năng này cung cấp bóng mát hiệu quả cho các hành lang và sảnh, giúp ngăn ngừa việc làm nóng quá mức trong khí hậu ấm áp của Hải Nam. Lấy cảm hứng từ các ngôi nhà truyền thống của vùng Giang Nam, thiết kế mái dốc mô phỏng con đường nước mưa chảy xuống các mặt nghiêng từ mọi phía và tụ lại trong một sân vườn vuông phía dưới. Đây là biểu tượng của dòng chảy và sự giữ lại vận may trong gia đình hoặc bối cảnh công ty. Những chiến lược thiết kế tinh tế này không chỉ phù hợp với mục tiêu bền vững của tòa nhà mà còn đưa Tòa nhà Giao dịch Năng lượng Hải Nam trở thành một mô hình điển hình trong lĩnh vực kiến trúc xanh.
Tầm nhìn toàn cảnh từ khu vực kính trong suốt, kết nối với bờ biển và thành phố
CÔNG TY AKITEK VIỆT NAM
AKITEK.vn – Nét vẽ từ tâm, nâng tầm cuộc sống
Văn phòng: 63/20 Lê Lai P3. Gò Vấp, TPHCM
Hotline: 0916.961.139
Website: akitek.vn
客服
消息
收藏
下载
最近









