查看完整案例

收藏

下载

翻译
Architects:Poiesis Architecture
Area:347m²
Year:2022
Photographs:Jeremy D Mathers
Manufacturers:Accoya,Artemide,Guardian Glass,Limestone,Lumentruss,Mutina,NBK North America,Shueco,VanAir
Lead Architect:Gregory Rubin
Civil Consultants:Urban Watershed Group
Structural Engineering:Moses Structural Engineers
Planting:Living City Native Gardens
Stonework:J. Garfield Thompson Landscape
Construction Management:Derek Nicholson Construction Inc.
Category:Houses,Sustainability
Architecture Team:J. Alejandro Lopez, Taylor Charbonneau, Alex Wilms
Passive House Certification:Passive House Institute US
Millworks:Scavolini Toronto
City:Toronto
Country:Canada
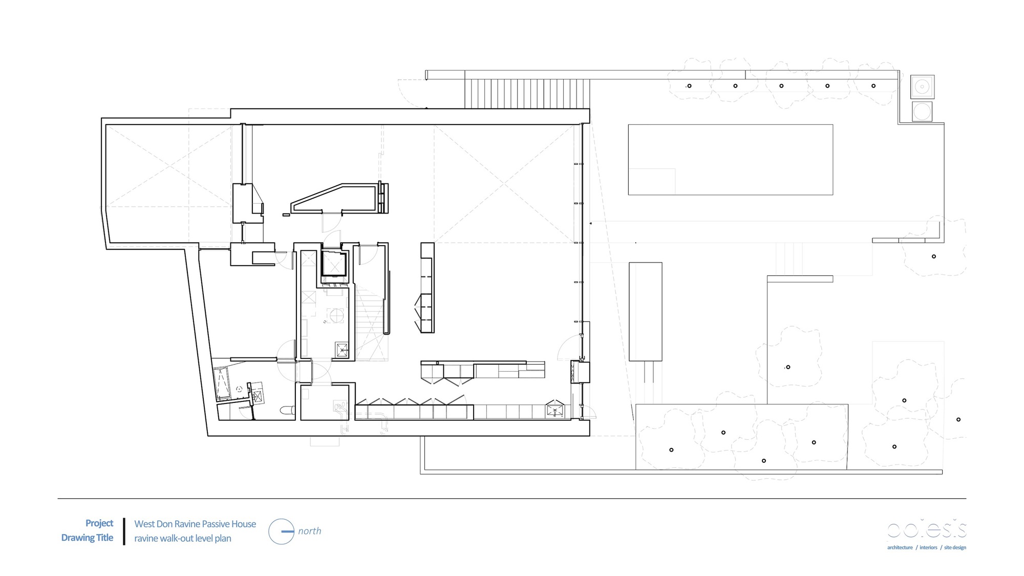
Text description provided by the architects. Set along the wooded edge of Toronto's Don Valley, the West Don Ravine Passive House is the city's first residence to be certified under PHIUS+ (Passive House Institute US). Designed by Poiesis Architecture for the architect's parents, the house replaces a former three-storey structure with a resilient, fully electric bungalow organized across two levels: a discreet entry from the street above, and a generous walkout floor below, oriented to the forested ravine.
The design embraces Passive House principles from the outset, achieving super-insulated, airtight construction with minimal energy loads. Driven by a desire for climate resilience following the 2013 ice storm, the owners sought a durable, low-maintenance home that would support aging in place while remaining deeply connected to its landscape. With its tight envelope, high-performance windows, and strategic glazing, the house reduces heating and cooling energy by over 90%, enabling all-electric operation powered by renewables.
At the centre of the plan, a sunken garden draws light from south to north, anchoring the home's circulation and linking the two floors. To the north, a full-height glass façade opens to the ravine through a series of outdoor terraces, while a terracotta-screened mezzanine defines the threshold between private and public spaces above. Interior materials reflect the home's environmental ethic: terracotta, local limestone, exposed concrete, and reclaimed pine frame a series of simple, well-lit rooms that prioritize comfort, acoustics, and indoor air quality.
The site design restores and enhances the native ecology of the ravine slope. Working within ecological setback limits and the footprint of the original foundation, the team replaced hard landscaping with native perennials and understory plantings suited to the site's microclimate. This strategy, developed in collaboration with local ecologists, resulted in a naturalized, no-guardrail descent into the ravine — an extension of the home's seamless relationship to its setting.
The project also became a testing ground for the practice itself. In navigating the Passive House certification process, Poiesis assembled a technical team focused on envelope design, ventilation, and shading systems. Unexpected delays during COVID-19 became an opportunity to deepen research into local biodiversity and urban forest conservation. The resulting stewardship program now supports ongoing community learning along the ravine.
For Poiesis Architecture, the project embodies a broader ethos: that high-performance homes can be elegant, contextual, and deeply rooted in place. West Don Ravine Passive House is both a family home and a prototype for resilient residential design in a changing climate.
Project gallery
客服
消息
收藏
下载
最近































