查看完整案例

收藏

下载

翻译
Architects:ROOM+ Design & Build
Area:360m²
Year:2025
Photographs:Sonmeo Nguyen Art Studio
Lead Architects:Vinh Phuc Ta
Category:Houses
Design Team:Bao Loc Hoang, Tan Trung Ta, Duc Truong Nguyen
Technical Team:Ngoc Phi Duong, Trung Diep Dat
Lead Team:Ngoc Bich Phuong Thai
Country:Vietnam
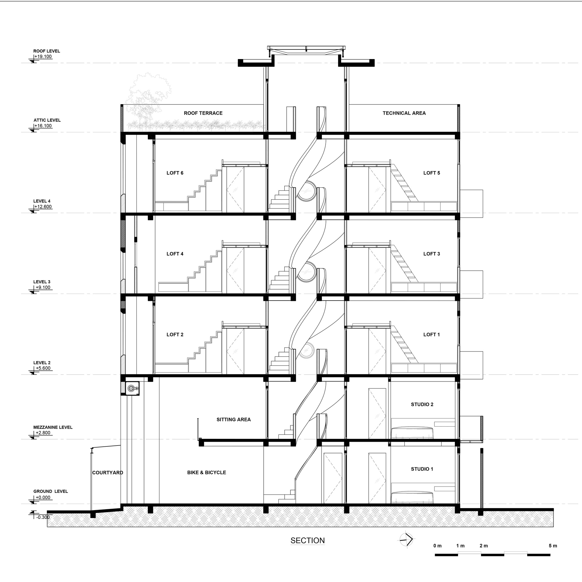
Text description provided by the architects. In recent years, housing prices in Vietnam's big cities have been rocketing and have quickly become unaffordable to most young, average-income singles and couples, who have no choice but to live in small, poorly-designed and uncomfortable rental rooms crammed in typical tube-houses. As a result, improving the living quality of the occupants while ensuring financial affordability has been a critical dual objective of designing inner-city rental co-living projects. Cloud House is a boutique co-living building in a busy urban area of Ho Chi Minh City. The 70 square-meter site is located in a 4-meter-wide alleyway and surrounded by many townhouses, which are varied in sizes and heights. The design proposal is driven by three interconnected concepts: contemporary loft-style private suites, multifunctional semi-public spaces, and a glimpse of nature within a high-density urban context.
Firstly, six loft-style suites and two standard studios are neatly arranged within the relatively small footprint of the site. A minimal loft space is placed on top of the entry area and bathroom of each rental suite to maximize the spatial use of the 3.5-meter floor-to-ceiling height and deliver both spaciousness and coziness to the main living space. A neutral material and color palette is proposed, while smart-designed and multi-functional furniture such as seating benches, wardrobes, and storage cabinets are harmoniously combined with secondary structural elements, including minimal wooden staircases and light-weight floors made of steel frames and standard cement boards.
Secondly, all shared semi-public spaces in the building are carefully designed to provide the occupants with both convenience and amusement. The courtyard and half of the ground floor are used for bike and bicycle parking, a spacious spiral staircase nicely accommodates the central area of the building, and acts as not only an interesting daily circulation route but also an informal and intimate interactive space. A common sitting area at the mezzanine level and the rooftop terrace are also pleasantly shared by the occupants. Those communal spaces create a sense of community within the group of people who live under one roof.
Finally, a series of circular and cloud-shaped openings and windows on both front and rear facades, as well as the rooftop skylight, engage desirable views, daylight, and natural ventilation while also ensuring privacy and comfort. Moreover, the interplay between solid and void, light and shadow created by these unique openings and curvilinear interior spaces of Cloud House strongly implies a glimpse of imaginative nature, which evokes a sense of wonder and let the occupants experience a dynamic feeling as they are wandering between the ever-changing clouds beyond the hustle and bustle of the city.
Project gallery
客服
消息
收藏
下载
最近



























