查看完整案例

收藏

下载
南京航空航天大学天目湖校区-学生生活区
01
项目概况PROJECT OVERVIEW__
南京航空航天大学天目湖校区-学生生活区,包括了住宿、食堂、阅览、健身和零售等多种生活功能,是一个高度集约化的大学生活区。
项目总面积91076㎡,建筑地上6层,建筑高度23.2m。项目以步行系统、江南校园文脉、书院式管理系统和高品质居住要求等现实难点和条件出发,通过江南天街、湖石游园、立体书院、全阳光室等设计方法和理念,力图创造出一个提供大学师生全天候方便使用同时又独具江南特色的高品质大学生活区。
02
设计理念DESIGN CONCEPT__
如何解决大学生活区步行系统的高效性、人车分流、风雨无阻?
「 江南天街——借鉴江南水街做法,联动学习和生活各区 」
江南水乡的一大特点是通过水街水巷,串联城市的各个部分,让人的行为顺水而动。在设计生活区步行系统时,借鉴水街巷的做法,提出江南天街的理念,把步行系统凌置于二层,实现人车分流。同时,二层步行系统从教学楼出发,以食堂为中间节点,然后生长到各栋宿舍单体,实现师生日常风雨无阻使用。
“江南天街”分析图
校园以江南水乡作为主题打造,学生生活区如何体现?
「 湖石游园——以小溪流水的太湖洞石为原型,创造多层次的交流场所 」
建筑首层以太湖洞石为原型的体块,赋予学习与生活的多种功能。以小溪流水为主题的园林景观,引导着学生们在各个洞石之间生活与穿行。体块与体块之间形成曲径通幽的空间,创造多层次的交流场所。
“湖石游园”分析图
学校采用书院式管理,如何在有限用地内容纳非生活功能?
「 立体书院——垂直方向叠加功能,多义空间灵活容纳生活与学习 」
学校采用书院式管理,项目把宿舍楼进行了垂直分区,二层以上为宿舍功能,而首层布置大量多义空间,弥补了传统学生宿舍的功能单一。首层多义空间灵活多变,既可以是生活上的超市、快递、健身与咖啡厅,也可以是学习上的阅览室、自习室和研讨室,学生在一栋宿舍内可完成生活与学习的多种功能,实现立体书院。
“立体书院”分析图
学校提出高品质生活要求,如何在户型上创新体现?
「全阳光室,创新户型,两户水平融合,实现各居室整面采光 」
传统宿舍的居室户型主要有阳台式和酒店式两种,阳台式把卫生间布置在阳台不利于采光,酒店式把卫生间布置在走廊不利于通风。项目创新性地把两户水平融合,把卫生间布置在两户之间共用,既能满足居室的整面采光,又实现了卫生间良好的通风采光。
“全阳光室”分析图
03 设计图纸DRAWINGS__
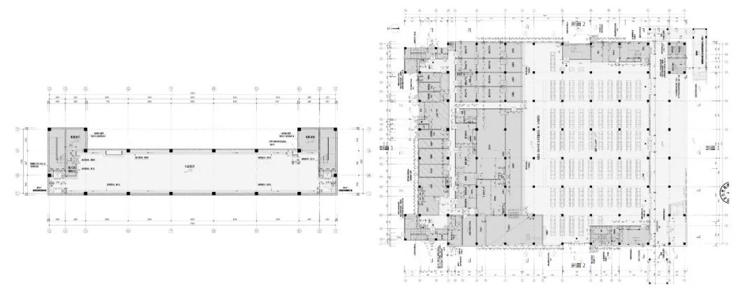
饭堂负一层、一层平面图 CANTEEN BASEMENT FLOOR & FIRST FLOOR PLAN
饭堂二层、三层平面图 CANTEEN SECOND FLOOR &THIRD FLOOR PLAN
饭堂顶层平面图 CANTEEN TOP FLOOR PLAN
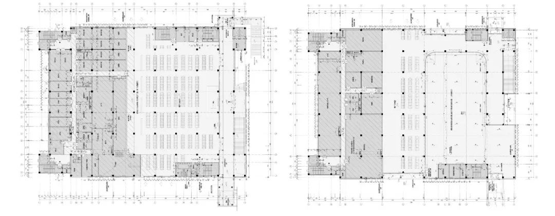
F1-5学生宿舍一层、二层平面图 F1-5 DORMITORY FIRST FLOOR & SECOND FLOOR PLAN
F1-5学生宿舍三层、四层平面图 F1-5 DORMITORY THIRD FLOOR & FOURTH FLOOR PLAN
F1-5学生宿舍五层、六层平面图 F1-5 DORMITORY FIFTH FLOOR & SIXTH FLOOR PLAN
F2-6学生宿舍一层、二层平面图 F2-6 DORMITORY FIRST FLOOR & SECOND FLOOR PLAN
F2-6学生宿舍三层、四层平面图 F2-6 DORMITORY THIRD FLOOR & FOURTH FLOOR PLAN
F2-6学生宿舍五层、六层平面图 F2-6 DORMITORY FIFTH FLOOR & SIXTH FLOOR PLAN
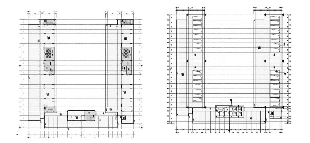
F2-6学生宿舍七层、顶层平面图 F2-6 DORMITORY SEVENTH FLOOR & TOP FLOOR PLAN
F3-7学生宿舍一层、二层平面图 F3-7 DORMITORY FIRST FLOOR & SECOND FLOOR PLAN
F3-7学生宿舍三层、四层平面图 F3-7 DORMITORY THIRD FLOOR & FOURTH FLOOR PLAN
F3-7学生宿舍五层、六层平面图 F2-6 DORMITORY FIFTH FLOOR & SIXTH FLOOR PLAN
F3-7学生宿舍七层、顶层平面图 F2-6 DORMITORY SEVENTH FLOOR & TOP FLOOR PLAN
▎项目档案项目名称:南京航空航天大学天目湖校区-学生生活区项目位置:江苏省溧阳市总建筑面积:91076㎡设计时间:2019.10-2020.3竣工时间:2021.6设计单位:华南理工大学建筑设计研究院有限公司合作单位:江苏新世纪现代建筑设计有限公司项目总负责:杨勐建筑:李晖浩、林沁茹、高浩、朱晓平、刘凯、许伟荣、祖延龙、李斌、冯鑫涛、贾浩、方愉昕、郑玉兰、甘崇友、管云杰、戴燕、潘城结构:管立荣、黄益骏给排水:陈浩杰▎项目获奖2023年度教育部优秀勘察设计奖建筑设计奖 三等奖
客服
消息
收藏
下载
最近
































