查看完整案例

收藏

下载
位于深圳宝安的旧宿舍楼翻新的办公室改造
1F前台
1F平面布置图
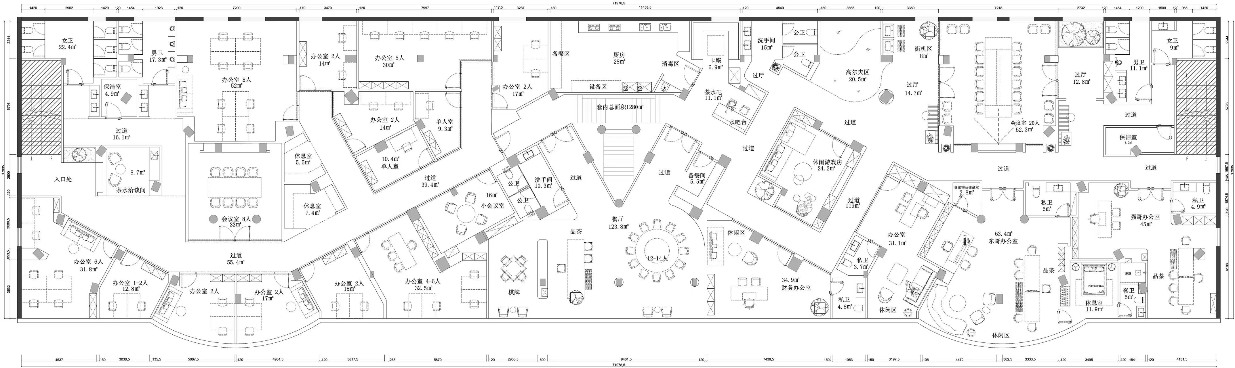
2F平面布置图
———————————————————
空间对比图
空间对比图
———————————————————
过道
走廊
高尔夫球区
水吧台
休闲游戏房
餐厅
董事长办公室
副董办公室
会议室
财务办公室
独立办公室
餐厅卫生间
公用卫生间
———————————————————
项目名称:旧筑新生
设计机构:JF DESIGN 峻峰设计工作室
项目地址:深圳宝安
项目面积:2300㎡
项目设计:何俊锋、马嘉俊
视觉表现:陈越辉
客服
消息
收藏
下载
最近


























