查看完整案例

收藏

下载
拉法耶文化艺术中心的前身是租界时代位于辣斐德路(今复兴中路323号,1943年前旧名),由匈牙利建筑师拉斯洛·邬达克(Laszlo.Hudec)设计的辣斐大戏院。历史上的辣斐大戏院于1933年落成,经历过多次改造及一次拆除重建(2006 - 2009)。本次改造对象拉法耶艺术设计中心(Lafayette Art&Design Center)于2014年在2009年重建基础上改造落成,并尝试恢复辣斐大戏院造型。2024年,数字艺术机构ALIGHT光禹莱特的入驻触发了这座建筑的数字转型,旨在融入数字科技与当代表达,以更具品牌特色的空间和更具辨识度的建筑形象,赋予建筑新的文化生命力,打造一座融合科技、文化、艺术的沉浸式文化综合体,并更名为拉法耶文化艺术中心(Lafayette Culture Space)。
Lafayette Culture Space traces its origins to the Lafayette Cinema, designed by Laszlo Hudec and completed in 1933. Over its history, the building underwent multiple functional transformations and a complete reconstruction (2006-2009). The current renovation subject, Lafayette Art & Design Center, was established in 2014 based on the 2009 reconstruction, with efforts to revive the architectural form of the original Lafayette Cinema. In 2024, the arrival of digital art organization ALIGHT catalyzed the building’s digital transformation, integrating digital technology and contemporary expression. Through brand-centric spatial design and a more distinctive architectural identity, the revitalized building gains renewed cultural vitality, emerging as an immersive cultural complex blending technology, culture, and art. It has since been rebranded as Lafayette Culture Space.
▼拉法耶街景,Lafayette street view ©张雪晨
▼拉法耶艺术设计中心原状,Lafayette Art&Design Center ©DONG建筑影像
拉法耶艺术中心地处新天地文化艺术活跃区,周边商业氛围活跃,艺术生活气息浓厚,是文化与商业的交融之地。虽然拉法耶艺术设计中心按照邬达克的辣斐大戏院样式进行了重建修复,但无论是体量、细部还是结构上都存在较大的缺憾和差异。在新天地区域,其功能与形象已经难以满足一个现代文化艺术中心的需求。建筑正立面沿街,三面环楼。受到周围条件限制,东、西、南侧立面难以进行改造,立面改造范围主要位于临街面。由于经历过重建,其本身也不属于历史保护建筑,所以业主希望对拉法耶进行一次整体的形象与功能改造,使其与数字技术相结合,这才有了拉法耶这次数字转型的机遇。
▼历史信息,History information©之外建筑
▼拉法耶历史变动,Lafayette historic transformation©之外建筑
▼建筑周边,Building surroundings©之外建筑
▼改造前正立面,Original front facade©之外建筑
Lafayette is located in the vibrant cultural and artistic hub of Xintiandi, surrounded by a dynamic commercial environment and artistic atmosphere.While the Lafayette Art and Design Center was reconstructed according to the original Lafayette Cinema, it falls short in capturing the essence of the historic design in terms of scale, architectural detailing, and structural integrity.This aesthetic mediocrity, coupled with functional limitations, renders the venue inadequate as a contemporary cultural center. The building’s main facade faces the street with three sides enclosed by neighboring buildings. Due to spatial constraints, renovations to the east, west, and south facades are restricted, leaving the street-front facade as the primary focus for architectural renovation.
▼场地位置,Site location©DONG建筑影像
拉法耶的数字转型主要体现在外立面的数字化改造与建筑内部的沉浸式展览空间营造。▼拉法耶模型渲染,Lafayette rendering ©之外建筑
The digital transformation primarily manifests in two aspects: the digital renovation of the facade and the creation of immersive exhibition spaces within the building.
▼改造后鸟瞰 ,Birds-view after renovation ©DONG建筑影像
立面改造 – 城市剧场中的光影面具
Facade Renovation – A Light and Shadow Mask in the Urban Theatre
立面改造以“城市剧场中的光影面具”为概念,采用折叠穿孔铝板传递数字信息构建多媒体立面,在夜晚呈现流动的光影信息。它既是一张面具,也是一块幕布。设计将传统立面媒介转化为数字媒介,使建筑在昼夜更迭间实现历史原型与数字媒介的双重表演。
▼立面改造,Facade renovation process©之外建筑
The facade renovation adopts the concept of “A Light and Shadow Mask in the Urban Theater”, utilizing folded perforated aluminum panels to create a multimedia facade that conveys digital information. At night, flowing digital information are displayed. The facade serves both as a “mask” and a “stage curtain”. The design transforms traditional facade elements into a digital medium, enabling the architecture to perform a dual narrative of historical form and digital expression as day shifts to night.
▼正立面(日夜),Front facade (day&night) ©之外建筑
▼正立面(夜景),Front facade (night time) ©DONG建筑影像
▼立面(屏幕模式),Facade (Screen Mode) ©张雪晨
业主ALIGHT光禹莱特是一家聚焦数字艺术与文化的企业,希望以数字技术重塑拉法耶的形象。对外立面的改造遵循保留拉法耶原有体量的原则,以多媒体立面的形式为其戴上一张“光影面具“。由于拉法耶的正对面是住宅楼,不能够以LED灯或屏幕的形式直接展现,所以最终选择以穿孔铝板加亚克力的方式背投led点阵灯,使影像能够在夜间透出孔洞呈现出来。
▼面具,Facade mask©之外建筑
The client, ALIGHT, a company dedicated to digital art and culture, aimed to redefine Lafayette’s identity through digital technology. The renovation adheres to the principle of preserving the building’s original massing, adding an outer layer referred to as a “mask”. This mask functions like a screen, projecting dynamic visual content as the multimedia facade. Due to the residential buildings directly opposite Lafayette, direct use of LED lights or conventional screens was prohibited. The solution combines perforated aluminum panels with acrylic backing to house rear-projected LED dot matrix lights. At night, light illuminates through the perforations, allowing subtle yet vivid projections.
▼正立面,Front facade©DONG建筑影像
▼正立面,Front facade©张雪晨
▼正立面(屏幕模式),Front facade(Screen Mode) ©张雪晨
▼改造后正立面(屏幕模式),Renovated front facade(Screen Mode) ©DONG建筑影像
拉法耶的新面具在城市这恒的剧场中也许是临时的,也许有一天她会摘下舞会的面具,重归历史面貌。
Lafayette’s new mask maybe ephemeral in the eternal urban theater. One day, she may shed her mask and return to the historical appearance.
▼街角立面(亮光),Street facade(illuminated)©DONG建筑影像
▼街角立面,Street facade©DONG建筑影像
▼街角立面(亮光),Street facade(illuminated)©DONG建筑影像
▼入口,Entrance©DONG建筑影像
流动的条纹
The flowing streaks
“…时间上有美丽的条纹…把时间涂满全身…”刘慈欣《三体》中的歌者将时间凝固。
“…Time wears beautiful streaks… painting its body with time…” —Adapted from the hymn of the Singer in Liu Cixin’s The Three-Body Problem, where time is crystallized into tangible form.
▼立面光影,Illuminated Facade©DONG建筑影像
▼立面光影,Illuminated Facade©DONG建筑影像
相邻两个折面之间的孔洞流向呈折角,以波浪形的流向覆盖整个立面,呈现流动的态势。如同时间的条纹,涂满光影变幻的立面。
▼穿孔板孔洞条纹,Perforated panel design©之外建筑
▼穿孔板灯箱单元,Perforated panel lighting unit©之外建筑
The perforations between adjacent folded panels cascade in angular waves, sweeping across the facade in a rhythmic flow. Like streaks of time, they cloak the surface in ever-shifting plays of light and shadow.
▼穿孔板细部,Perforated panel detail ©DONG建筑影像
▼立面光影,Illuminated Facade©DONG建筑影像
室内改造- 沉浸式展览中的观游之径
Interior Renovation – A Viewing Path through Immersive Exhibitions
建筑改造后将以沉浸式展览为核心功能,而连接各沉浸式展厅的公共空间与流线就成为了观览的重要组成部分,也是本次改造的重点。▼原建筑室内,Original Interior Space©之外建筑
The renovated building will center around immersive exhibitions, with its public spaces and circulation routes connecting these galleries becoming an integral part of the visitor experience—a primary focus of this transformation.
▼楼梯社交,Stair social©DONG建筑影像
▼楼梯与原始结构,Staircase and structure©DONG建筑影像
▼楼梯与原始结构,Staircase and structure©DONG建筑影像
室内现状及功能流线调整
Interior Condition
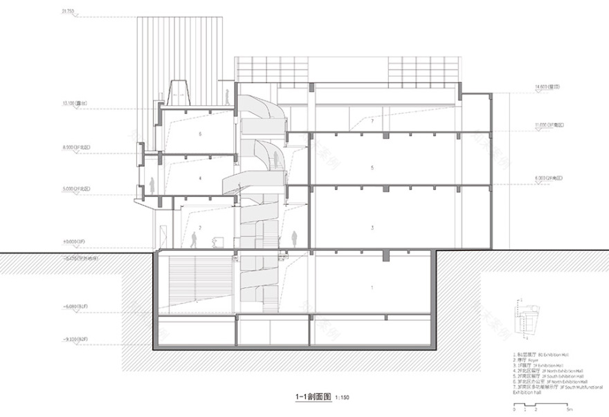
拉法耶2009年以书场为功能进行重建后,形成了地面上由中庭分隔且高度不同的南北各三层错层和地下二层的格局。南侧为层高较高的大空间展厅,北侧为层高较低的活动室及展示空间。北侧屋顶露台上有一座塔楼构筑物。原有空间3层之间相互隔开,中庭有两条楼梯分别连接南北两侧的2层和3层,参观者只能通过疏散楼梯和电梯到达其余各层。改造在中庭新增一条贯穿B1到露台的公共楼梯,作为公众游览路径。
▼改造后功能流线分析,Function and circulation analysis©之外建筑
▼改造后剖面,Section after renovation©之外建筑
After its 2009 reconstruction, the building featured a staggered three-story layout divided by a central atrium, with two basement levels. The interior features three-tiered northern and southern wings separated by an atrium, with differing floor levels: the higher-ceilinged southern wing houses large exhibition halls, while the northern wing contains lower-ceilinged event rooms and display spaces. A tower structure crowns the southern rooftop terrace. Originally, the three floors were isolated segments – two atrium staircases connected only the 2nd/3rd floors of each wing, forcing visitors to use emergency stairs or elevators to access other levels.
▼楼梯与原始结构,Staircase and structure©DONG建筑影像
中庭改造-观游之径
Atrium Renovation – A Viewing Path
除B1外,新增的楼梯需要在13m的高度内连接6个楼层,楼层间的高差各不相同。同时中庭错层之间在2层和3层之间有两根结构梁,将楼梯空间进一步压缩。再加上原有中庭向上逐渐变小,边界不规则,种种条件都使新增楼梯限制重重。▼原中庭结构,Original atrium structure©之外建筑
The new staircase needs to connect six irregularly spaced floors within 13 meters — a spatial challenge compounded by two structural beams spanning between levels 2 and 3 that further restrict the available clearance.
▼中庭楼梯与原始结构,atrium staircase and structure©DONG建筑影像
▼中庭楼梯与原始结构,atrium staircase and structure©DONG建筑影像
所以我们首先规整中庭边界,切除部分楼板,清理出一个4.2m*5.9m的通高空间,然后采取楼梯在结构中绕行的策略,使楼梯与原有结构和梁产生互动。整个楼梯将成为展厅观游的路径,引领人们穿梭环绕,驻足观景,成为展览体验的一部分。▼中庭楼梯与结构,Atrium staircase and structure©之外建筑
▼中庭楼梯观游,Atrium staircase as a viewing path©之外建筑
By rationalizing the atrium’s boundaries and removing sections of slabs, a vertically continuous 4.2m×5.9m void was created. The staircase winds through the structural constraints, utilizing the existing two beams as supports for intermediate landings. The staircase functions as a curatorial pathway, directing circulation while integrating pauses for observation, seamlessly merging vertical movement with the exhibition experience.
▼中庭楼梯与原始结构,atrium staircase and structure©DONG建筑影像
新增楼梯以12mm钢板作为扶手结构,楼梯踏步下为205*130*10钢结构箱体梁,并以2mm钢板封底,使楼梯呈现简洁、精致、整体的形象。黑色的钢结构楼梯与中庭周围真石漆喷涂的梁,混凝土艺术漆的墙面产生激烈的碰撞,这种碰撞既是视觉上的反差,将参观者从沉浸式展览的氛围中带出,也是不同空间的对话,以流动,自由的形式连接建筑的各个空间,带给中庭戏剧性的瞬间。
▼楼梯改造生成,Staircase generation©之外建筑
The staircase uses 12mm steel plates as handrail structures, with steps supported by 205x130x10mm steel box beams, enclosed by 2mm steel plate base closures, achieving a concise, refined, and monolithic aesthetic. The black steel staircase sharply contrasts with the surrounding atrium materials: textured mineral-finished beams and concrete painted walls. This atmospheric collision creates a visual rupture, momentarily pulling visitors out of the immersive exhibition , while simultaneously acting as a spatial dialogue — its fluid, free-form trajectory interconnects disjointed floor zones, injecting dramatic tension into the atrium’s void.
▼中庭楼梯探索,Atrium staircase exploring©DONG建筑影像
设计施工过程:Design and Construction Process:
整个项目从开始拆除到立面、室内、展陈完成,只用了4个月不到的时间。在这及其有限的时间内,设计团队与业主、施工方共同努力,进行了多轮的打样及材料比选,使项目能够顺利完工。
The entire project — from demolition to completion of facade, interior, and exhibition installations — was executed in less than four months. Within this compressed time frame, the design team collaborated closely with the client and contractors through multiple rounds of mock-up prototyping and material selection, ensuring on-time delivery.
▼立面穿孔大小、铝板颜色、亚克力背板颜色、密度测试,Perforated panel perforation size, color, density test ©之外建筑
▼穿孔板亮光测试,Perforated panel lighting test©之外建筑
▼楼梯预制到安装,Stair prefabrication and installation©之外建筑
▼施工街角一瞥,A Glimpse from the street during construction©之外建筑
▼施工街角一瞥,A Glimpse from the street during construction©之外建筑
拉法耶在历史变迁中经历了戏院、电影院、书场、艺术中心等多次功能和角色的转换,如今改造后的拉法耶文化艺术中心将结合数字技术,以虚拟现实(XR)、数字艺术、多媒体交互等方式呈现历史文化和历史文物,成为城市更新中数字转型的一次积极实践。
Lafayette has underwent several rounds of functional changes from cinema, theater, storytelling hall to exhibition space, the renovated Lafayette Culture Space now embraces digital technologies—XR (Extended Reality), digital art, and interactive media—to represent historic culture and relics. The project is an active endeavor in digital transformation of a historic culture building in the urban renewal.
▼序厅,Foyer©之外建筑
▼1F展厅入口,1F Exhibition Hall Entrance©之外建筑
▼1F走廊,1F Corridor©DONG建筑影像
▼2F北区展厅,2F north exhibition hall©之外建筑
▼2F北区楼梯,2F northstaircase©之外建筑
▼3F走廊,3F Corridor©DONG建筑影像
▼3F通向露台,3F to Terrace©DONG建筑影像
▼场地总图,Site plan©之外建筑
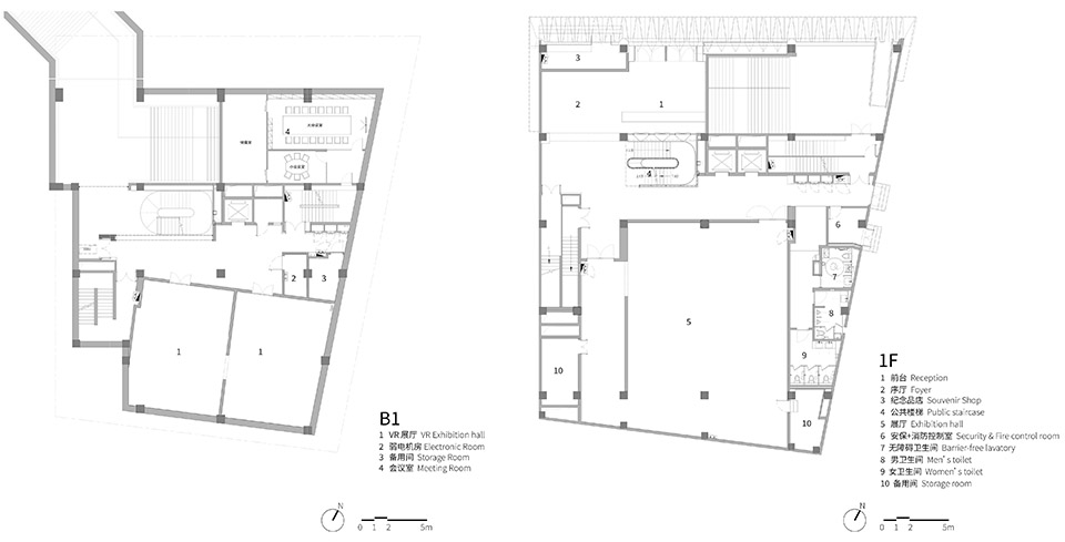
▼负一层平面&一层平面,B1 floor plan & 1st floor plan©之外建筑
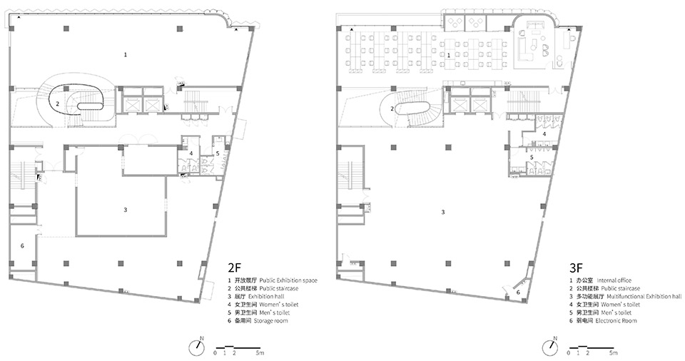
▼二层平面&三层平面,2nd floor plan & 3rd floor plan©之外建筑
▼露台平面&屋顶平面,Terrace plan & Roof plan©之外建筑
▼正立面,Front elevation©之外建筑
▼剖面,section©之外建筑
▼楼梯细部,staircase detail©之外建筑
项目地址:上海市复兴中路323号
项目业主:ALIGHT 光禹莱特
设计时间:2024.01-2024.8
项目施工:2024.10-2025.01
建筑面积:2900平方米
建筑设计:之外建筑 TheY Architects
室内设计:之外建筑 TheY Architects
主创设计师:姚远、刘雨泽
建筑设计团队:马欣瑶、高彤、陈志恒
施工图设计:上海天华建筑设计有限公司
结构设计:上海天华建筑设计有限公司
建筑室内施工单位:上海正徐建设集团有限公司
展陈施工:有信展览展示(上海)有限公司
摄影师:DONG建筑影像、之外建筑、张雪晨
灯光设计:ELA 寻光
展陈设计:光禹莱特数字科技(上海)有限公司
标识设计:深圳合一个文化传媒有限公司
材料:穿孔铝板、清水混凝土艺术漆、真石漆、黑色金属漆、水磨石砖、LED点阵灯
品牌:诗衡照明(led灯光)
Project Name:Lafayette Culture Space Renovation
Type:Renovation,Culture
Address:No.323 Mid Fuxing Road, Shanghai
Client:ALIGHT
Design Period:2024.01-2024.8
Construction Period:2024.10-2025.01
Area:2900m2
Architecture Design:TheY Architects
Interior Design: TheY Architects
Email:
Lead Designers:Yuan Yao, Yuze Liu
Design Team:Xinyao Ma, Tong Gao, Zhiheng Cheng
Construction Drawing Design:Shanghai Tianhua Architectural Design Co., Ltd.
Structure Design:Shanghai Tianhua Architectural Design Co., Ltd.
Contractor:Shanghai Zhengxu Construction Group Co., Ltd.
Exhibition Design:Guangyulaite Digital Technology (Shanghai) Co., Ltd.
Exhibition Contractor: Youxin Exhibition (Shanghai)Co., Ltd.
Photographer:DONG Image、TheY Architects、Xuechen Zhang
Lighting Design:ELA
Signage Design:Shenzhen Heyi Culture Media Co., Ltd.
Material:Perforated aluminum panel,Stone-paint, black metallic paint, terrazzo tile, LED matrix light
Brand:诗衡照明(led灯光)
客服
消息
收藏
下载
最近


















































































