查看完整案例

收藏

下载
这座私人住宅位于Phan Rang - Thap Cham的高密度住宅区,这是一个拥有强烈热浪和海风的沿海城市,其设计适应了当地的气候。建筑方法最大限度地减少了阳光直射,同时最大限度地提高了自然海风的冷却效果。
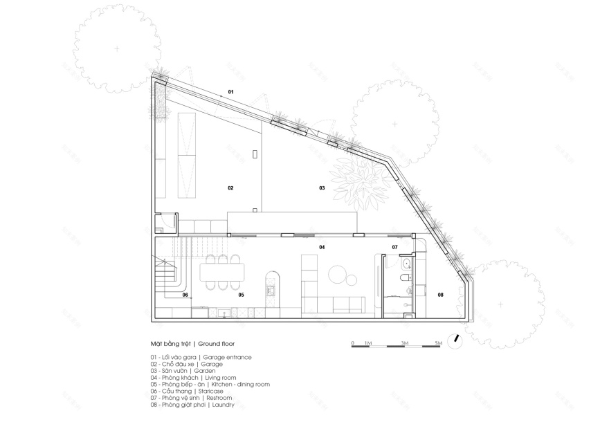
该住宅占地513平方米,位于紧凑的178平方米地块上,由一层、上层和屋顶组成。设计强调灵活性和与自然的紧密联系,使用原材料和当地材料来表达房主的个性。
住宅的核心概念是创造一个鼓励家庭互动的空间。为一对有两个孩子的夫妇设计,一楼的特点是开放式布局,客厅、厨房和公共区域之间没有永久的墙壁,以支持日常生活中的交流和联系。在楼上,卧室采用滑动隔板,而不是封闭的房间,允许根据需要调整隐私水平,并在需要时将上层转换为共享空间。
为了应对恶劣的气候,房子采用了宽屋檐、遮阳屏风和战略性放置的绿化作为缓冲区,提供阴影和柔和的间接自然光。厚墙减少了热量的增加和城市噪音,提高了室内的舒适度。
不同寻常的是,该住宅放弃了典型的瓷砖饰面。相反,它在天花板和地板上都采用了原始混凝土。采用双层混凝土板系统,精心锚定和详细,以适应嵌入式技术系统的精度。温暖的定向照明增加了舒适和独特的氛围。住宅不仅仅是一个庇护所,它还提供了一个可持续发展的和谐生活环境。它促进了亲密的家庭关系,并与自然环境建立了更深的联系。
项目设计:Plus Idea Studio
项目面积: 513m²
项目年份:2024
项目摄影: Paul Phan
首席建筑师:Ha Nam Nguyen
Category: Houses
项目经理: Thanh My Vo Thi
Architect: Thanh Tung Tran
Structure Engineer: Hong Duc Le
项目成市: Phan Rang–Tháp Chàm
项目国家: Vietnam
这设计屌爆了 我喜欢 让我想起了老家
客服
消息
收藏
下载
最近












































