查看完整案例

收藏

下载
YA-MAN 全球旗舰店的设计,体现了这家致力于通过科技提升美丽的美容仪品牌的核心理念。店铺分为上下两层,一层为产品展示与销售区域,二层则为“FACE LIFT GYM”面部提拉健身专区——一个结合品牌产品进行面部肌肉训练的专业体验空间。该店铺的设计目标是打造一个全新的奢华环境,为所有追求美丽的人提供独特的美肤体验。
The global flagship store design for YA-MAN, a beauty equipment brand that utilizes technology to elevate beauty. The store is divided into two floors; on the first floor, products are displayed for purchase, while the second floor serves as the FACE LIFT GYM section – a training facility specializing in facial muscle training with the use of their products. The main design aim of this store was to create a new, luxurious environment, offering a distinctive beauty experience for all beauty seekers.
▼店铺概览,overview of the store ©Tomooki Kengaku
在银座中央大道上,YA-MAN 店铺以其强烈的存在感脱颖而出,水平延展的宽大立面搭配向外辐射的光感设计元素,增强了其街景辨识度。步入一层,宾客首先迎接的是一面壮观的“光之墙”,灵感源于品牌核心美容仪器中的LED光技术。
The impactful presence of YA-MAN store is magnified along Ginza’s Chuo-dori Avenue, characterized by its expansive horizontal façade, with luminous design elements radiating outwards onto the street. Upon entering the first floor, guests are greeted by a magnificent wall of light, inspired by the concept of their facial beauty device, in which LED light is an integral part of their technology.
▼店铺街景,street view of the store ©Tomooki Kengaku
▼迎接客人的“光之墙”,guests are greeted by a magnificent wall of light ©Tomooki Kengaku
这处引人注目的光之装置被设置于大型展位空间中,营造出光影环绕的沉浸式体验。墙面光的颜色会变化,其光谱依据品牌产品所使用LED的波长设定而成。同时,点状光源经过特殊扩散处理,多方向穿透,通过一层仿人类肌肤细胞结构的特殊玻璃,深入触达观者感官。整个空间以柔和沉稳的色调为背景,局部展示区域则独立点亮,光与影交错之间,营造出产品悬浮空中的视觉错觉。在展示区域的多个细节中巧妙点缀金色元素,进一步提升了产品与环境的奢华质感,使科技与高端审美在空间中实现融合。
This captivating feature is showcased in a large booth space where visitors are bathed in light, offering an unforgettable experience. The colour of the light wall changes, with its spectrum determined by incorporating the wavelength of the LED used in their products. In addition to that, the point light source is diffused in multiple directions, penetrating deeply into the viewers through a glass that was specially processed to resemble human skin cells. The display areas are lit up individually within the overall space composed of subdued tones, where the interplay of light and dark creates a pleasant rhythm, giving the impression of products gracefully floating in the air. To enhance the luxurious experience of the product and its space, gold accents are applied to various parts of the display area. Technology and luxury are fused together in this store design.
▼光影环绕的沉浸式体验,where visitors are bathed in light ©Tomooki Kengaku
▼点状光源经过特殊扩散处理深入触达观者感官,
the point light source is diffused into the viewers ©Tomooki Kengaku
▼墙面光的颜色不断变化,the colour of the light wall changes ©Tomooki Kengaku
▼产品展示区域,the display area ©Tomooki Kengaku
▼产品展示区域,the display area ©Tomooki Kengaku
二层是“FACE LIFT GYM”面部提拉健身区,自然光渗透每一个角落,营造出悠然的时间流动感。整层由一系列半开放式护理舱组成,既保持私密性,又构建个性化的美容体验路径。灵感源于品牌产品本身的柔和光线,以有节奏的方式布置在每个护理舱上方,形成店铺外部也能识别的标志性设计语言。空间最深处设有一间VIP专属房间,如洞穴般隐秘,内部以纯净的白色与金色营造出极致奢华氛围,宾客仿佛沉浸于一场精致非凡的美容体验之中。整个设计通过光影的细腻演绎,展现 YA-MAN 所构筑的“美丽世界”,将源自日本的美学理念传递至全世界。
The second floor is where the FACE LIFT GYM is located, where natural light permeates each corner, creating a leisurely passage of time. The entire floor is made up of a series of open treatment booths that offer a moderate degree of privacy, curating a collection of individual experiences. Soft lines of light, inspired by the product themselves, are rhythmically placed above each booth, forming an accent that is also recognizable from the outside. At the back of the building lies a cavernous VIP room, providing an even more refined experience where guests are immersed in a luxurious space of deep white and gold. An extraordinary light experience is crafted to showcase YA-MAN’s beauty world from Japan to the rest of the world.
▼二层空间,the second floor space ©Tomooki Kengaku
▼一系列半开放式护理舱组成,entire floor is made up of a series of open treatment booths ©Tomooki Kengaku
▼保持私密性又构建个性化的美容体验,
offer a moderate degree of privacy, curating a collection of individual experiences ©Tomooki Kengaku
▼营造出悠然的时间流动感,creating a leisurely passage of time ©Tomooki Kengaku
▼如洞穴般的VIP专属房间,a cavernous VIP room©Tomooki Kengaku
▼细部,detail ©Tomooki Kengaku
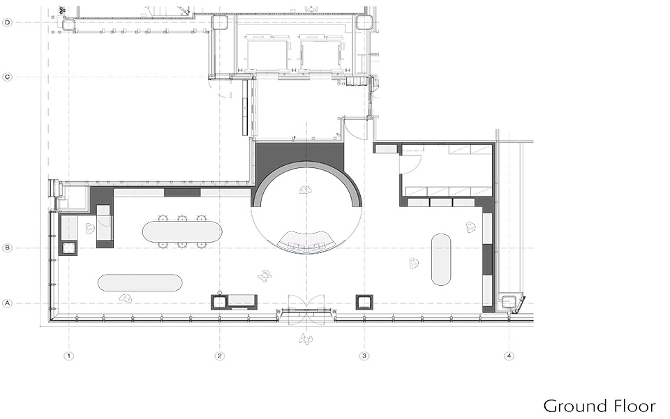
▼一层平面,ground floor plan ©I IN Inc.
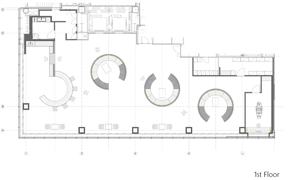
▼二层平面,first floor plan ©I IN Inc.
Photo credit : Tomooki Kengaku
客服
消息
收藏
下载
最近










































