查看完整案例

收藏

下载
项目名称:同济大学艺嘉楼(嘉定校区学生活动中心)
位置:上海
设计单位:同济大学建筑设计研究院(集团)有限公司 麟和建筑工作室
图片数量:62张
同济大学嘉定校区始建于2002年,校园尚缺乏一个具有吸引力的公共文化核心,艺嘉楼(学生活动中心)被赋予了异质化和触媒化的角色,期望提供不同于教学与学院的空间体验,成为激活校园文化活力的一个强有力的锚点。
夜幕降临中的校园
校园日出中的艺嘉楼
艺嘉楼正对贯穿校园前区的湖面与草坪,独具景致
艺嘉楼45°网格系统贯穿结构梁柱、立面形态、室内空间、场地景观
艺嘉楼的设计从选址开始,最终的基地位于整体校园东南端,介于主教学实验区与新规划学生宿舍之间,西南正对贯穿校园前区的湖面与草坪,景观独具。为集约化土地使用,建筑采用2层与9层体量的组合,形成校园南入口主轴线东侧的标识性建筑,并与西侧的图书馆高层体量遥相呼应,完善了校园总体空间形态格局。
草图
同济大学嘉定校区航拍
南入口立面
我们以“漫游垂直校园”的设计构想贯通低层与高层建筑空间与体量,环绕和贯穿建筑外部和内部的一系列坡道、楼梯、连廊和台地空间成为空间组织的核心,连续迴转、步移景异,从地下空间步行漫游至建筑最高处屋顶花园,形成一个如同中国园林和山水画般、散点铺陈的立体化连续空间序列。
垂直校园
建筑东立面
外观
设计将大截面柱体化解为片柱。建筑漫游路径同时串接起丰富多样的功能空间,提供一个师生可坐、可躺、可聊、可观、可读、可思、可感、可演的“无边界复合功能空间”。建筑低层裙楼部分包括了830座礼堂空间、300座多功能音乐厅、多尺度报告厅、社团排练厅、多类型活动室等,并配备咖啡、展览、多功能活动大厅等功能。为消减上部体量,礼堂部分下沉一层,结合下沉庭院形成观演休息空间,并提供完善的标准舞台与后台支持;建筑高层部分提供集中办事中心、学业发展中心、心理卫生中心、就业指导中心以及团委、学生处等多部门办公和公共服务功能。
漫游空间系统
将校园景观无边界引入室内
南大厅将校园景观无边界引入室内
清水混凝土柱廊与漫游坡道
主楼中央屋顶花园
建筑外部采用系统模数控制的磬石般体量,简洁有力,与内部丰富空间形成差异化策略。通过将大截面柱体化解为片柱,建筑内部和立面形成加密的预制装配砼45°斜向结构构件,外部构件朝向东南方向,兼具竖向遮阳和自然导风作用;格网系统贯穿结构梁柱、立面形态、室内空间、场地景观等,实现建筑“系统建构”。
草图
草图
北侧主入口立面:挂板幕墙构件兼具竖向遮阳和自然导风作用
白色混凝土预制挂板竖向遮阳
白色混凝土预制挂板竖向遮阳
建筑基础采用整体“浮筑抗震系统”,在基础与地下一层之间设置2米层高隔震层,布设116个隔震支座,罕遇地震下隔震层耗能占总地震能量80%左右,从而上部构件按设防烈度降低一度设计,大幅提升建筑空间通透度和减少材料消耗。
结构模型
梁柱节点对比:通过减隔震技术优化构件截面尺寸和节点配筋
连续的学生自主活动台地空间
生自主活动空间
生自主活动空间
将校园景观无边界引入室内。强化建筑与结构 “一体化设计”,建筑近40.5%的结构构件采用砼预制装配体系,砼预制密肋梁柱体系与灯具、喷淋、采光、导风等一体整合和展现。设计引入热力学技术,建立流体动力学整体分析模型,主楼采用中庭与热力学烟囱结合,引导主导风垂直贯穿建筑,实现过渡季节最大化自然通风;裙楼公共中庭可在过渡季节实现大面积立面开合和顶部通风。与常规体系相比,建筑在材料、建造、季节调控等的综合减碳设计,可在全生命周期整体减少7%的碳排放,相当于在嘉定校区种植了25万棵树,是具有重要环境意义的前沿技术探索。
风环境模拟
台地展示空间
围绕主楼中庭的空间漫步
洒满自然天光的坡道连廊
围绕主楼中庭的空间漫步
主楼中庭内的连廊
主楼中庭通过顶部天窗获得自然采光。艺嘉楼在建筑、结构、热力学等的系统整合,提供了一个空间、建构、性能融为一体的“生态化装配建造”范例。设计造就了建筑室内外丰富的空间质感和自然体验,穿行其中,光影运转、风过空间、树丛湖面景致扑面,建筑成为一个充满生机活力的“光与风的空间容器”。
室内空气龄分析
光与风的空间容器
地下一层咖啡厅等待入驻
大礼堂观众席视角
大礼堂观众入场视角
多功能音乐厅使用场景
工作模型
工作模型
BIM模型
BIM模型
区位图
总平面图
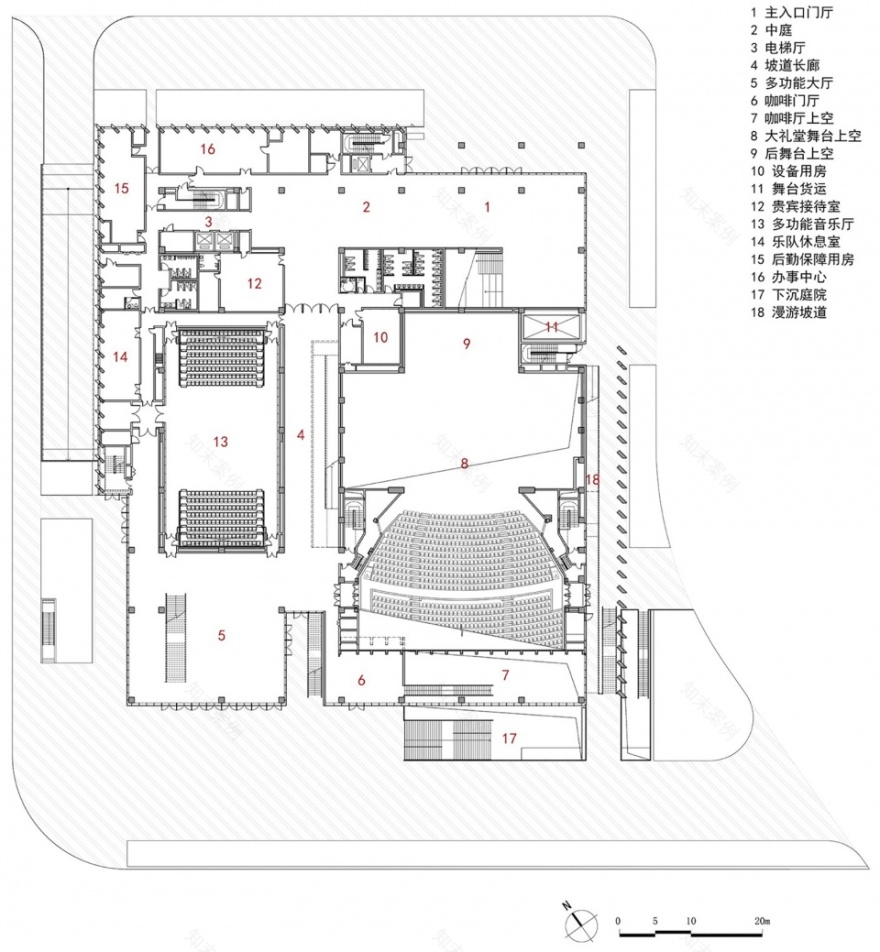
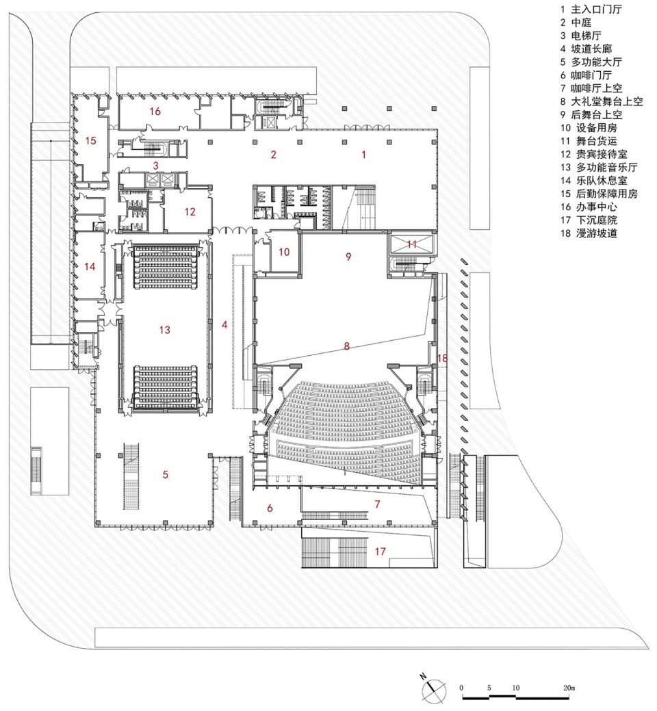
一层平面图
二层平面图
三层平面图
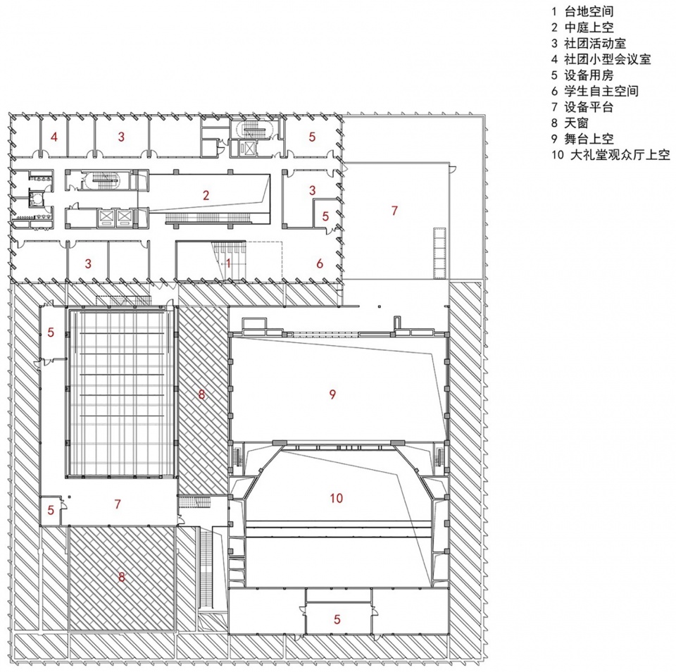
四层平面图
六层平面图
北立面图
东立面图
南立面图
剖面图
剖面图
剖面图
剖面图
剖透视图
剖透视图
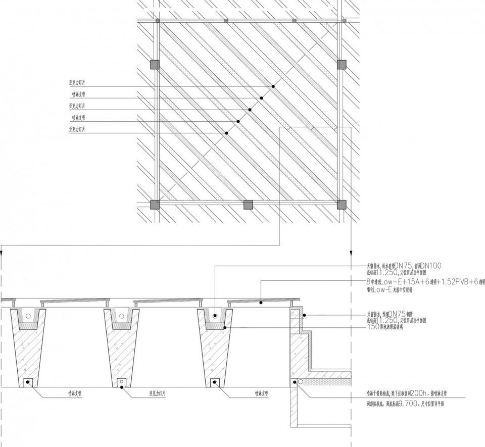
砼预制装配花篮梁构造详图
项目名称:同济大学艺嘉楼(嘉定校区学生活动中心)
项目类型:教育文化类
设计方:同济大学建筑设计研究院(集团)有限公司 麟和建筑工作室
项目设计:2016
完成年份:2024
设计团队:
项目负责人:李麟学
建筑/室内/景观/标识设计:李麟学、周凯锋、刘旸、姜咏茜、单云翔、王彦雯、焦岩、郭乾立、汪颖、吴文静、刘聪聪、倪润尔、吴琦、董之卉、叶心成、吴雨末、张琪
结构设计:丁洁民、吴宏磊、王建峰、吴强、华怀宇、陈长嘉、王曦
给排水设计:刘瑾、谢文龙
暖通设计:顾勇、许逸平
电气设计:孙峰、王昌、张文杰、张杰栋、邴赫亮、袁鹰
BIM设计:彭路续、丁志华、陈同舟、石熠、杨泽、谭慧琳
绿建设计:李晨玉、王莹珺、施炜
热力学设计:李麟学、潘毅群、杨一昆、张琪、张广益、于洋、何美婷、冯文心
泛光顾问:同济大学,郝洛西、邵戎镝
声学顾问:上海市声学学会,蒋国荣
幕墙顾问:上海易旋建筑设计咨询有限公司
舞台顾问:浙江大丰实业股份有限公司
碳排放顾问:上海续翼建筑科技发展有限公司
项目地址:上海市嘉定区曹安公路4800号同济大学嘉定校区
建筑面积:21750㎡(其中地上15285㎡,地下6465㎡)
摄影版权: ©是然摄影 苏圣亮、同济大学 江平
合作方:
客户:同济大学
材料:预制混凝土框架梁板柱、清水混凝土、白色高强度纤维增强混凝土预制挂板、中空玻璃幕墙、白色铝合金张拉网吊顶、抛光混凝土地坪、轻钢龙骨GRG弧形穿孔板、木纹转印铝合金挂板、扁钢栏杆、实木扶手与地板、透水混凝土室外地坪
品牌:(1)白色高强度纤维增强混凝土预制挂板:浙江宝思博
(2)预制混凝土框架梁板柱:研砼治筑
(3)中空玻璃幕墙:信义节能玻璃
客服
消息
收藏
下载
最近































































