查看完整案例

收藏

下载
Her Bàr台北于24年12月底在成都落成第四家直营门店。品牌以标志性的粗犷工业美学——裸露混凝土肌理、金属构件碰撞与街头涂鸦艺术——构筑出台式夜生活的文化地标。作为秉持长期主义与独立精神的品牌,Her Bàr台北始终以人文关怀为核心,通过融合台式音乐氛围、经典台式小食、高性价比精酿及多元文化活动,为全年龄段客群打造打破时空界限的沉浸式社交场域,让每位到访者都能在自由氛围中体验品牌独有的精神引力。该门店位于成都太古里睿东中心C座一楼的沿街铺面,室内建筑面积为200㎡,毗邻太古里与成都兰桂坊,整栋写字楼均为不同风格的当下热门酒吧所在,位于一楼铺面的Her Bàr台北也拥有了外摆与更多的临街展示面。
Her Bàr Taipei opened its fourth direct-operated store in Chengdu at the end of December. The brand has built a cultural landmark for Taiwanese nightlife with its iconic rough industrial aesthetics – exposed concrete texture, collision of metal components and street graffiti art. As a brand that upholds the spirit of long-termism and independence, Her Bàr Taipei has always taken customer experience as its core. By integrating Taiwanese music atmosphere, classic Taiwanese snacks, cost-effective craft beer and multicultural activities, it creates an immersive social space that breaks the boundaries of time and space for customers of all ages, allowing every visitor to experience the brand’s unique spiritual gravity in a free atmosphere. The store is located on the first floor of the street-side shop on the first floor of Block C, Ruidong Center, Taikoo Li Chengdu. The indoor building area is 200 square meters. It is adjacent to Taikoo Li and Chengdu Lan Kwai Fong. The entire office building is home to popular bars of different styles. Her Bàr Taipei, located on the first floor shop, also has outdoor seating and more street-facing display surfaces.
▼门头设计,Facade design ©池上 SENSE
门头的巨幅招牌作为品牌最直观的形象体现,设计采用波浪阳光板搭配巨型手绘标识,并在右上角处添加“打酒”辅助图形,直接向远处的客人传递品牌及产品的个性化气息。店内采用环绕高低错落式布局,不仅为酒客们提供了不同的饮酒体验,同时也构建出了绝佳的社交舞台。
The huge facade is the most intuitive image of the brand. It is designed with Polycarbonate panel and a giant hand-painted logo, and an auxiliary graphic of “beer tap” is added in the upper right corner to directly convey the personalized atmosphere of the brand and products to the guests in the distance. The store adopts a surrounding high and low staggered layout, which not only provides different drinking experiences for drinkers but also serves as an excellent social stage.
▼醒目的外立面,Facade ©池上 SENSE
店铺坐落于繁华的CDB大楼之间,我们的设计旨在精致中塑造一个粗狂但有温度的“破败仓库”,让我们的客人在日常的繁忙当中可以有一个更放松心弦的落脚点。
The store is located between the bustling CDB buildings. Our design aims to create a rough but warm “run-down warehouse” in exquisiteness, so that our customers can have a warm place to stay in the busy daily life.
▼醒目的外立面,Facade ©池上 SENSE
▼主视觉设计,Main visual design ©池上 SENSE
室内最为醒目的便是位于吧台上方的巨幅文化展示牌,VI设计师延续了长沙店的设计手法,采用白色镂空图案表达台湾在地文化的同时,凸显了彩色主logo。设计灵感来源于废弃的工厂,我们使用做旧的槽钢垂直从天花吊下来作为结构,再用木板和阳光板进行包裹,也使得内部同时兼具了储物的功能。
The most eye-catching thing in the room is the huge cultural display board above the bar,The VI designer continues the design method of the Changsha store and uses white hollow patterns to express the local culture of Taiwan while highlighting the colorful main logo. The design inspiration comes from the abandoned factory. We use old channel steel vertically suspended from the ceiling as the structure, and then use wood and polycarbonate panels to wrap it. At the same time, it also has the function of storage.
▼吧台上方的巨幅文化展示牌,the huge cultural display board above the bar ©池上 SENSE
▼用餐区,dining area ©池上 SENSE
▼吧台及点单区,counter design ©池上 SENSE
▼二层楼梯处理,cultural display wall ©池上 SENSE
值得一提的是,这家酒吧同时也是二层另一个酒吧的入口之一,店内巨大的旋转楼梯也给装修设计带来了极大的挑战。这个楼梯即是两家店不同设计风格的交界处,楼梯侧边与底部我们采用了超薄石材来还原锈铁的质感,使得整体的风格更加的协调统一。围绕楼梯的高低平面布局,巧妙地将店内切割为热闹的玩乐社交区,与楼梯后更为安静私密的卡座区。
this bar is also one of the entrances to another bar on the second floor. The huge spiral staircase in the store also brought great challenges to the design. The staircase is also the junction of the two stores’ different design styles. We used ultra-thin stone panel on the side and bottom to restore the texture of rusty iron, making the overall style more coordinated and unified. The high and low plane layout around the staircase cleverly divides the store into a lively entertainment and social area and a quieter and more private booth area behind the staircase.
▼卡座区设计,Booth area design ©池上 SENSE
▼卡座区设计,Booth area design ©池上 SENSE
DJ台放置在了旋转楼梯的转角处,贴合式设计的高低dj台恰到好处地给蹦迪区留出了紧凑的空间。同时也为2位dj同时B2B打碟留出了可能性。
The DJ booth is placed at the corner of the spiral staircase. The fitted high and low DJ booth design leaves just enough space for the stage area, and also allows for two DJs to play B2B music at the same time.
▼DJ台设计,DJ Stage design ©池上 SENSE
▼中央客座区,seats design ©池上 SENSE
Her Bàr台北成都店是设计团队在非标准化项目中的又一次创新突破,每一个设计细节都深刻体现了品牌的商业理念与运营策略。从长沙的热闹小街角走到成都的破败大仓库,Her Bàr台北不仅是一个酒吧,更是一个融合设计、文化与社区的独特空间,致力于为顾客提供全方位的沉浸式感官体验。
Her Bàr Taipei Chengdu store is another innovative breakthrough of the design team in non-standard projects, every design detail deeply reflects the brand’s business philosophy and operation strategy. From the lively street corner in Changsha to the dilapidated warehouse in Chengdu ,Her Bàr Taipei is not only a bar, but also a unique space that integrates design, culture and community, dedicated to providing customers with a full range of immersive sensory experience.
▼融合设计、文化与社区的独特空间,
integrates design, culture and community ©池上 SENSE
▼夜景,night view ©池上 SENSE
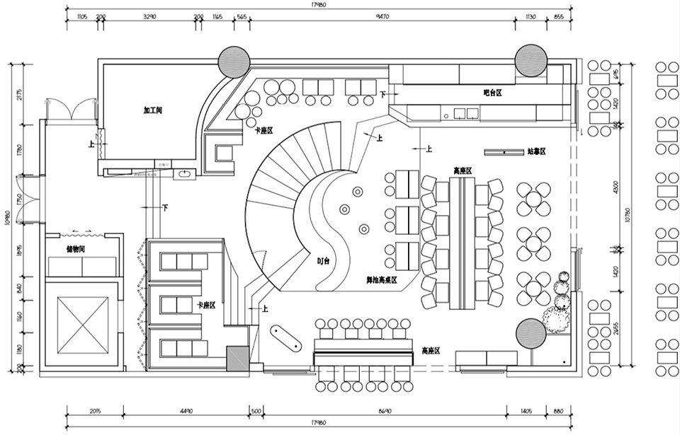
▼平面图,plan ©广西南宁唐木体验咨询公司
项目名称:Her Bàr台北 成都店
项目类型:商业空间设计 室内设计
设计方:广西南宁唐木体验咨询公司
项目设计:Her Bàr台北
完成年份:2024年11月
设计团队:广西南宁唐木体验咨询公司
项目地址:锦江区东大街东下大街199号睿东中心C座L5号楼F1层
建筑面积:200㎡
摄影版权:池上 SENSE
合作方:Her Bàr
业主:陶一笑,刘宇翔
软装设计:陶一笑
体验设计:林子明
效果图设计:王紫林
独立品牌设计:傅天与(与点设计工作室),JOJO
材料:微水泥 木材 超薄石材 做旧大锌花波浪板 作锈铁 波浪阳光板 马赛克瓷砖
客服
消息
收藏
下载
最近






















