查看完整案例

收藏

下载
Mitr总部坐落于曼谷Saphan Khwai地区的一个住宅社区内。该建筑最初作为私人住宅设计,后被改造为集居住与工作功能于一体的“家居式工作室”。设计重新诠释了原有空间结构,使其能够兼容服装工坊、创意工作室与日常休憩等多元使用需求。
Mitr Headquarter is located in a residential complex in the Saphan Khwai area of Bangkok. Originally designed as a private residence, the building has been adapted for use as a home studio, blending residential and workspace functions. The design reinterprets the existing space to accommodate multiple uses, combining areas for clothing workshop, creative studio functions, and relaxation all within the same building.
▼工作室外观,exterior of the studio ©Kukkong
项目的设计重点在于营造一个空间之间流动自然、过渡柔和的整体氛围。原有白墙围合的方形房间在此次改造中通过柔化转角、引入前厅区域等方式被重新组织,前厅空间作为不同功能区域之间的过渡节点。建筑内部还通过开设挑空结构,引导自然光深入室内,增强各空间之间的视觉联系。暖调的天然材料也进一步营造出温润宜人的空间气质。
The design focuses on creating a smooth and natural flow between the various spaces within the building. The original square rooms with white walls have been modified by softening the corners and introducing a foyer area, which serves as a transitional space between different zones. Additionally, Openings (Voids) have been carved out of the structure to enable natural light to reach further into the building, enhancing visual connections between areas. The use of natural materials in warm tones further contributes to the creation of a comfortable and inviting atmosphere.
▼柔化转角的入口,entrance that softening the corners ©Kukkong
在外部形象上,Mitr总部呈现出简约优雅的立面风貌。正立面采用不同肌理的浅沙色瓷砖拼贴,与室内地面同色系瓷砖呼应,构成视觉上的统一性。访客进入建筑后,首先映入眼帘的是前厅区域与通往主工作区的楼梯空间,主功能区位于建筑后方。室内空间应用了“屋中屋”的设计概念——在原有建筑结构中构建一个新的架构系统,以创造更强的私密感与多功能性。位于核心位置的楼梯是建筑中的主要流线节点,也承担着空间转场的角色。楼梯区域采用降低吊顶的设计,并配以Barisol拉膜天花系统,以柔和的光线延伸至夹层楼板。曲线构架勾勒出空间边界,赋予其独特的建筑语言。
Externally, the Mitr headquarters presents a simple and elegant facade. The front wall is clad in sand-colored tiles with varying textures arranged in a pattern that harmonizes with the floor tiles inside, which are of a matching color. Upon entering the building, visitors are greeted by a Foyer area, a staircase that leads to the primary workspace located at the rear of the building. The concept of a “house within a house” was applied to the interior space, creating a new architectural framework within the existing building to provide a sense of privacy and multifunctionality. The central staircase, a key circulation element in the building, serves as a transitional space. The design of the staircase area features a lower ceiling height, highlighting natural light with a fabric stretch ceiling (Barisol) that extends to the mezzanine floor, where curved wall frames define the space.
▼立面采用不同肌理的浅沙色瓷砖拼贴,clad in sand-colored tiles with varying textures ©Kukkong
一层:挑高空间毗邻整面玻璃墙,自然光充盈其中,被设计为品牌的主创作工作室。该区域还设有专属摄影棚。空间布局灵活松散,既可满足日常设计、文书处理、样衣审阅等功能需求,也可轻松切换为拍摄场地,适应品牌内容产出的多样性。
1st floor The high-ceiling space adjacent to a large glass wall has been designed as the main studio area, benefiting from abundant natural light. This zone also includes a dedicated photography studio for the brand. The interior layout is deliberately loose and flexible, allowing the space to accommodate a wide range of activities, from design work to document handling, clothing sample evaluations, and even photo shoots for production.
▼流动自然、过渡柔和的整体氛围,creating a smooth and natural flow between the space ©Kukkong
▼一层卫生间,bathroom on the ground floor ©Kukkong
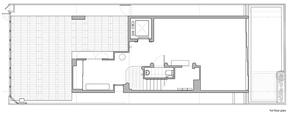
夹层(二层平面):划分为两个主要功能区域:工作区与员工休闲室。休闲空间同时兼具会议与用餐功能。通过曲线吊顶面板形成空间的柔性分区,在保证通透感与开放氛围的同时,赋予各区域不同的使用体验。对于需要更高私密性的功能区,则使用玻璃隔断,以保持空间之间的视觉联系。
The mezzanine floor ( Second floor plan) is divided into two main functional areas: the working space and a recreation room for staff, which also serves as a meeting room and dining area. The division of space is flexible, with curved ceiling panels creating subtle boundaries between different zones while maintaining an open, airy atmosphere. For areas that require more privacy, glass partitions are used, maintaining visual connectivity across spaces.
▼二层工作区,the working space on the mezzanine level ©Kukkong
▼使用玻璃隔断以保持空间之间的视觉联系,glass partitions are used to maintain visual connectivity across spaces ©Kukkong
▼通过曲线吊顶面板形成空间的柔性分区,curved ceiling panels creating subtle boundaries between different zones ©Kukkong
▼展示区域,exhibition area ©Kukkong
▼茶水间,pantry ©Kukkong
▼通过曲线吊顶面板形成空间的柔性分区,
curved ceiling panels creating subtle boundaries between different zones ©Kukkong
▼曲线吊顶天花细部,curved ceiling panels detail ©Kukkong
屋顶层(三层平面):原屋顶结构被改造并扩建为一个休闲区域。该部分的设计在地面、墙体与吊顶方面均引入了新结构体系,采用弧形吊顶,与原有平顶设计形成鲜明对比,同时在特定位置开设天窗,让自然光充分渗透进来。天然材质与大地色调的使用延续了整体温馨、舒适的氛围,使屋顶空间成为一个既宜人又实用的放松场所。
The rooftop level ( Third floor plan) has been extended and transformed into a lounge area. The design involved creating new structural elements for the floor, walls, and ceiling, with a distinct curved ceiling that contrasts with the original flat ceiling design of the building. This change allows for natural light to filter into the interior through strategically placed openings. The use of natural materials and earthy tones on this level further enhances the warm and comfortable ambiance, making it a pleasant and functional space.
▼三层区域,the rooftop ©Kukkong
▼让自然光充分渗透进来的天窗,the skylights allows for natural light to filter into the interior ©Kukkong
▼一层平面,ground floor plan ©PHTAA Living Design
▼二层平面,first floor plan ©PHTAA Living Design
▼三层平面,third floor plan ©PHTAA Living Design
Photographer : Kukkong
Architect and interior designer: PHTAA
客服
消息
收藏
下载
最近










































