查看完整案例

收藏

下载
第二篇章|空间纪
THE SECOND TEXT
空间为媒,设计解构需求,以精研设计对话塔尖需求,重塑城市核心的「场景象限」。
—— 海力空间
观宸:
城市极核的塔尖站位
CENTURY LAND
占位观音桥 定义城市高度
作为华润置地-香港置地联袂打造的城市封面级作品,观宸踞守重庆观音桥CBD几何极核,与中环万象城构成“黄金十字”商业矩阵,五重立体路网与轨道交通枢纽环伺,聚合高端商业、文化、居住资源。项目以“核心区孤品”之姿,精准锚定80后高净值人群需求——他们追求私密性、圈层归属与高定化生活场景,既需空间承载功能,更渴望设计传递身份认同。
设计前置 空间逻辑的深度解构
从拿地之初,海力设计便以“空间服务生活”为核心理念,深度参与该项目每一期的全周期设计,从户型优化到展示区呈现,从交付区空间规划到软装落地。
针对塔尖人群的复合需求,设计上精益求精,无论是景观与室内的交互布局还是功能设置,都旨在为业主提供一个既美观又实用的生活空间。
以“隐奢美学”呼应圈层气质,让每一寸空间成为生活态度的无声表达。
空间既灵魂 场域既想象
CENTURY LAND
巧解重庆日照难题 打造“自然光影剧场”泛会所
基于重庆独特的日照条件与西晒问题,海力设计对架空泛会所的物理环境进行精密分析:通过动线的合理调整,以及合理的规划封闭式空间与开放式空间之间的关系,降低了户外场景对架空层空间的干扰;同时也通过大面积落地窗引入晨光,塑造“自然光影剧场”。
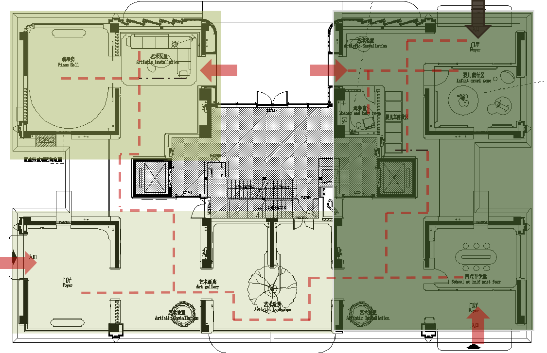
一轴多核 动静分区
功能与动线的科学平衡
在功能分区的规划上,我们注重合理性和实用性,确保每一个区域都能充分发挥其作用。无论是儿童游乐区、健身区还是休闲区,都经过精心设计和布局,以满足业主多样化的生活需求。通过分级流线设计,串联门厅、休闲区与社交场景,以“一轴多核”布局实现动静分区,确保功能独立性与视觉连贯性。
全方位打造品质空间
材质、色彩与细节的温度叙事
空间设计中,材质与色彩成为情绪引导的关键。暖灰岩板与木饰面碰撞,定义沉稳基调;莫兰迪色系家具与局部跳色软装,激活空间活力。儿童区以圆角家具、软包墙面与互动投影墙构建“安全岛”,长者休憩区则融入适老扶手与智能呼救系统,细节处彰显人性化关怀。精装陈设摒弃冗余装饰,以模块化家具与可移动隔断,赋予空间灵活生长的可能性。
A3#
童梦森林 穿越童话
以儿童的视野看世界
空间艺术 赋能孩童成长 筑梦童年
A3架空泛会所,巧妙融合宸梦故事与空间叙事,绿意园林与小熊雕塑相映成趣,共筑童梦绘本空间。我们将观宸四季变换之景引入室内,让孩童的视野成为设计灵魂。此处,关爱儿童成长至上,从门窗的适宜高度到座椅的贴心设计,再到软包的温馨触感,每一处细节都精心考量孩童需求,旨在打造一个充满爱与梦想的成长乐园。
森林王国
Forest Kingdom
探秘森林王国之旅,由一只彩绘小兔子引领启航,穿梭于奇幻的空间之中。孩童们的想象力如同无垠的星空,不受任何束缚。那只小兔子,身披大胆而凌乱的彩绘衣裳,每一笔色彩都是对孩童纯真梦幻世界的最好诠释与包容,引领我们一同踏入这个充满无限可能的奇幻之旅。
在架空泛会所的墙面之上,一只灵动的兔子忽然穿越而出,引领我们踏入一个满载惊喜与挑战的奇幻世界。这里,形态各异的奇幻生物纷至沓来,孩子们在与它们的相遇中,学会了勇敢无畏,更懂得了团结协作的力量。
四叶草学堂
Clover Academy
聪慧期许 欣阅程愿
在架空泛会所的温馨一隅,蕴藏着四叶草的健康与幸福寓意,它如同守护神一般,默默祝愿着小朋友们拥有幸福安康的童年。我们将四叶草的元素巧妙融入设计空间,让这份吉祥之意弥漫于每一个角落。
这里,还住着一只名叫三月兔(The March Hare)的可爱小兔,它不仅是一位热爱阅读的小书虫,更拥有着一间如梦如幻的巨大书屋。这里仿佛是一个知识的宝库,等待着小朋友们去探索、去发现。
四季植物密码
Plant Code
艺术品:《四季寻宝图》
设计团队与青年艺术家“蔡人窗”的共同努力下,《四季寻宝图》大型墙绘惊艳亮相。墙绘将游戏与观宸的自然景物巧妙结合,让孩童在探索中感受植物的魅力与生命力,亲子社区,共同营造出一个既充满活力又充满对自然关爱的成长环境。
艺术品:《植物·创想·四季》系列
儿童植物画廊,以多样植物元素为笔,创意无限。通过科普小区植物,结合四季更迭,孩子们创造、重组,绘出一幅幅生动植物画作。在这里,自然、科技与人类的创造力交融互启,共绘绿色篇章。
探索生命之树
Tree of Life
将室外景观精妙地引入室内,匠心独运地打造出一棵生机盎然的生命之树。空间以叠嶂之姿、遮挡之巧、推进之妙,淋漓尽致地展现着植物的力量之美、生命之韵,以及与环境的灵动互动。红色百叶门廊与大理石装饰交相辉映,而那郁郁葱葱的植物,恰似点睛之墨,为空间增添无限生机。
树木枝叶繁茂,随四季轮回而变幻无穷:春之嫩绿如初生的希望,夏之浓荫如盛放的华章,秋之金黄如收获的喜悦,冬之银装如静谧的诗篇,共同编织着大自然的绝美画卷。
森林之音
Forest Voice
在深入调研观宸业主的需求后,于儿童的架空泛会所空间内,精心打造了一处预约制的私人琴房。这方天地既可作为独立的练琴室,沉浸于音乐的海洋;又可化身为迷你型的展示小舞台,尽情绽放才艺之光。深度契合高净值人群对个性化空间的追求与向往。
《Le Jardin de Monsieur Monet》由加拿大著名作曲家和钢琴家Stephan Moccio创作的一首优美的钢琴曲。通过它的旋律,仿佛让听众穿越至那充满艺术和自然美的场景中,感受到一种宁静和和谐。
森中小憩
Take a nap
在练琴室与入户大厅的衔接之处,我们匠心独运地营造了一处休憩区域。无论是闲暇时的悠然闲坐,还是归家前的一刻小憩,这里都是一处理想的休憩之所。简约而易于打理的沙发,静静地诉说着舒适与轻松,与空间的高雅品质及项目的艺术追求相得益彰,完美融合。
B2#
草原游趣 生命成长营地
童心的无限可能
泛会所承接梦想自由翱翔
B2架空泛会所,以“生命野趣”为灵魂,匠心独运地划分为三个部分,悉心雕琢。这里,是承载每一个生命阶段童心梦想的乐园:孩子们可以尽情攀爬、嬉闹,沉浸在欢乐的海洋;也可以静谧地看书阅读,遨游在知识的世界;更有邻里间的小市集,洋溢着温馨与和谐。在这里,每一种想法都能被大胆抒发,每一份奇思妙想都能得到温柔接纳。
芳草野趣 rustic charm
IP形象引入
回应童趣无限可能
涂鸦兔是架空泛会所的艺术家,它喜欢用涂鸦的方式表达自己的想法和情感。每当涂鸦兔挥动它的小爪子,五彩斑斓的涂鸦就会出现在墙面上,变成一个个生动有趣的图案,让空间充满了艺术的气息。
为了满足2-5岁孩童的探索欲与阅读需求,我们精心打造了一个充满乐趣的亲子阅读区。这里,孩子们可以自由爬上爬下,随意坐卧,享受无尽的欢愉。空间布局起伏有致,趣味横生,仿佛是一个梦幻般的童话世界。
结合童梦趣绘的创意理念,我们设计了形态各异、充满童趣的家具,每一件都宛如童年的伙伴,为儿童区域增添了一抹独有的温馨与欢乐氛围。
艺术品:《野·趣》
青年艺术家与设计团队共同创作的墙画作品《野趣》,以小兔子欢快撒野的艺术形态为主题。作品巧妙地将空间主题与色彩融为一体,将空间的故事感通过画布延续下来,营造出一种生动且富有想象力的氛围。
草原学堂
Grassland School
为了满足稍大孩子的动手欲望,我们打造了草原学堂。围坐式的设计,让孩子们能一起动手做手工、玩桌面游戏。同时,精选的儿童图书也满足了孩子们的知识探究需求,让学堂充满乐趣与收获。
糖果森林
Candy Forest
艺术品:《幻镜万花筒》
打造“梦幻花伞”室内游乐空间,灵感源自万花筒的奇妙世界。一把梦幻般的花伞,巧妙地将装置与顶面融为一体,展现出万花筒般绚烂多彩的色彩变化。半开放式的空间布局,让室内场景宛如一幅流动的画卷,与观宸四季更迭的室外景观交相辉映,融为一体。
以兔子那顽皮灵动的性格为创意源泉,构想一座专为儿童打造的欢乐岛屿,成为他们尽情嬉戏的梦幻中心。岛上,墙面被绚丽的彩绘装点,每一幅画面都与空间内的软装饰品巧妙互动,仿佛拥有了生命。
艺术品:《梦幻树》
设计团队与独立艺术家梁长福创作墙面彩绘《梦幻树》,通过一颗梦幻的大树,将空间串联起来。
童梦野趣的小兔IP形象,引领着孩子们在这片天地中开启一场场奇妙的探索之旅。大自然的色彩与形态成为设计的灵感之源,空间中起伏的软包如同山峦与波浪,既守护着孩童游玩的安全,又赋予了空间无限的探索趣味。
邻里市集
Neighborhood Market
在B2楼栋的巧妙布局之中,我们结合业主所需,构筑起一座洋溢着南洋风情的邻里市集,它悄然坐落于两单元楼栋的温馨怀抱之间。
空间设计上,我们汲取南洋的绚烂色彩与独特韵味,将观宸logo的形态以艺术之名巧妙变形,延展于市集的每一寸空间,仿佛一幅流动的画卷,诉说着独特的故事。金属沟边如同精致的边框,为这方天地勾勒出华丽的轮廓,让空间的整体质感跃然而出,尽显非凡。
艺术化的装饰摆台与展架,如同市集的点睛之笔,错落有致地散布其间,既装点了市集的角落,又为未来的邻里活动搭建起展示与交流的舞台。这方精致无比的空间,其独特的氛围基调,如同磁石一般,吸引着邻里们的心,悄然影响着在此举办的每一场盛会,为社区的特色业态服务添上了浓墨重彩的一笔,让生活的每一刻都充满惊喜与期待。
艺术品:《城市绿核》
“久在樊笼里,复得返自然”以流畅的线条和自由的形态,表达了对自然与自由的向往,回归本真追求心灵解放的渴望。
观宸架空泛会所·系列纪
CENTURY LAND OPEN FLOOR CLUB
项目名称 | 华润置地-香港置地·观宸
业主单位 | 华润置地-香港置地
项目位置 | 重庆观音桥
项目类型 | 架空泛会所
A1/A2/A3/A4/A5/B2/B3/B4/B5
设计面积 | 约3558.68㎡
完成时间 | 2025.2
设计公司 | 海力空间设计
设计范围 | 室内设计 软装设计 软装工程
客服
消息
收藏
下载
最近













































