查看完整案例

收藏

下载
该项目是对一座附属建筑进行改造与扩建,使其转变为可居住的单元,并在极为有限的预算下完成。
Transformation and extension of an annex into a residential unit. The project was carried out with a minimal budget.
▼项目概览,overview of the building ©Claire Alhanko
设计在一处带有坡度的场地上利用了现有结构。原建筑由混凝土楼板、过梁与柱体构成,共两层,屋顶为停车平台。上层平面为5米 × 5米,下层深度减半。整体呈现出一种受现代主义运动启发的紧凑建筑形象,与自然环境巧妙融合。
The design works with an existing structure located on a sloping site. The building consists of concrete slabs, lintels, and columns, distributed over two levels with rooftop parking. It measures 5 meters by 5 meters on the upper level and is reduced by half in depth on the lower level. The overall impression is that of a compact construction inspired by the modernist movement, seamlessly integrated into its natural surroundings.
▼项目外观,exterior of the building ©Claire Alhanko
▼屋顶为停车平台,rooftop parking ©Claire Alhanko
▼屋顶为停车平台,rooftop parking ©Claire Alhanko
项目目标是将其改造成一处功能齐全的住所,内部需包含卧室、浴室和厨房。建筑在南侧进行了策略性的最小限度扩建,通过结构网格的加倍延伸来实现,扩建部分呈现为一个简洁的立方体体量,体积为5立方米。
The goal was to transform this structure into a functional dwelling, incorporating a bedroom, bathroom, and kitchen. The building was strategically and minimally extended, with an addition to the south achieved by doubling the existing structural grid. The extension is a simple volume of 5 cubic meters.
▼扩建成简洁的立方体体量,the extension is a simple volume of 5 cubic meters ©Claire Alhanko
▼矿物砖和混凝土构成立面,facade composed with mineral brick and concrete ©EIIWS+Lydia-Genecand
由于原结构部分嵌入坡地,为保留建筑原有外观语言,隔热层从室内进行设置。这种方式延续了外立面的建筑表达。现浇混凝土在模板拆除后经过精修打磨,与矿物质砖之间形成了材料的对比对话,突显结构元素与填充部分之间的区分。
Due to the partial embedding of the structure into the slope, insulation was applied from the interior. This approach preserved the original architectural expression by continuing the existing external language. The in-situ cast concrete was refined after formwork removal, creating a dialogue with mineral bricks through a contrast of materials, highlighting the distinction between structural elements and infill.
▼原结构部分嵌入坡地,the partial embedding of the structure into the slope ©EIIWS+Lydia-Genecand
▼现浇混凝土在模板拆除后经过精修打磨,
the in-situ cast concrete was refined after formwork removal ©EIIWS+Lydia-Genecand
外立面上清晰表达出的结构框架似乎挑战了常规逻辑,但这种安排是为了与原有建筑形成一种构图关系,其中的逻辑并不立即呈现在外观上。
The structural framework expressed on the façade appears to challenge conventional logic, but it does so in service of a composition with the existing building, where appearances do not immediately reveal the internal logic.
▼旋转楼梯连接上下层空间,spiral staircase connects the upper and lower level space ©Claire Alhanko
▼旋转楼梯连接上下层空间,spiral staircase connects the upper and lower level space ©EIIWS+Lydia-Genecand
▼玻璃砖隔断墙,glass brick wall ©Claire Alhanko
▼混凝土梁柱结构,concrete beam and columns ©EIIWS+Lydia-Genecan
▼夹层空间,mezzanine level space ©Claire-Alhanko
▼夹层空间,mezzanine level space ©EIIWS+Lydia-Genecand
▼浴室,bathroom ©EIIWS+Lydia-Genecand
该项目充分利用了预算、结构与场地条件上的限制,打造出一座与环境产生积极互动的建筑,同时呼应了瓦莱州在整个20世纪中所积淀的混凝土建筑传统。
The project leverages its budgetary, structural, and contextual constraints to propose a construction that engages with its environment and echoes the rich tradition of concrete architecture in Valais throughout the 20th century.
▼灯光下的室内空间,indoor space under lighting ©Claire Alhanko
▼轴测图,axonometric ©Associati
▼立面拼贴,facade collage ©Associati
▼室内立面拼贴,indoor facade collage ©Associati
▼场地平面,site plan ©Associati
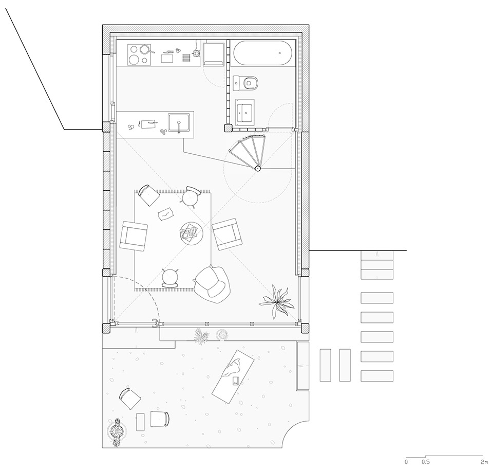
▼一层平面,ground floor plan ©Associati
▼二层平面,first floor plan ©Associati
▼立面,elevation ©Associati
▼剖面,section ©Associati
Project Name: MON58
Project Location: Savièse, Valais, Switzerland
Architecture Firm: Associati
Collaborators: Christophe Alhanko
Loris Guillard
Mikaël Sachs
Period: 2023–2024
Type of Commission: Private
客服
消息
收藏
下载
最近






























































