查看完整案例

收藏

下载

翻译
Architects:Batay-Csorba Architects
Area:3220ft²
Year:2024
Photographs:Doublespace Photography Younes Bounhar
Manufacturers:Heroal,Cocoon,EDM,Fraserwood,Ludowici Roof Tile,Moncer,SIMONSWERK North America,van de Moortel
Lead Architects:Jodi Batay-Csorba, Andrew Batay-Csorba
General Contractors:Whitaker Construction
Mechanical Engineers:Elite HVAC Designs
Landscape Architects:Gravenor Landscape Design
Arborist:Davey Resource Group
Category:Houses
Design Team:Sacha Milojevic, Jacob Henriquez, Myles Bury
City:Toronto
Country:Canada
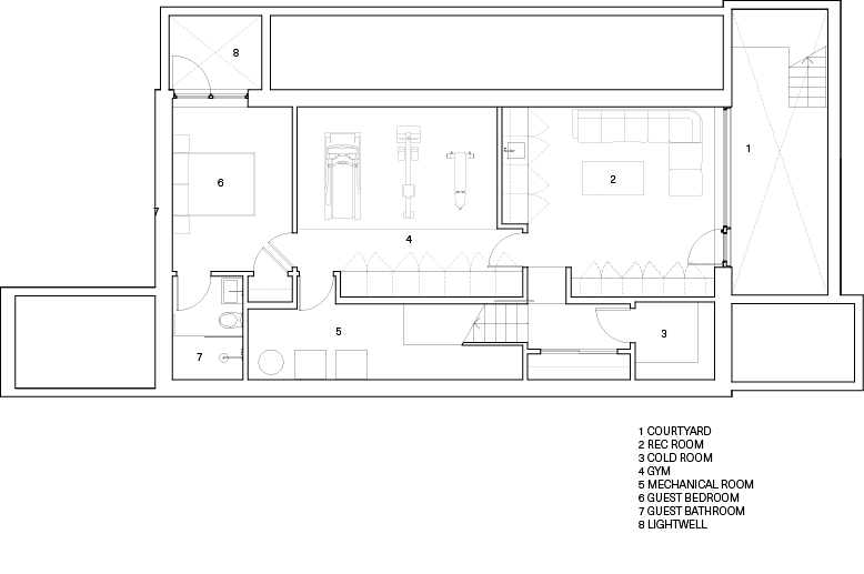
Text description provided by the architects. Situated on a corner city lot within the context of traditional Edwardian gable homes in Toronto's High Park neighborhood, the Westminster residence is a 2,340sf 3-bedroom primary home for a family of 4. The project aims to provide an underlying sense of familiarity and continuity within the archetypal roof form of the context, creating a paradoxical balance between blending in and standing out. Hidden within a steep, weathered terracotta roof, the project explores the notion of spatially occupying the underside of the roof, akin to an attic.
The simple project form is a composition of three dark monolithic figures, a low dark brick-clad volume, a heavy triangular stone-clad roof and tall rectilinear dormers. The heavy roof hovers asymmetrically on top of the first floor, cantilevering the covered carport and side patio, producing an unsettling dynamic between the simple volumes.
Similar in size and materiality, the dormers take on diametrically opposite stances in the project, with one grounding the west façade as it meets the ground, while the east dormer is inexplicably cantilevered and hovers above the carport.
The material atmosphere is a marriage of Villain's lair meets light and airy refuge (this was a literal marriage of partners' goals). The restrained palette consists of dark stained plain sawn walnut, heavy unfilled travertine, concrete and dark textural lime wash walls that juxtapose heavily against double height light-filled soft lime wash walls, wide plank knotted white oak floors and soft linen drapery and fabrics. The sequence of moving from compressed cavernous spatial experience to its inverse is narrated as one moves throughout the home.
Project gallery
客服
消息
收藏
下载
最近










































